新大崎勧業(大崎ニューシティ4号館)ビル(品川区、大崎) の賃貸オフィス情報

- 所在地
- 東京都品川区大崎1-6-4
- 最寄り駅
- 大崎駅徒歩2分
- 竣工
- 1987年
- 規模
- 地上20階・地下2階
- 構造
- SRC造(鉄骨鉄筋コンクリート造)
- 耐震基準
- 新耐震基準適合
- セキュリティ
- 機械警備・有人管理(24時間体制)
- エントランス
- 平日開放
- エレベーター総数
- 7基
- 駐車場設備
- 有(412台完備(大崎ニューシティ全体))
- 設備
- トイレ男女別
新大崎勧業(大崎ニューシティ4号館)ビル の物件特徴・おすすめポイント
■大崎エリアのシンボル的物件。20階建ての超高層ビルが企業のプレゼンスを向上。
■1フロア約247坪の整形プレート。大規模な組織編成にも柔軟に対応できる広さを確保。
■412台収容のメガガレージ。都心では希少な駐車キャパシティで車移動の多い企業も安心。
■利便極まる周辺環境。ニューシティ内の豊富な店舗群がワーカーの毎日をバックアップ。
新大崎勧業(大崎ニューシティ4号館)ビル の募集区画 (総募集面積 0.00坪)
現在募集はありません。
建物に関するよくある質問と回答
A1. JR大崎駅(北改札口)から「大崎ニューシティ」方面へ伸びる歩行者デッキ(O-デッキ)を経由して、徒歩約2分でビルに到着します。デッキは建物2階部分に接続しており、フラットなアプローチで通勤・来客時の負担が非常に少ないのが特徴です。
Q2. ビル内や周辺の利便施設について教えてください。
A2. 本ビルが属する「大崎ニューシティ」には、多数のレストランやカフェ、コンビニエンスストア、ドラッグストアのほか、みずほ銀行、郵便局、ホテル、医療施設が揃っています。ランチタイムの選択肢が広く、日常的な事務手続きも敷地内で完結する優れた環境です。
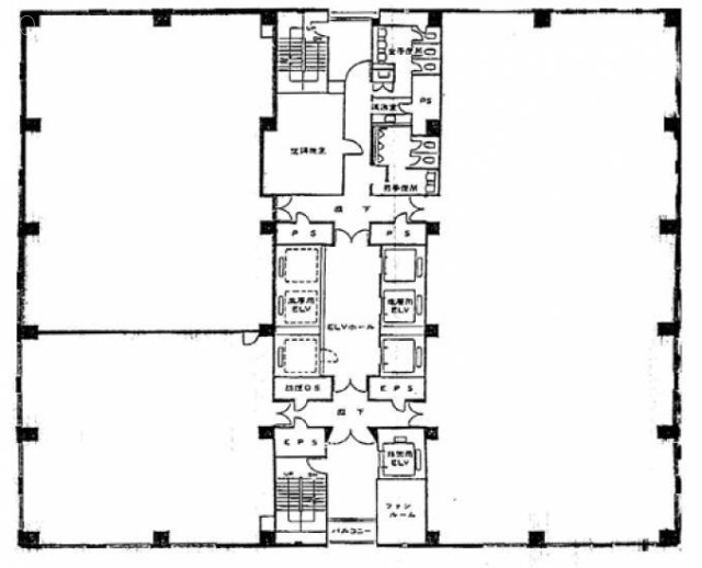
Q3. エレベーターの効率性や物流対応はどうなっていますか?
A3. 乗用エレベーターは計6基あり、低層・高層を分けるバンク制を採用しているため、待ち時間の短縮が図られています。また、独立した人荷用エレベーターも1基完備されており、オフィス什器の搬入や宅配便の集配もスムーズに行えます。
地図
東京都品川区大崎1-6-4 地図をクリックして拡大できます
新大崎勧業(大崎ニューシティ4号館)ビル の外観イメージ
1987年1月竣工。地上20階・地下2階建ての端正な超高層ビルです。大成・鹿島・戸田・住友という国内屈指のゼネコンによるJV(共同企業体)が施工を担当しました。大崎エリアの再開発を象徴する「大崎ニューシティ」の4号館として、堅牢な構造と重厚感のある外装は、時代を経ても色あせない品格を保っています。












新大崎勧業(大崎ニューシティ4号館)ビル の周辺イメージ
品川区大崎一丁目に位置し、隣接する「ゲートシティ大崎」や「大崎ウィズシティ」と共に、都内有数のビジネス街を形成しています。敷地内の緑豊かなオープンスペースはワーカーの憩いの場となっており、オンとオフの切り替えがしやすい環境です。また、再開発により周辺道路も広く整備されており、快適な歩行者空間が確保されています。

新大崎勧業(大崎ニューシティ4号館)ビル のアクセス・ロケーション
山手線南側のハブ駅「大崎」を拠点とし、都内主要部や臨海エリアへ自在にアクセス可能です。
■ 利用可能路線 JR山手線・埼京線・湘南新宿ライン「大崎駅」徒歩2分 りんかい線(相鉄線直通含む)「大崎駅」徒歩2分
■ ロケーションの特性: 新宿、渋谷、品川、東京駅まで15分圏内という抜群の交通利便性を誇ります。また、りんかい線によりお台場・有明方面、湘南新宿ラインにより横浜方面へもダイレクトに繋がるため、広域から優秀な人材を惹きつけることが可能な立地です。
新大崎勧業(大崎ニューシティ4号館)ビル の募集終了区画
| 図面 | 階数 | 坪数 | 月額費用 | 坪単価 | 入居可能日 | |
|---|---|---|---|---|---|---|
![]() | 1階 | 64.69坪 | お問い合わせください | 募集終了 | 検討リスト | |
![]() | 1階 | 26.65坪 | お問い合わせください | 募集終了 | 検討リスト | |
![]() | 2階 | 22.84坪 | お問い合わせください | 募集終了 | 検討リスト | |
![]() | 2階 | 18.81坪 | お問い合わせください | 募集終了 | 検討リスト | |
![]() | 3階 | 123.59坪 | お問い合わせください | 募集終了 | 検討リスト | |
![]() | 3階 | 62.31坪 | お問い合わせください | 募集終了 | 検討リスト | |
![]() | 4階 | 123.69坪 | お問い合わせください | 募集終了 | 検討リスト | |
![]() | 4階 | 73.73坪 | お問い合わせください | 募集終了 | 検討リスト | |
![]() | 5階 | 46.28坪 | お問い合わせください | 募集終了 | 検討リスト | |
![]() | 5階 | 48.57坪 | お問い合わせください | 募集終了 | 検討リスト | |
![]() | 5階 | 123.69坪 | お問い合わせください | 募集終了 | 検討リスト | |
![]() | 5階 | 74.28坪 | お問い合わせください | 募集終了 | 検討リスト | |
![]() | 6階 | 49.45坪 | お問い合わせください | 募集終了 | 検討リスト | |
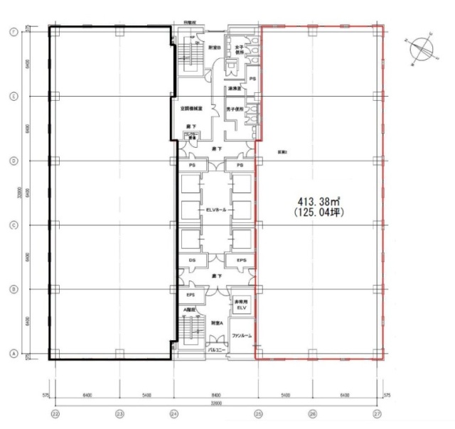
![]() | 7階 | 125.04坪 | お問い合わせください | 募集終了 | 検討リスト | |
![]() | 7階 | 124.04坪 | お問い合わせください | 募集終了 | 検討リスト | |
![]() | 8階 | 123.69坪 | お問い合わせください | 募集終了 | 検討リスト | |
![]() | 8階 | 50.73坪 | お問い合わせください | 募集終了 | 検討リスト | |
![]() | 8階 | 50.73坪 | お問い合わせください | 募集終了 | 検討リスト | |
![]() | 8階 | 73.74坪 | お問い合わせください | 募集終了 | 検討リスト | |
![]() | 9階 | 247.73坪 | お問い合わせください | 募集終了 | 検討リスト | |
![]() | 10階 | 125.28坪 | お問い合わせください | 募集終了 | 検討リスト | |
![]() | 10階 | 123.69坪 | お問い合わせください | 募集終了 | 検討リスト | |
![]() | 11階 | 247.73坪 | お問い合わせください | 募集終了 | 検討リスト | |
![]() | 11階 | 123.69坪 | お問い合わせください | 募集終了 | 検討リスト | |
![]() | 12階 | 123.69坪 | お問い合わせください | 募集終了 | 検討リスト | |
![]() | 13階 | 125.04坪 | お問い合わせください | 募集終了 | 検討リスト | |
![]() | 14階 | 247.73坪 | お問い合わせください | 募集終了 | 検討リスト | |
![]() | 14階 | 123.69坪 | お問い合わせください | 募集終了 | 検討リスト | |
![]() | 14階 | 124.04坪 | お問い合わせください | 募集終了 | 検討リスト | |
![]() | 15階 | 245.86坪 | お問い合わせください | 募集終了 | 検討リスト | |
![]() | 15階 | 121.81坪 | お問い合わせください | 募集終了 | 検討リスト | |
![]() | 15階 | 123.69坪 | お問い合わせください | 募集終了 | 検討リスト | |
![]() | 16階 | 251.45坪 | お問い合わせください | 募集終了 | 検討リスト | |
![]() | 16階 | 127.40坪 | お問い合わせください | 募集終了 | 検討リスト | |
![]() | 16階 | 124.04坪 | お問い合わせください | 募集終了 | 検討リスト | |
![]() | 17階 | 128.39坪 | お問い合わせください | 募集終了 | 検討リスト | |
![]() | 17階 | 252.44坪 | お問い合わせください | 募集終了 | 検討リスト | |
![]() | 17階 | 50.29坪 | お問い合わせください | 募集終了 | 検討リスト | |
![]() | 18階 | 252.44坪 | お問い合わせください | 募集終了 | 検討リスト | |
![]() | 18階 | 128.39坪 | お問い合わせください | 募集終了 | 検討リスト | |
![]() | 18階 | 49.81坪 | お問い合わせください | 募集終了 | 検討リスト | |
![]() | 19階 | 252.44坪 | お問い合わせください | 募集終了 | 検討リスト | |
![]() | 19階 | 124.04坪 | お問い合わせください | 募集終了 | 検討リスト | |
![]() | 20階 | 124.45坪 | お問い合わせください | 募集終了 | 検討リスト | |
![]() | 20階 | 129.90坪 | お問い合わせください | 募集終了 | 検討リスト |
新大崎勧業(大崎ニューシティ4号館)ビル が選ばれる理由
■ 圧倒的な「知名度」と「駅至近の利便性」
大崎ニューシティという名前そのものが高い認知度を持ち、駅徒歩2分・デッキ直結という利便性は採用活動において強力な武器となります。
■ 街と一体化した「充実のインフラ」
単なるオフィスビルではなく、商業・金融・医療・緑地が融合した大規模複合施設の一部であるため、企業の生産性向上に直結する充実したアメニティを享受できます。
■ 大手ゼネコン施工による「安心と信頼」
国内最大手ゼネコンJVによる確かな品質と、中央日本土地建物グループによる安定した運営体制が、長期入居における安心感を保証します。
近くの物件紹介
品川区のエリア
近くの駅
| 取扱態様 | 仲介 |
|---|---|
| 取扱会社 | 株式会社アドマイアー 東京都中央区日本橋3-2-3ユニバース第1ビル2F TEL. 03-5204-1031 宅地建物取引業免許 東京都知事(3)第94663号 マンション管理業免許 国土交通大臣(2)第034224号 賃貸住宅管理業免許 国土交通大臣(01)第005938号 |































