芝御成門タワー(港区、新橋、御成門、大門) の賃貸オフィス情報

- 所在地
- 東京都港区新橋6-1-11
- 最寄り駅
- 御成門駅徒歩2分、大門駅徒歩11分、新橋駅徒歩12分
- 竣工
- 2025年
- 規模
- 地上19階・地下2階
- 構造
- S造(鉄骨造)
- 耐震基準
- 新耐震基準適合・制震構造
- セキュリティ
- 機械警備・有人管理(24時間体制)
- エントランス
- 平日開放(非接触型ICカードキーによる入室管理有人管理(24時間365日))
- エレベーター総数
- 8基(乗用6台・非常用1台・貨物用1台)
- 駐車場設備
- 有(機械式53台)
- 設備
- 貨物EVあり、 非常用発電機、 省エネ・環境配慮、 共用ラウンジ(テナント専用ラウンジ)、 リフレッシュコーナー、 屋上テラス(ルーフトップテラス)、 24時間(要ICカード)、 防災センター
芝御成門タワー の物件特徴・おすすめポイント
■ 2025年竣工の最新制震構造と非常用発電機で盤石のBCP対応
■ 天井高2,800mmの無柱空間が実現する開放的で自由なオフィス
■ テナント専用ラウンジや屋上テラスなど充実の共用部で交流促進
■ ZEB Ready取得の環境性能により企業のESG経営を強力に支援
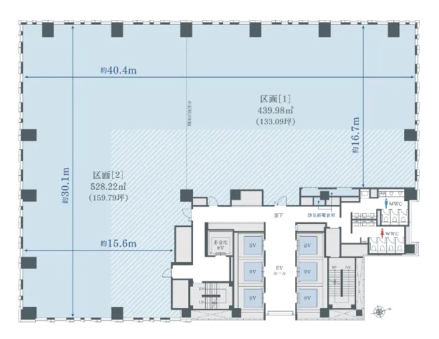
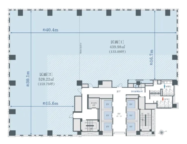
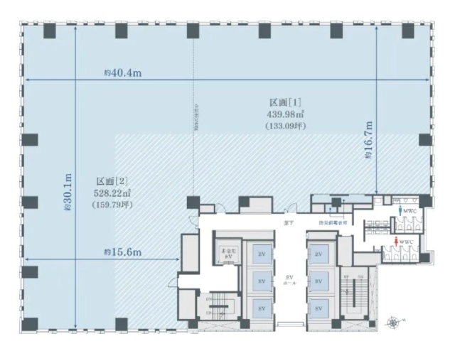
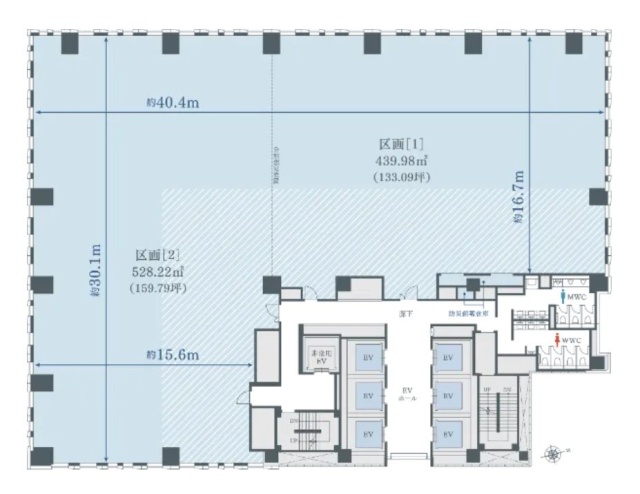
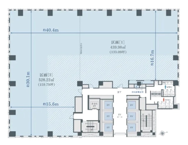
芝御成門タワー の募集区画 (総募集面積 586.34坪)
※月額費用、坪単価 ともに共益費込・税別の価格です
建物に関するよくある質問と回答
A1. 都営三田線の御成門駅から徒歩2分という至近距離に立地しています。A4出口から日比谷通りを新橋方面へ進む分かりやすいルートです。また、大門駅や新橋駅からも徒歩圏内であり、複数の路線を使い分けられる交通利便性の高さが特徴です。
Q2. 芝御成門タワーの耐震性能・構造はどうなっていますか?
A2. 2025年に竣工した最新の鉄骨造ビルで、新耐震基準に適合しています。地震の揺れを効果的に吸収する制震構造を採用しており、防災センターによる24時間有人管理体制と合わせ、震災時における安全性と事業継続性が極めて高いレベルで確保されています。
Q3. 芝御成門タワーの室内スペック(天井高・床仕様・空調など)について教えてください。
A3. 執務室の天井高は2,800mmを確保しており、非常に開放感のある空間です。100mmのOAフロアを備え、複雑な配線ニーズにも柔軟に対応可能です。個別空調システムによりゾーンごとの細やかな温度設定ができるため、常に快適な執筆環境を維持できます。
Q4. 芝御成門タワーのBCP対応について教えてください。
A4. 万が一の停電時に備え、非常用発電機を完備しています。防災センターと連携した24時間監視体制に加え、制震構造による建物の堅牢性が備わっており、不測の事態においても企業の重要拠点としての機能を維持し続けることが可能です。
Q5. 芝御成門タワーの環境性能(ZEBなど)はどうなっていますか?
A5. 省エネルギー性能に優れた先進建築物として「ZEB Ready」の認証を取得しています。環境負荷を低減する設計がなされており、入居すること自体が企業の環境保護への取り組みとして対外的な評価につながる、現代のニーズに合致したオフィスビルです。
Q6. 芝御成門タワーの共用施設にはどのようなものがありますか?
A6. テナント専用のラウンジやリフレッシュコーナー、さらには開放的なルーフトップテラスが用意されています。オフィスフロア以外のサードプレイスを確保することで、ワーカーの気分転換や社内コミュニケーションの活性化に大きく寄与します。
Q7. 芝御成門タワーのセキュリティ体制はどうなっていますか?
A7. 24時間365日の有人管理体制に加え、非接触型ICカードキーによる入室管理システムを導入しています。エレベーターから貸室入口に至るまで強固なセキュリティラインが構築されており、夜間や休日も安心して利用することが可能です。
Q8. 芝御成門タワーに駐車場はありますか?
A8. 敷地内に53台を収容できる機械式駐車場を完備しています。日比谷通りからのアクセスもスムーズで、役員車の保有や社用車での移動が多い企業のニーズにも十分対応できるキャパシティを備えています。
Q9. 芝御成門タワーのエレベーターの構成を教えてください。
A9. 乗用6基、非常用1基、貨物用1基の計8基を備えています。用途に合わせてエレベーターが使い分けられるため、混雑時のストレスを軽減し、スムーズな館内移動と効率的な物流動線を両立させています。
Q10. 芝御成門タワーは24時間入退館が可能ですか?
A10. ICカードキーを利用することで、24時間の入退館が可能です。夜間や早朝の勤務が必要な場合でも、厳重なセキュリティ管理のもとで稼働できるため、企業の多様なワークスタイルに柔軟に対応できます。
地図
東京都港区新橋6-1-11 地図をクリックして拡大できます
芝御成門タワー の外観イメージ
日比谷通りの新たなランドマークとして聳え立つ地上19階建ての佇まいは、2025年竣工の最新ビルに相応しい洗練されたカーテンウォールの外装が特徴です。低層部には豊かな緑を配した公開空地が設けられ、歴史ある芝エリアの街並みと調和しながらも、圧倒的な視認性を放っています。夜間には洗練された照明計画がタワーの垂直性を強調し、来客に対して企業の先進性とステータスを強く印象付けます。清潔感と重厚感を併せ持ったデザインは、企業の信頼性を高めるブランディング拠点として最適な意匠性を備えています。










芝御成門タワー の周辺イメージ
港区新橋6丁目の日比谷通り沿いに位置し、背後には芝公園の広大な緑が広がる、都心でも有数の恵まれたロケーションです。周辺にはスターバックスやセブンイレブンなどの利便施設が豊富に揃い、日々のランチや休憩場所には事欠きません。また、徒歩圏内の新橋エリアには実在する多彩な飲食店や金融機関、郵便局が密集しており、ビジネスに必要な機能がすべて至近に完結しています。歴史ある増上寺や東京タワーを望む情緒ある環境は、来客対応や社員のリフレッシュにも大きく寄与します。

芝御成門タワー のアクセス・ロケーション
■ 駅徒歩分数
・都営三田線 「御成門」駅 A4出口より徒歩2分
・都営大江戸線・浅草線 「大門」駅 出口より徒歩11分
・JR線・都営各線・銀座線 「新橋」駅 出口より徒歩12分
■ 主要エリアへのアクセス
御成門駅から都営三田線を利用して大手町駅まで約6分と、都心ビジネス拠点への移動が極めてスムーズです。また、新橋駅からは山手線や東海道線を利用して品川・横浜方面へもダイレクトにアクセス可能。さらに、都営浅草線を利用すれば羽田空港へのアクセスも良好であり、国内外への出張が多い企業にとって、移動時間の短縮という大きな価値を提供します。
■ エリア特性
港区の品格を象徴する芝・御成門エリアは、官公庁や大手企業が集積する国際的なビジネス拠点です。日比谷通り沿いの開放感と、歴史的な寺社や公園が織りなす落ち着いた雰囲気は、企業の品位を高める最高峰のビジネスアドレスとして、多くの優良企業に選ばれ続けています。
芝御成門タワー のブログ記事
公開日: 2025年10月03日
最終更新日: 2025年12月16日
芝御成門タワー の募集終了区画
| 図面 | 階数 | 坪数 | 月額費用 | 坪単価 | 入居可能日 | |
|---|---|---|---|---|---|---|
![]() | 6階 | 292.67坪 | お問い合わせください | 募集終了 | 検討リスト | |
![]() | 7階 | 292.67坪 | お問い合わせください | 募集終了 | 検討リスト | |
![]() | 8階 | 292.67坪 | お問い合わせください | 募集終了 | 検討リスト | |
![]() | 9階 | 292.67坪 | お問い合わせください | 募集終了 | 検討リスト | |
![]() | 10階 | 292.67坪 | お問い合わせください | 募集終了 | 検討リスト | |
![]() | 11階 | 292.67坪 | お問い合わせください | 募集終了 | 検討リスト | |
![]() | 12階 | 292.67坪 | お問い合わせください | 募集終了 | 検討リスト | |
![]() | 13階 | 292.67坪 | お問い合わせください | 募集終了 | 検討リスト | |
![]() | 14階 | 292.67坪 | お問い合わせください | 募集終了 | 検討リスト | |
![]() | 15階 | 292.67坪 | お問い合わせください | 募集終了 | 検討リスト | |
![]() | 16階 | 292.67坪 | お問い合わせください | 募集終了 | 検討リスト | |
![]() | 17階 | 292.67坪 | お問い合わせください | 募集終了 | 検討リスト | |
![]() | 18階 | 292.67坪 | お問い合わせください | 募集終了 | 検討リスト | |
![]() | 19階 | 292.67坪 | お問い合わせください | 募集終了 | 検討リスト |
芝御成門タワー が選ばれる理由
■御成門駅徒歩2分の卓越した交通利便性とリクルーティング効果 主要駅が徒歩圏内に集結する抜群のアクセス環境は、日々の営業効率を向上させるだけでなく、広域からの優秀な人材確保を容易にします。駅至近という物理的な優位性は、社員の通勤負担を軽減し、企業の持続的な成長を支える強力なインセンティブとなります。
■専用ラウンジや屋上テラスが実現する次世代のワークスタイル テナント専用のラウンジやルーフトップテラスなど、最新の共用施設が充実しています。執務室以外のサードプレイスを確保することで、従業員のウェルビーイングを向上させると同時に、社内外の活発なコミュニケーションを促し、企業のイノベーション創出を支援します。
■最新の制震構造と非常用発電機による最高水準の事業継続性 2025年竣工の最新制震技術に加え、災害時でも事業を停止させない非常用発電機を完備しています。24時間365日の有人管理体制と合わせ、企業の最重要資産である「人」と「情報」を確実に守り抜く盤石のインフラは、取引先からの信頼獲得に直結する大きな資産です。
近くの物件紹介
港区のエリア
近くの駅
| 取扱態様 | 仲介 |
|---|---|
| 取扱会社 | 株式会社アドマイアー 東京都中央区日本橋3-2-3ユニバース第1ビル2F TEL. 03-5204-1031 宅地建物取引業免許 東京都知事(3)第94663号 マンション管理業免許 国土交通大臣(2)第034224号 賃貸住宅管理業免許 国土交通大臣(01)第005938号 |









































