JMFビル赤坂01(港区、赤坂、溜池山王、国会議事堂前) の賃貸オフィス情報

- 所在地
- 東京都港区赤坂1-11-28
- 最寄り駅
- 溜池山王駅徒歩3分、国会議事堂前駅徒歩6分、六本木一丁目駅徒歩7分
- 竣工
- 1985年
- 規模
- 地上10階
- 構造
- SRC造(鉄骨鉄筋コンクリート造)
- 耐震基準
- 新耐震基準適合
- セキュリティ
- 機械警備(24時間監視)
- エントランス
- 平日開放
- エレベーター総数
- 2基
- 駐車場設備
- 要確認
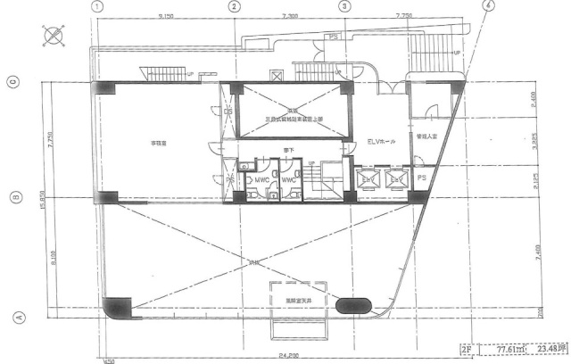
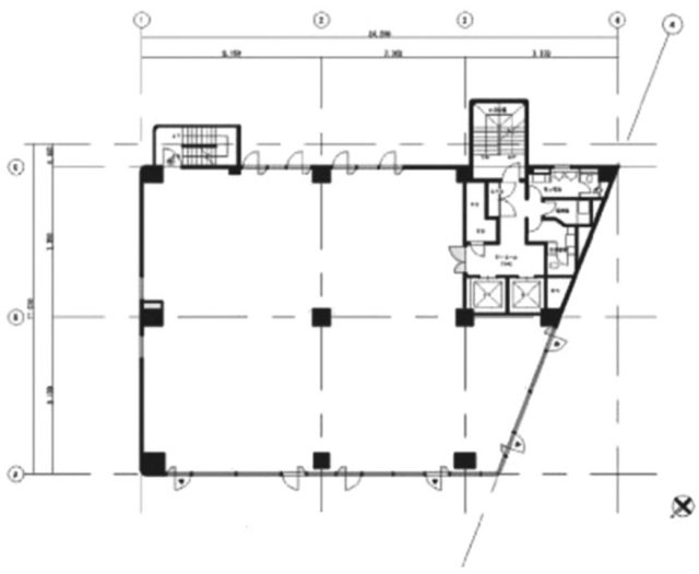
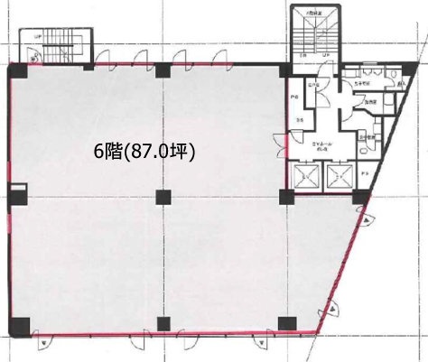
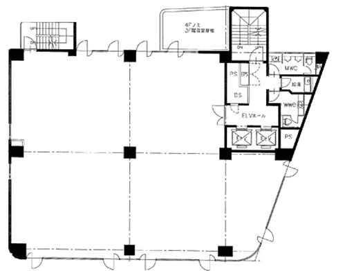
JMFビル赤坂01 の募集区画 (総募集面積 0.00坪)
現在募集はありません。
地図
東京都港区赤坂1-11-28 地図をクリックして拡大できます
JMFビル赤坂01 の外観イメージ
JMFビル赤坂01(港区赤坂)は、1985年に竣工した地上10階、地下2階建ての賃貸オフィスビルです。 淡いベージュのタイル張りの落ち着いた雰囲気の外観をしており、少し丸みを帯びたフォルムが特徴的です。 エントランスは階段を上がった場所に位置し、美しいガラス張りが印象的です。 間接照明の照らされたエレガントな雰囲気漂うエレベーターホールには、エレベーターが2基搭載。駐車場が完備されているので、車通勤をご希望の方は空きを確認しておくと良いでしょう。 1階にはドトールコーヒーが入居中で、ビルの目印になっているほか、打ち合わせ等に活用できそうです。 機械警備が導入されたセキュリティ対策も万全のオフィスビルです。






JMFビル赤坂01 の周辺イメージ
JMFビル赤坂01(港区赤坂)は、溜池山王駅より徒歩3分の好立地に位置し、他にも国会議事堂前駅より徒歩でアクセスできます。 六本木通りに面して立地し、周辺は同じようなオフィスビルが建ち並ぶエリアです。 隣にはANAインターコンチネンタルホテルが立地しているので、道案内の際などに目印となるでしょう。 隣とそのまた隣のビルにはコンビニが入居中でちょっとした買い物などに便利に活用できそうです。 飲食店も通りを渡った反対側を中心に点在。 溜池山王駅の出口がすぐ近くにあり、通勤には便利な立地環境です。




JMFビル赤坂01 の募集終了区画
近くの物件紹介
港区のエリア
近くの駅
| 取扱態様 | 仲介 |
|---|---|
| 取扱会社 | 株式会社アドマイアー 東京都中央区日本橋3-2-3ユニバース第1ビル2F TEL. 03-5204-1031 宅地建物取引業免許 東京都知事(3)第94663号 マンション管理業免許 国土交通大臣(2)第034224号 賃貸住宅管理業免許 国土交通大臣(01)第005938号 |































