ヤマトインターナショナルビル(大田区、平和島、流通センター、大森町) の賃貸オフィス情報

- 所在地
- 東京都大田区平和島5-1-1
- 最寄り駅
- 平和島駅徒歩10分、流通センター駅徒歩13分、大森町駅徒歩20分
- 竣工
- 1987年
- 規模
- 地上8階
- 構造
- SRC造(鉄骨鉄筋コンクリート造)
- 耐震基準
- 新耐震基準適合
- セキュリティ
- 機械警備(24時間監視)
- エントランス
- 平日開放
- エレベーター総数
- 5基
- 駐車場設備
- 要確認
ヤマトインターナショナルビルは平和島駅から徒歩8分、東京モノレール流通センター駅も徒歩圏内でアクセスしやすい立地です。竣工は1987年で新耐震基準に準拠したSRC造、1フロア約1,023坪と大型プレートを誇ります。エレベーター3基、OAフロア、光ファイバー通信、駐車場、貨物用エレベーターなど設備も充実しています。物流拠点や事務所として効率の良いレイアウトが可能です。
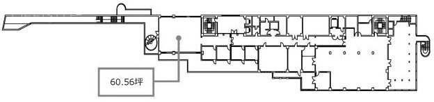
ヤマトインターナショナルビル の募集区画 (総募集面積 461.60坪)
※月額費用、坪単価 ともに共益費込・税別の価格です
建物に関するよくある質問と回答
Q1 最寄駅はどこですか?
A1 京急本線「平和島駅」徒歩8分、東京モノレール「流通センター駅」徒歩10分です。
Q2 竣工年月はいつですか?
A2 1987年1月に竣工しています。
Q3 構造は何ですか?
A3 鉄骨鉄筋コンクリート造(SRC造)です。
Q4 階数と延床面積は?
A4 地上8階建てで、延床面積は約3,582坪(約11,841㎡)です。
Q5 基準階面積はどのくらいですか?
A5 約1,023坪(約3,380㎡)です。
Q6 天井高は?
A6 約2,600mmです。
Q7 エレベーターの設置数は?
A7 3基設置されています。
Q8 セキュリティや通信設備は?
A8 機械警備、OAフロア、光ファイバー通信があります。
Q9 駐車場や貨物設備は?
A9 平置き駐車場(約40台)と貨物専用エレベーターがあります。
Q10 耐震基準は?
A10 新耐震基準に準拠しています。
A1 京急本線「平和島駅」徒歩8分、東京モノレール「流通センター駅」徒歩10分です。
Q2 竣工年月はいつですか?
A2 1987年1月に竣工しています。
Q3 構造は何ですか?
A3 鉄骨鉄筋コンクリート造(SRC造)です。
Q4 階数と延床面積は?
A4 地上8階建てで、延床面積は約3,582坪(約11,841㎡)です。
Q5 基準階面積はどのくらいですか?
A5 約1,023坪(約3,380㎡)です。
Q6 天井高は?
A6 約2,600mmです。
Q7 エレベーターの設置数は?
A7 3基設置されています。
Q8 セキュリティや通信設備は?
A8 機械警備、OAフロア、光ファイバー通信があります。
Q9 駐車場や貨物設備は?
A9 平置き駐車場(約40台)と貨物専用エレベーターがあります。
Q10 耐震基準は?
A10 新耐震基準に準拠しています。
地図
東京都大田区平和島5-1-1 地図をクリックして拡大できます
ヤマトインターナショナルビル の外観イメージ
外観は著名建築家・原広司氏による設計で、南北約140m・高さ約40mの圧倒的なスケールと、軍艦や雲を思わせる独創的なデザインが特徴です。1~3階はがっしりとした基壇部、4階は人工地盤で公園と接続し、4階以上は切妻屋根や不規則な窓が積み重なる個性的なフォルムです。グレーを基調とした重厚な外壁と大きな窓面が、周囲の自然と調和しつつ、存在感を放っています。
















ヤマトインターナショナルビル の周辺イメージ
最寄りの京急平和島駅から徒歩8分、東京モノレール流通センター駅も徒歩10分とアクセス利便が高い立地です。周辺には物流施設や倉庫が点在し、業務利用に適したエリアです。また、すぐ隣には平和の森公園が広がり、公園を望む緑豊かな環境が得られます。近隣にはコンビニ、飲食店、駐車場などの施設もあります。物流ゾーンとレジャー施設が混在する地域で、人の流れも多く、ビジネス拠点としても魅力的です。
ヤマトインターナショナルビル の募集終了区画
近くの物件紹介
大田区のエリア
近くの駅
| 取扱態様 | 仲介 |
|---|---|
| 取扱会社 | 株式会社アドマイアー 東京都中央区日本橋3-2-3ユニバース第1ビル2F TEL. 03-5204-1031 宅地建物取引業免許 東京都知事(3)第94663号 マンション管理業免許 国土交通大臣(2)第034224号 賃貸住宅管理業免許 国土交通大臣(01)第005938号 |




























