合人社東京永田町ビル(千代田区、永田町、赤坂見附、溜池山王) の賃貸オフィス情報

- 所在地
- 東京都千代田区永田町1-11-28
- 最寄り駅
- 永田町駅徒歩1分、赤坂見附駅徒歩5分、溜池山王駅徒歩8分
- 竣工
- 1967年7月
- 規模
- 地上9階・地下2階
- 構造
- SRC
- セキュリティ
- 機械警備
- エントランス
- 平日開放
- エレベーター総数
- 2基
- 駐車場設備
- 要確認
- 基準階坪数
- 74.10坪
永田町の中心にそびえ立つ合人社東京永田町ビルは、ビジネスの未来を拓く洗練された賃貸事務所空間です。東京都千代田区永田町1-11-28に位置し、まさに日本の政治・経済の中枢という比類なき独自の雰囲気は、企業の成長と革新を力強く後押しします。官公庁へのアクセスはもちろん、ビジネスパートナーや顧客との連携も円滑にし、情報発信力を高める絶好の機会を提供します。
交通至便な立地は、合人社東京永田町ビルの大きな魅力です。東京メトロ有楽町線、南北線、半蔵門線が乗り入れる永田町駅の3番出口から徒歩わずか1分という近さ。日々の通勤だけでなく、都内各地へのアクセスも驚くほどスムーズです。さらに、銀座線の赤坂見附駅へも徒歩5分、丸ノ内線の国会議事堂前駅へも徒歩9分と、複数の路線が利用可能であり、ビジネスの機動性を高めます。
1967年7月に竣工した鉄骨鉄筋コンクリート造(SRC造)の地上9階・地下2階建の合人社東京永田町ビルは、長年にわたり多くの企業に選ばれてきました。その間、時代のニーズに応えるべく進化を続け、2004年7月には耐震補強とともにエントランスや共用部の改修が実施され、2014年1月には空調、エントランス、共用部の大規模なリニューアルが行われました。これにより、新耐震基準相当の安全性を確保しつつ、現代的なオフィス環境を提供しています。
基準階面積は約209坪(約691㎡)を有し、オフィスフロアは個別空調システムを採用。2014年1月に空調の大規模リニューアルが完了しており、快適な執務空間が期待できます。建物内には14人乗りのエレベーターが2基設置され、スムーズな移動をサポートします。また、機械警備システムが導入されており、24時間体制でビジネスの安全をしっかりと見守ります。駐車場も完備されており、自走式と機械式を併用して最大16台まで駐車可能です。さらに、光ファイバーにも対応済み(MDFまで)で、高速インターネット環境が現代的なビジネスニーズに応えます。1階にはコンビニエンスストア「ローソン」が入居しており、日々のビジネスに必要なちょっとした買い物にも非常に便利です。
永田町駅周辺は、多様な商業施設、金融機関、郵便局などが集積しており、ビジネスに必要なあらゆるものが徒歩圏内に揃います。また、緑豊かな皇居も近く、ビジネスの合間にリフレッシュできる環境も魅力です。角地に立地しているため視認性が高く、企業イメージの向上にも貢献します。
このような特徴から、合人社東京永田町ビルは、官公庁関連企業、法律事務所や会計事務所、コンサルティングファーム、IT・通信関連企業など、都心の一等地で事業展開を希望する企業に特におすすめです。永田町という立地を最大限に活かし、スムーズな連携を実現したい企業、霞が関や周辺のビジネス街へのアクセスが重視される企業、交通利便性が高く都内各地へのアクセスを必要とする企業、現代的なインフラを求める企業、そしてブランドイメージを向上させ、ビジネスの成長を加速させたい企業にとって、最適なオフィス環境と言えるでしょう。
合人社東京永田町ビルの最大の強みはその卓越したロケーションであり、永田町駅徒歩1分というアクセスは、他の多くの賃貸事務所と比較しても優位性があります。2度のリニューアルによる新耐震基準相当の安全性と現代的なオフィス環境、そして1階にコンビニエンスストアが併設されている点も、日々の利便性を高める要因となります。角地立地による高い視認性も、企業イメージの向上に寄与します。
主要ビジネスエリアへのアクセスも優れており、東京メトロ半蔵門線を利用すれば大手町へ約5分、東京メトロ丸ノ内線(国会議事堂前駅)を利用すれば丸の内へ約5分、東京メトロ有楽町線を利用すれば銀座へ約10分、東京メトロ半蔵門線を利用すれば渋谷へ約15分、東京メトロ丸ノ内線(国会議事堂前駅)から乗り換え1回で新宿へは約20分でアクセス可能です。
このように、合人社東京永田町ビルは、過去の歴史を基盤とし、現代的なビジネスニーズに応えるべく進化を続ける賃貸事務所です。駅徒歩1分という抜群のアクセス、個別空調、機械警備、駐車場完備、コンビニエンスストア併設、光ファイバー対応、リニューアル済みという現代的な設備、そして角地立地による高い視認性といった特徴を備えています。周辺にはコンビニエンスストア、金融機関、郵便局、病院、公園など、ビジネスに必要な施設が近くに充実しており、都心の一等地でオフィスを構えたい成長意欲の高い企業様にとって、最高の働く空間となるでしょう。
交通至便な立地は、合人社東京永田町ビルの大きな魅力です。東京メトロ有楽町線、南北線、半蔵門線が乗り入れる永田町駅の3番出口から徒歩わずか1分という近さ。日々の通勤だけでなく、都内各地へのアクセスも驚くほどスムーズです。さらに、銀座線の赤坂見附駅へも徒歩5分、丸ノ内線の国会議事堂前駅へも徒歩9分と、複数の路線が利用可能であり、ビジネスの機動性を高めます。
1967年7月に竣工した鉄骨鉄筋コンクリート造(SRC造)の地上9階・地下2階建の合人社東京永田町ビルは、長年にわたり多くの企業に選ばれてきました。その間、時代のニーズに応えるべく進化を続け、2004年7月には耐震補強とともにエントランスや共用部の改修が実施され、2014年1月には空調、エントランス、共用部の大規模なリニューアルが行われました。これにより、新耐震基準相当の安全性を確保しつつ、現代的なオフィス環境を提供しています。
基準階面積は約209坪(約691㎡)を有し、オフィスフロアは個別空調システムを採用。2014年1月に空調の大規模リニューアルが完了しており、快適な執務空間が期待できます。建物内には14人乗りのエレベーターが2基設置され、スムーズな移動をサポートします。また、機械警備システムが導入されており、24時間体制でビジネスの安全をしっかりと見守ります。駐車場も完備されており、自走式と機械式を併用して最大16台まで駐車可能です。さらに、光ファイバーにも対応済み(MDFまで)で、高速インターネット環境が現代的なビジネスニーズに応えます。1階にはコンビニエンスストア「ローソン」が入居しており、日々のビジネスに必要なちょっとした買い物にも非常に便利です。
永田町駅周辺は、多様な商業施設、金融機関、郵便局などが集積しており、ビジネスに必要なあらゆるものが徒歩圏内に揃います。また、緑豊かな皇居も近く、ビジネスの合間にリフレッシュできる環境も魅力です。角地に立地しているため視認性が高く、企業イメージの向上にも貢献します。
このような特徴から、合人社東京永田町ビルは、官公庁関連企業、法律事務所や会計事務所、コンサルティングファーム、IT・通信関連企業など、都心の一等地で事業展開を希望する企業に特におすすめです。永田町という立地を最大限に活かし、スムーズな連携を実現したい企業、霞が関や周辺のビジネス街へのアクセスが重視される企業、交通利便性が高く都内各地へのアクセスを必要とする企業、現代的なインフラを求める企業、そしてブランドイメージを向上させ、ビジネスの成長を加速させたい企業にとって、最適なオフィス環境と言えるでしょう。
合人社東京永田町ビルの最大の強みはその卓越したロケーションであり、永田町駅徒歩1分というアクセスは、他の多くの賃貸事務所と比較しても優位性があります。2度のリニューアルによる新耐震基準相当の安全性と現代的なオフィス環境、そして1階にコンビニエンスストアが併設されている点も、日々の利便性を高める要因となります。角地立地による高い視認性も、企業イメージの向上に寄与します。
主要ビジネスエリアへのアクセスも優れており、東京メトロ半蔵門線を利用すれば大手町へ約5分、東京メトロ丸ノ内線(国会議事堂前駅)を利用すれば丸の内へ約5分、東京メトロ有楽町線を利用すれば銀座へ約10分、東京メトロ半蔵門線を利用すれば渋谷へ約15分、東京メトロ丸ノ内線(国会議事堂前駅)から乗り換え1回で新宿へは約20分でアクセス可能です。
このように、合人社東京永田町ビルは、過去の歴史を基盤とし、現代的なビジネスニーズに応えるべく進化を続ける賃貸事務所です。駅徒歩1分という抜群のアクセス、個別空調、機械警備、駐車場完備、コンビニエンスストア併設、光ファイバー対応、リニューアル済みという現代的な設備、そして角地立地による高い視認性といった特徴を備えています。周辺にはコンビニエンスストア、金融機関、郵便局、病院、公園など、ビジネスに必要な施設が近くに充実しており、都心の一等地でオフィスを構えたい成長意欲の高い企業様にとって、最高の働く空間となるでしょう。
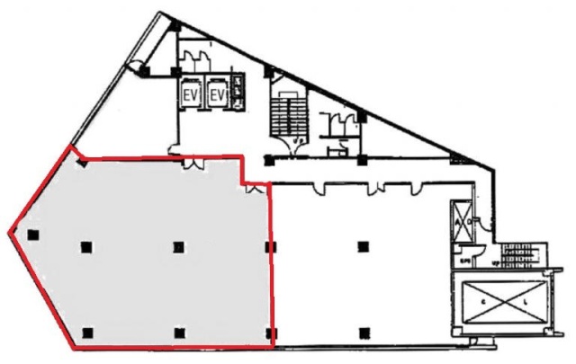
合人社東京永田町ビル の募集区画 (総募集面積 104.80坪)
※月額費用、坪単価 ともに共益費込・税別の価格です
地図
東京都千代田区永田町1-11-28 地図をクリックして拡大できます
合人社東京永田町ビル の外観イメージ
合人社東京永田町ビル(千代田区永田町)は、白の外観にガラスの窓がコントラストをなす台形型の外観をしています。周辺に視野を妨げる構造物が無いことで室内の採光を得られ、周辺からの圧迫感を受けず、開放感あふれる物件の構造に役立っており、シルバーのパネル張りが品位ある外観を保っています。旧来のビルディングスタイルとなっていますが、決して古さを感じさせることのない構造となっていることも、活用の方法を広げています。









合人社東京永田町ビル の周辺イメージ
合人社東京永田町ビル(千代田区永田町)は永田町駅から徒歩2分、赤坂見附駅から徒歩8分、溜池山王駅から徒歩8分の距離にあり、移動や交通に不自由しない立地にあります。ビル周辺は落ち着いた雰囲気で、駅前には飲食店やコンビニエンスストアなども充実していることから、オフィスを拠点として活用するときに不自由しない環境も整っています。また、周辺には緑も残っているため、のびのびとしており、過ごしやすい環境です。



合人社東京永田町ビル の募集終了区画
近くの物件紹介
千代田区のエリア
近くの駅
取扱態様 | 仲介 |
---|---|
取扱会社 | 株式会社アドマイアー 東京都中央区日本橋3-2-3ユニバース第1ビル2F TEL. 03-5204-1031 宅地建物取引業免許 東京都知事(3)第94663号 マンション管理業免許 国土交通大臣(2)第034224号 賃貸住宅管理業免許 国土交通大臣(01)第005938号 |