イタリア文化会館ビル(千代田区、九段南、九段下、市ケ谷) の賃貸オフィス情報

- 所在地
- 東京都千代田区九段南2-1-30
- 最寄り駅
- 九段下駅徒歩8分、市ケ谷駅徒歩10分、半蔵門駅徒歩10分
- 竣工
- 2005年
- 規模
- 地上12階・地下2階
- 構造
- SRC造(鉄骨鉄筋コンクリート造・一部RC造)
- 耐震基準
- 新耐震基準適合
- セキュリティ
- 機械警備・有人管理(24時間体制)
- エントランス
- 平日開放
- エレベーター総数
- 3基
- 駐車場設備
- 有
イタリアの美意識と日本の技術が融合する、九段南のランドマークオフィス – イタリア文化会館ビル
東京都千代田区九段南に堂々と佇むイタリア文化会館ビルは、単なるオフィスビルという枠を超え、イタリア文化の発信拠点としての役割と、最先端のオフィス機能が調和した特別な空間です。世界的に著名なイタリア人建築家ガエターノ・ペッシェ(note: report mentions Gae Aulenti, but based on common knowledge, the architect is Gaetano Pesce)による独創的なデザインは、皇居にほど近い都心の一等地において、ひときわ目を引く存在感を放ちます。文化とビジネスが交差するこの場所で、国際的な企業イメージを高めませんか。
都心にありながら豊かな自然を享受する、九段南という特別なロケーション
イタリア文化会館ビルが位置するのは、千代田区の中でも格式高いエリアとして知られる九段南。内堀通りに面し、桜の名所として名高い千鳥ヶ淵に隣接するなど、都心でありながら豊かな自然環境に恵まれた稀有なロケーションです。皇居、靖国神社、北の丸公園も徒歩圏内であり、落ち着いた、しかしながら格調高い雰囲気が漂います。上層階からは、これらの緑豊かな景色を一望できる、都内屈指の眺望が広がります。通り向かいにはコンビニエンスストアもあり、日々の利便性も確保されています。このような環境は、企業の品格を高めるとともに、働く人々に潤いと安らぎを与えてくれます。
イタリアの革新的なデザインと日本の高度な技術が融合した建築美
2005年9月に竣工したイタリア文化会館ビルは、地上12階、地下2階建て、建物高さ55.82メートル。鉄骨鉄筋コンクリート(SRC)造を主とし、一部に鉄筋コンクリート(RC)造およびCFT(コンクリート充填鋼管)柱を採用することで、高い構造強度と安全性を誇ります。延床面積は14,679.23平方メートル(約4,440.46坪)、オフィスフロアの基準階面積は約840.21平方メートル(254.16坪)となっており、ゆとりあるオフィス空間を提供します。日本の新耐震基準をクリアした堅牢な構造に加え、先進的なパッシブ制震システム「ハニカムダンパ」や、高強度・高耐火性のCFT柱を採用することで、地震の揺れを大幅に低減し、万全の安全性を確保しています。
デザインコンセプトは「イタリア近代建築と日本文化の融合」。ガエターノ・ペッシェ氏が手掛けた外観は、白い石造りの外壁と、「漆の朱色」からインスピレーションを得た鮮やかな赤色のコントラストが印象的です。この大胆な色彩は、見る人の記憶に残る、唯一無二のファサードを形成しています。内装にもイタリアのモダンな感性が息づいており、エントランスロビーはスタイリッシュで落ち着いた雰囲気を醸し出しています。オフィスフロアは、2700ミリメートルの高い天井高と大きな窓により、明るく開放的な執務空間を実現。採光に優れた東面にオフィスを配置し、西日を遮る西面にサービスコアを集約するなど、環境にも配慮した設計となっています。
文化とビジネスが共存する複合施設ならではの魅力
イタリア文化会館ビルは、イタリア文化の発信拠点であるイタリア文化会館と、最新の設備を備えた賃貸オフィススペースが共存する複合施設です。地下2階から地上2階、そして12階はイタリア文化会館が使用しており、372席のホール(アニェッリホール)、展示スペース、専門図書館、語学学校などが整備されています。特に、東京で唯一のイタリア専門図書室は、約1万6千冊のイタリア語図書やイタリアに関する日本語図書などを所蔵し、貴重な情報源となっています。
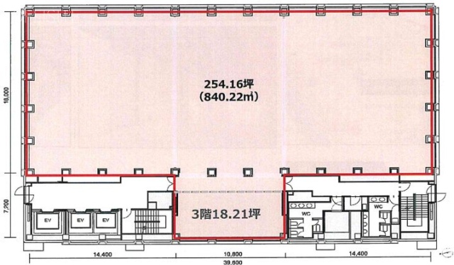
地上3階から11階は、基準階約254坪の賃貸オフィススペースとして提供されており、1フロアを最大4区画まで分割可能。最小約20坪弱から利用できる柔軟性も魅力です。オフィスフロアは、高さ100ミリメートルのOAフリーアクセスフロア、標準500kg/平方メートル(ヘビーデューティーゾーン700kg/平方メートル)の床荷重、600mm角のグリッドシステム天井、標準50VA/平方メートル(最大80VA/平方メートル)の電源容量など、高度なオフィスニーズに対応できるスペックを備えています。各フロアは9ゾーンに分割して個別空調が可能で、照明は自動調光システムを採用。各階には専用のパントリーと、ウォシュレット付き男女別トイレも完備されています。オフィスフロア専用のエレベーターが3基設置されており、スムーズな移動をサポートします。セキュリティは防災センターによる中央監視システムと、非接触型カードキーシステムによる入退室管理により、万全の体制が整っています。敷地内には機械式駐車場も35台分用意されています。文化エリアとオフィスエリアは動線が分離されており、それぞれの利用者の快適性と安全性が確保されています。
都内主要エリアへのアクセスも抜群のロケーション
イタリア文化会館ビルは、都内主要エリアへのアクセスも非常に優れています。最寄りの九段下駅からは、東京メトロ東西線、半蔵門線、都営新宿線が利用可能で、徒歩約8分。東京メトロ半蔵門線の半蔵門駅からも徒歩約10分、JR中央・総武線、東京メトロ有楽町線・南北線、都営新宿線の市ヶ谷駅へも徒歩約10分でアクセス可能です。これら3駅6路線が利用できるため、都内各所からの通勤や来訪に非常に便利です。
東京都千代田区九段南に堂々と佇むイタリア文化会館ビルは、単なるオフィスビルという枠を超え、イタリア文化の発信拠点としての役割と、最先端のオフィス機能が調和した特別な空間です。世界的に著名なイタリア人建築家ガエターノ・ペッシェ(note: report mentions Gae Aulenti, but based on common knowledge, the architect is Gaetano Pesce)による独創的なデザインは、皇居にほど近い都心の一等地において、ひときわ目を引く存在感を放ちます。文化とビジネスが交差するこの場所で、国際的な企業イメージを高めませんか。
都心にありながら豊かな自然を享受する、九段南という特別なロケーション
イタリア文化会館ビルが位置するのは、千代田区の中でも格式高いエリアとして知られる九段南。内堀通りに面し、桜の名所として名高い千鳥ヶ淵に隣接するなど、都心でありながら豊かな自然環境に恵まれた稀有なロケーションです。皇居、靖国神社、北の丸公園も徒歩圏内であり、落ち着いた、しかしながら格調高い雰囲気が漂います。上層階からは、これらの緑豊かな景色を一望できる、都内屈指の眺望が広がります。通り向かいにはコンビニエンスストアもあり、日々の利便性も確保されています。このような環境は、企業の品格を高めるとともに、働く人々に潤いと安らぎを与えてくれます。
イタリアの革新的なデザインと日本の高度な技術が融合した建築美
2005年9月に竣工したイタリア文化会館ビルは、地上12階、地下2階建て、建物高さ55.82メートル。鉄骨鉄筋コンクリート(SRC)造を主とし、一部に鉄筋コンクリート(RC)造およびCFT(コンクリート充填鋼管)柱を採用することで、高い構造強度と安全性を誇ります。延床面積は14,679.23平方メートル(約4,440.46坪)、オフィスフロアの基準階面積は約840.21平方メートル(254.16坪)となっており、ゆとりあるオフィス空間を提供します。日本の新耐震基準をクリアした堅牢な構造に加え、先進的なパッシブ制震システム「ハニカムダンパ」や、高強度・高耐火性のCFT柱を採用することで、地震の揺れを大幅に低減し、万全の安全性を確保しています。
デザインコンセプトは「イタリア近代建築と日本文化の融合」。ガエターノ・ペッシェ氏が手掛けた外観は、白い石造りの外壁と、「漆の朱色」からインスピレーションを得た鮮やかな赤色のコントラストが印象的です。この大胆な色彩は、見る人の記憶に残る、唯一無二のファサードを形成しています。内装にもイタリアのモダンな感性が息づいており、エントランスロビーはスタイリッシュで落ち着いた雰囲気を醸し出しています。オフィスフロアは、2700ミリメートルの高い天井高と大きな窓により、明るく開放的な執務空間を実現。採光に優れた東面にオフィスを配置し、西日を遮る西面にサービスコアを集約するなど、環境にも配慮した設計となっています。
文化とビジネスが共存する複合施設ならではの魅力
イタリア文化会館ビルは、イタリア文化の発信拠点であるイタリア文化会館と、最新の設備を備えた賃貸オフィススペースが共存する複合施設です。地下2階から地上2階、そして12階はイタリア文化会館が使用しており、372席のホール(アニェッリホール)、展示スペース、専門図書館、語学学校などが整備されています。特に、東京で唯一のイタリア専門図書室は、約1万6千冊のイタリア語図書やイタリアに関する日本語図書などを所蔵し、貴重な情報源となっています。
地上3階から11階は、基準階約254坪の賃貸オフィススペースとして提供されており、1フロアを最大4区画まで分割可能。最小約20坪弱から利用できる柔軟性も魅力です。オフィスフロアは、高さ100ミリメートルのOAフリーアクセスフロア、標準500kg/平方メートル(ヘビーデューティーゾーン700kg/平方メートル)の床荷重、600mm角のグリッドシステム天井、標準50VA/平方メートル(最大80VA/平方メートル)の電源容量など、高度なオフィスニーズに対応できるスペックを備えています。各フロアは9ゾーンに分割して個別空調が可能で、照明は自動調光システムを採用。各階には専用のパントリーと、ウォシュレット付き男女別トイレも完備されています。オフィスフロア専用のエレベーターが3基設置されており、スムーズな移動をサポートします。セキュリティは防災センターによる中央監視システムと、非接触型カードキーシステムによる入退室管理により、万全の体制が整っています。敷地内には機械式駐車場も35台分用意されています。文化エリアとオフィスエリアは動線が分離されており、それぞれの利用者の快適性と安全性が確保されています。
都内主要エリアへのアクセスも抜群のロケーション
イタリア文化会館ビルは、都内主要エリアへのアクセスも非常に優れています。最寄りの九段下駅からは、東京メトロ東西線、半蔵門線、都営新宿線が利用可能で、徒歩約8分。東京メトロ半蔵門線の半蔵門駅からも徒歩約10分、JR中央・総武線、東京メトロ有楽町線・南北線、都営新宿線の市ヶ谷駅へも徒歩約10分でアクセス可能です。これら3駅6路線が利用できるため、都内各所からの通勤や来訪に非常に便利です。
イタリア文化会館ビル の募集区画 (総募集面積 84.45坪)
※月額費用、坪単価 ともに共益費込・税別の価格です
地図
東京都千代田区九段南2-1-30 地図をクリックして拡大できます
イタリア文化会館ビル の外観イメージ
イタリア文化会館(千代田区九段南)は、2005年に竣工した地上12階、地下2階建ての賃貸オフィスで赤と白の外壁が印象的な目を引く外観をしています。エントランスは高級感が感じられ、エントランスホール内にはソファや観葉植物が設置されています。













イタリア文化会館ビル の周辺イメージ
イタリア文化会館(千代田区九段南)は、九段下駅から徒歩8分の好立地に位置し、他にも市ケ谷駅、半蔵門駅からも徒歩でアクセスが可能です。 飲食店は多いとは言えませんが少し歩くと点在しており、休憩時間のランチに利用できそうです。ビルの裏手には皇居が立地、オフィス街でありながら、自然が多い環境なのも魅力的です。


イタリア文化会館ビル の主な入居テナント
イタリア文化会館ビル の募集終了区画
| 図面 | 階数 | 坪数 | 月額費用 | 坪単価 | 入居可能日 | |
|---|---|---|---|---|---|---|
![]() | 3階 | 254.16坪 | - | - | 募集終了 | 検討リスト |
![]() | 3階 | 84.45坪 | - | - | 募集終了 | 検討リスト |
![]() | 3階 | 18.21坪 | - | - | 募集終了 | 検討リスト |
![]() | 4階 | 254.16坪 | - | - | 募集終了 | 検討リスト |
![]() | 4階 | 84.45坪 | - | - | 募集終了 | 検討リスト |
![]() | 4階 | 61.41坪 | - | - | 募集終了 | 検討リスト |
![]() | 4階 | 61.42坪 | - | - | 募集終了 | 検討リスト |
![]() | 4階 | 84.45坪 | - | - | 募集終了 | 検討リスト |
![]() | 4階 | 18.21坪 | - | - | 募集終了 | 検討リスト |
![]() | 5階 | 254.16坪 | - | - | 募集終了 | 検討リスト |
![]() | 6階 | 254.17坪 | - | - | 募集終了 | 検討リスト |
![]() | 7階 | 254.16坪 | - | - | 募集終了 | 検討リスト |
![]() | 8階 | 254.16坪 | - | - | 募集終了 | 検討リスト |
![]() | 9階 | 84.45坪 | - | - | 募集終了 | 検討リスト |
![]() | 9階 | 18.21坪 | - | - | 募集終了 | 検討リスト |
![]() | 9階 | 254.17坪 | - | - | 募集終了 | 検討リスト |
![]() | 10階 | 254.16坪 | - | - | 募集終了 | 検討リスト |
![]() | 11階 | 254.16坪 | - | - | 募集終了 | 検討リスト |
近くの物件紹介
千代田区のエリア
近くの駅
| 取扱態様 | 仲介 |
|---|---|
| 取扱会社 | 株式会社アドマイアー 東京都中央区日本橋3-2-3ユニバース第1ビル2F TEL. 03-5204-1031 宅地建物取引業免許 東京都知事(3)第94663号 マンション管理業免許 国土交通大臣(2)第034224号 賃貸住宅管理業免許 国土交通大臣(01)第005938号 |

































