アイオーシンバシ(港区、新橋、内幸町、汐留) の賃貸オフィス情報

- 所在地
- 東京都港区新橋1-11-2
- 最寄り駅
- 新橋駅徒歩1分、内幸町駅徒歩6分、汐留駅徒歩6分
- 竣工
- 1964年
- リニューアル済み
- 耐震補強工事2020年08月
- 規模
- 地上6階・地下1階
- 構造
- RC造(鉄筋コンクリート造)
- 耐震基準
- 耐震補強済み(新耐震相当)(2020/8)
- エントランス
- 平日開放
- エレベーター総数
- 1基
- 駐車場設備
- 無
アイオーシンバシ の物件特徴・おすすめポイント
■ 2020年フルリノベーション。内外装ともに一新されており、新築のような清潔感と、リノベーションならではのデザイン性を両立しています。
■ 希少な小規模1フロア。17坪程度のワンフロア占有が可能なため、プライバシーを確保しつつ自社らしいオフィス構築が可能です。
■ 充実のインフラ。75VA/㎡の高容量コンセントや光ケーブル引込済など、小規模ながら最新鋭のIT設備を搭載しています。
■ 潤いを与えるテラス空間。ビル内にテラスが設置されており、都心の真ん中でリラックスできる貴重な共有スペースを提供します。
アイオーシンバシ の募集区画 (総募集面積 0.00坪)
現在募集はありません。
建物に関するよくある質問と回答
A. 東京メトロ銀座線「新橋」駅から徒歩1分、JR「新橋」駅からも徒歩2分と、主要ターミナルからすぐの非常に便利な立地です。
Q. 建物の築年数は?
A. 1964年竣工ですが、2020年8月に建物全体のフルリノベーションを実施しており、設備や内装は最新の状態にアップデートされています。
Q. 1フロアの面積はどのくらいですか?
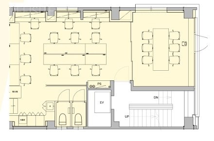
A. 基準階面積は約57.77㎡(17.47坪)です。小規模ながら1フロア1テナントとして利用できる独立性が特徴です。
Q. IT環境について教えてください。
A. コンセント容量を75VA/㎡確保し、光ケーブルも各階EPSまで引込済みですので、スムーズに導入いただけます。
Q. セキュリティはどうなっていますか?
A. 非接触ICカードキーによる管理システムを導入しており、24時間安心してご利用いただけます。
Q. 室内で特徴的な設備はありますか?
A. 天井高は2,550mmを確保し、個別空調を完備。また、リノベーション物件ならではのデザイン性の高い仕上がりが魅力です。
Q. テラスは誰でも利用できますか?
A. はい、入居テナント様が利用できるテラススペースが設けられており、気分転換などに最適です。
地図
東京都港区新橋1-11-2 地図をクリックして拡大できます
アイオーシンバシ の外観イメージ
新橋1丁目の歴史ある街並みに馴染みつつも、2020年のリノベーションによって刷新されたスタイリッシュな外観が目を引きます。シンプルながらも細部にこだわりを感じさせるデザインは、伝統的な「新橋」という場所に現代的なエッセンスを加え、訪れる人に先進的でクリーンな印象を与えます。








アイオーシンバシ の周辺イメージ
新橋駅至近ということもあり、飲食店、コンビニ、金融機関、郵便局が密集する利便性極まるエリアです。ランチや会食の選択肢は都内随一であり、仕事帰りのプライベートも充実します。一方で銀座エリアも徒歩圏内であり、新橋の活気と銀座の洗練された雰囲気を日常的に使い分けることができる魅力的なロケーションです。


アイオーシンバシ のアクセス・ロケーション
都内どこへでも自在にアクセスできる、ビジネスの最前線に位置しています。
■ 新橋駅:徒歩1分 JR・地下鉄・ゆりかもめの各線が集結する日本有数のビジネスハブ。新幹線や空港へのアクセスもスムーズで、出張の多い企業様にとっても大きなアドバンテージとなります。
■ 港区新橋1丁目アドレス 都心の重要拠点にオフィスを構えることで、企業の信頼性を高めるだけでなく、優れた人材の確保にも寄与する戦略的なロケーションです。
アイオーシンバシ の募集終了区画
| 図面 | 階数 | 坪数 | 月額費用 | 坪単価 | 入居可能日 | |
|---|---|---|---|---|---|---|
![]() | B1階 | 16.19坪 | お問い合わせください | 募集終了 | 検討リスト | |
![]() | 1階 | 17.12坪 | お問い合わせください | 募集終了 | 検討リスト | |
![]() | 2階 | 17.47坪 | お問い合わせください | 募集終了 | 検討リスト | |
![]() | 3階 | 17.93坪 | お問い合わせください | 募集終了 | 検討リスト | |
![]() | 4階 | 17.47坪 | お問い合わせください | 募集終了 | 検討リスト | |
![]() | 5階 | 17.53坪 | お問い合わせください | 募集終了 | 検討リスト | |
![]() | 6階 | 17.47坪 | お問い合わせください | 募集終了 | 検討リスト |
アイオーシンバシ が選ばれる理由
■ 「新橋駅徒歩1分」という揺るぎない利便性 駅からの距離はビジネススピードに直結します。従業員の通勤負担軽減や、来客へのホスピタリティとして、これ以上の条件はありません。
■ フルリノベーションによる「デザインと機能」の融合 歴史あるビルの良さを活かしつつ、中身は最新スペックへ。他にはない独特の雰囲気を持つオフィスは、クリエイティブな発想を大切にする企業に選ばれています。
■ 小規模企業に最適な「1フロア占有」 共用部を気にせず、17坪というサイズ感で1フロアを独占できる自由度の高さが、スタートアップや個人事務所から高い評価を得ています。
近くの物件紹介
港区のエリア
近くの駅
| 取扱態様 | 仲介 |
|---|---|
| 取扱会社 | 株式会社アドマイアー 東京都中央区日本橋3-2-3ユニバース第1ビル2F TEL. 03-5204-1031 宅地建物取引業免許 東京都知事(3)第94663号 マンション管理業免許 国土交通大臣(2)第034224号 賃貸住宅管理業免許 国土交通大臣(01)第005938号 |






























