アーバン新橋(港区、新橋、内幸町、汐留) の賃貸オフィス情報

- 所在地
- 東京都港区新橋4-5-1
- 最寄り駅
- 新橋駅徒歩3分、内幸町駅徒歩4分、汐留駅徒歩8分
- 竣工
- 1992年
- 規模
- 地上14階・地下2階
- 構造
- S造(鉄骨造)
- 耐震基準
- 新耐震基準適合
- セキュリティ
- 機械警備(24時間監視)
- エントランス
- 平日開放
- エレベーター総数
- 2基
- 駐車場設備
- 要確認
アーバン新橋 の物件特徴・おすすめポイント
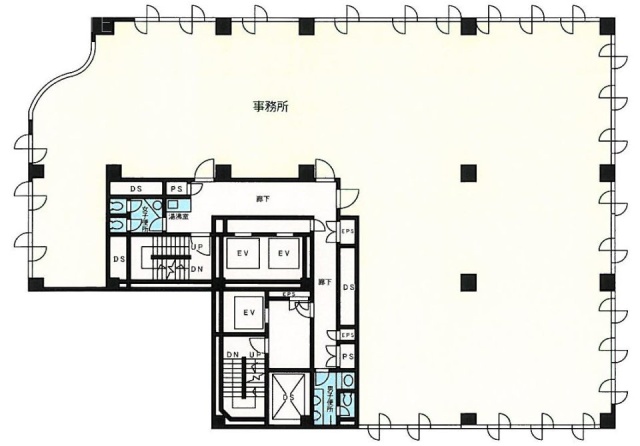
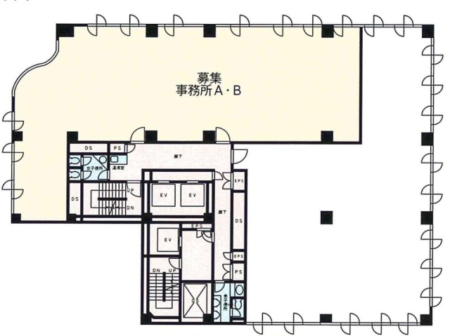
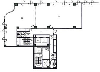
■室外に水回りを集約しておりレイアウト効率が良好です
■24時間対応の個別空調で多様な勤務形態に柔軟に対応
■一部1,000kg/㎡の床荷重があり機器設置にも適しています
■窓面からの採光により明るく開放的な執務空間を構築可能
アーバン新橋 の募集区画 (総募集面積 59.03坪)
※月額費用、坪単価 ともに共益費込・税別の価格です
建物に関するよくある質問と回答
JR線や東京メトロ銀座線などが乗り入れる新橋駅が最寄りです。烏森口から徒歩3分程度と近く、日比谷通り方面へ進む分かりやすい道順です。内幸町駅からも徒歩4分でアクセス可能です。
Q2. アーバン新橋ビルの耐震性能・構造はどうなっていますか?
1992年4月に竣工した建物で、新耐震基準に適合しています。構造は鉄骨鉄筋コンクリート造を採用しており、地上14階建ての規模を誇る安定した設計のビルです。
Q3. アーバン新橋ビルの室内スペック(天井高・床仕様・空調など)について教えてください。
配線は3WAYセルラーダクト方式を採用しており、空調は24時間対応の空冷ヒートポンプ式パッケージエアコンが導入されています。各階で温度設定ができる個別方式です。
Q4. アーバン新橋ビルには駐車場がありますか?
はい、当ビル内には駐車場が併設されています。新橋エリアの中心部にありながら、車両を利用するビジネススタイルにも柔軟に対応できる環境が整っています。
Q5. アーバン新橋ビルの床荷重はどのくらいですか?
標準で550kg/㎡の床荷重を確保しており、一部エリアでは1,000kg/㎡まで対応可能です。サーバーラックの設置や重量物の保管を検討されている企業に適した仕様です。
Q6. アーバン新橋ビルのセキュリティ体制はどうなっていますか?
本物件には機械警備システムが完備されています。24時間体制のセキュリティにより、夜間や休日を問わず入退館や執務が可能です。
Q7. アーバン新橋ビルのエレベーターは何基ありますか?
敷地内には2基のエレベーターが設置されています。基準階約147坪の規模に対して、フロア移動を円滑にサポートする体制が整っています。
地図
東京都港区新橋4-5-1 地図をクリックして拡大できます
アーバン新橋 の外観イメージ
地上14階建てのSRC造で、新橋エリアにおいて視認性の高い外観を備えています。等間隔に配置された大きな窓面は、周囲のビル群の中でも整然とした印象を与え、企業の信頼性を高める重厚感があります。エントランスや共用部は定期的に維持管理されており、来客に対して落ち着きのある洗練された印象を与えるデザインです。ビジネス街の品格を保ちつつ、現代的な機能美を併せ持っています。












アーバン新橋 の周辺イメージ
新橋4丁目の活気あるビジネスエリアに位置し、周辺環境は充実しています。徒歩1分圏内にコンビニエンスストアがあるほか、日比谷通り沿いや新橋駅周辺には「カンデオホテルズ東京新橋」などの宿泊施設や多彩な飲食店が集積しています。銀行や郵便局も徒歩圏内に揃っており、ビジネスに必要なインフラが完備された利便性の高いロケーションです。

アーバン新橋 のアクセス・ロケーション
■ 駅徒歩分数
・JR山手線・京浜東北線 「新橋」 駅 徒歩3分
・東京メトロ銀座線 「新橋」 駅 徒歩3分
・都営三田線 「内幸町」 駅 徒歩4分
・都営大江戸線 「汐留」 駅 徒歩8分
・ゆりかもめ 「汐留」 駅 徒歩8分
■ 主要エリアへのアクセス
新橋駅から東京駅まで約4分、品川駅まで約7分、新宿駅まで約20分と、主要ターミナル駅へ短時間で移動可能です。5路線以上が利用できるため、都内全域の取引先への訪問やスタッフの通勤において利便性を発揮します。
■ エリア特性
日本有数のビジネス街である新橋エリアの中心に位置します。金融機関や公的機関が近く、多くの企業が活動する拠点です。日比谷通りから一歩入った立地で、都心の賑わいと業務効率を両立できる環境です。
アーバン新橋 の募集終了区画
| 図面 | 階数 | 坪数 | 月額費用 | 坪単価 | 入居可能日 | |
|---|---|---|---|---|---|---|
![]() | B1階 | 41.32坪 | お問い合わせください | 募集終了 | 検討リスト | |
![]() | 1階 | 6.82坪 | お問い合わせください | 募集終了 | 検討リスト | |
![]() | 1階 | 20.00坪 | お問い合わせください | 募集終了 | 検討リスト | |
![]() | 2階 | 127.15坪 | お問い合わせください | 募集終了 | 検討リスト | |
![]() | 2階 | 32.96坪 | お問い合わせください | 募集終了 | 検討リスト | |
![]() | 2階 | 94.19坪 | お問い合わせください | 募集終了 | 検討リスト | |
![]() | 3階 | 127.15坪 | お問い合わせください | 募集終了 | 検討リスト | |
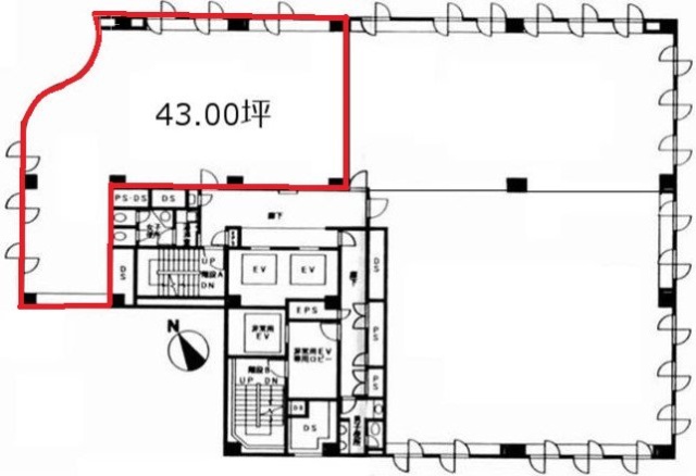
![]() | 3階 | 43.00坪 | お問い合わせください | 募集終了 | 検討リスト | |
![]() | 3階 | 44.84坪 | お問い合わせください | 募集終了 | 検討リスト | |
![]() | 3階 | 39.43坪 | お問い合わせください | 募集終了 | 検討リスト | |
![]() | 4階 | 146.75坪 | お問い合わせください | 募集終了 | 検討リスト | |
![]() | 5階 | 147.12坪 | お問い合わせください | 募集終了 | 検討リスト | |
![]() | 5階 | 26.75坪 | お問い合わせください | 募集終了 | 検討リスト | |
![]() | 6階 | 60.00坪 | お問い合わせください | 募集終了 | 検討リスト | |
![]() | 6階 | 45.00坪 | お問い合わせください | 募集終了 | 検討リスト | |
![]() | 7階 | 146.75坪 | お問い合わせください | 募集終了 | 検討リスト | |
![]() | 8階 | 73.37坪 | お問い合わせください | 募集終了 | 検討リスト | |
![]() | 8階 | 73.80坪 | お問い合わせください | 募集終了 | 検討リスト | |
![]() | 8階 | 31.94坪 | お問い合わせください | 募集終了 | 検討リスト | |
![]() | 8階 | 41.50坪 | お問い合わせください | 募集終了 | 検討リスト | |
![]() | 9階 | 146.75坪 | お問い合わせください | 募集終了 | 検討リスト | |
![]() | 9階 | 44.77坪 | お問い合わせください | 募集終了 | 検討リスト | |
![]() | 9階 | 88.11坪 | お問い合わせください | 募集終了 | 検討リスト | |
![]() | 9階 | 42.94坪 | お問い合わせください | 募集終了 | 検討リスト | |
![]() | 9階 | 59.03坪 | お問い合わせください | 募集終了 | 検討リスト | |
![]() | 10階 | 35.48坪 | お問い合わせください | 募集終了 | 検討リスト | |
![]() | 10階 | 111.27坪 | お問い合わせください | 募集終了 | 検討リスト | |
![]() | 11階 | 58.20坪 | お問い合わせください | 募集終了 | 検討リスト | |
![]() | 11階 | 20.00坪 | お問い合わせください | 募集終了 | 検討リスト | |
![]() | 11階 | 58.20坪 | お問い合わせください | 募集終了 | 検討リスト | |
![]() | 11階 | 33.40坪 | お問い合わせください | 募集終了 | 検討リスト | |
![]() | 12階 | 30.00坪 | お問い合わせください | 募集終了 | 検討リスト |
アーバン新橋 が選ばれる理由
■ 多様なビジネスを支える高い床荷重
一部1,000kg/㎡の床荷重に対応したスペックは、サーバー等の重量機器を設置するIT企業や技術系企業にとって価値となります。将来的な設備拡張にも対応できる柔軟性が備わっています。
■ レイアウト効率を重視した水回り分離設計
トイレや給湯室を執務室外に集約することで、契約面積を有効活用できます。無駄のない空間設計は、部署間の連携を円滑にする柔軟なレイアウトの構築を可能にします。
■ 24時間稼働を支える個別空調システム
24時間対応のヒートポンプ式パッケージエアコンにより、早朝や深夜の業務が発生する企業でも常に適切な環境を維持できます。ビル側の制限を受けにくい運用が、ビジネスの機動力を支えます。
近くの物件紹介
港区のエリア
近くの駅
| 取扱態様 | 仲介 |
|---|---|
| 取扱会社 | 株式会社アドマイアー 東京都中央区日本橋3-2-3ユニバース第1ビル2F TEL. 03-5204-1031 宅地建物取引業免許 東京都知事(3)第94663号 マンション管理業免許 国土交通大臣(2)第034224号 賃貸住宅管理業免許 国土交通大臣(01)第005938号 |







































