新橋フォディアビル(港区、新橋、内幸町、汐留) の賃貸オフィス情報

- 所在地
- 東京都港区新橋3-7-3
- 最寄り駅
- 新橋駅徒歩5分、内幸町駅徒歩7分、汐留駅徒歩10分
- 竣工
- 1992年
- 規模
- 地上9階・地下1階
- 構造
- S造(鉄骨造)
- 耐震基準
- 新耐震基準適合
- セキュリティ
- 機械警備(24時間監視)
- エントランス
- 平日開放
- エレベーター総数
- 1基
- 駐車場設備
- 要確認
新橋フォディアビル の物件特徴・おすすめポイント
■赤レンガ通り沿いの角地に近い立地で視認性があります
■1フロア1テナントのため隣室を気にせず業務を行えます
■2面採光とバルコニーにより室内は明るい設計です
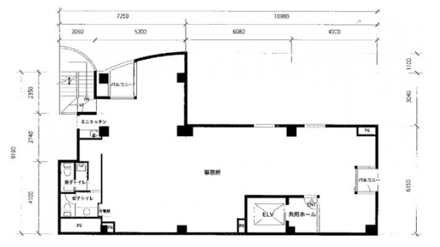
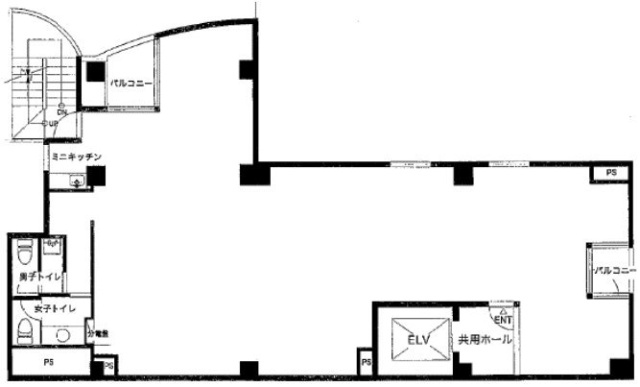
■OAフロアや男女別トイレなどオフィス設備が整います
新橋フォディアビル の募集区画 (総募集面積 0.00坪)
現在募集はありません。
建物に関するよくある質問と回答
A1. JR新橋駅の日比谷口または烏森口を出て、西方面へ進みます。店舗が立ち並ぶ赤レンガ通りを直進し、駅から約3分で到着します。
Q2. 新橋フォディアビルの耐震性能・構造はどうなっていますか?
A2. 1992年08月竣工の建物であり、新耐震基準に適合した事実があります。構造は鉄骨鉄筋コンクリート(SRC)造を採用しています。
Q3. 新橋フォディアビルの室内スペック(天井高・床仕様・空調など)について教えてください。
A3. 床面は配線を収納可能なOAフロア仕様です。空調は各フロアで調整ができる個別方式を採用しており、窓面が多く採光を確保しやすい構造です。
Q4. 新橋フォディアビルのセキュリティ体制はどうなっていますか?
A4. 機械警備システムを導入しており、24時間の入退館が可能です。夜間や休日も業務に取り組める体制が整っています。
Q5. 新橋フォディアビルにはエレベーターは何基ありますか?
A5. 館内には1基のエレベーターが設置されています。1フロア1テナントの構成のため、効率的な上下階移動が可能です。
Q6. 新橋フォディアビルの周辺環境について教えてください。
A6. 周辺は新橋エリアの赤レンガ通りに面し、近隣にはコンビニエンスストアや多様な飲食店、金融機関が揃っています。
地図
東京都港区新橋3-7-3 地図をクリックして拡大できます
新橋フォディアビル の外観イメージ
地上9階建、鉄骨鉄筋コンクリート造の佇まいです。ビル正面中央に配置されたバルコニーが外観のアクセントとなっており、赤レンガ通り沿いにおいて視認性を有します。1992年竣工ながらモダンで清潔感のあるデザインを維持しており、来客に対しても整然とした印象を与えます。周辺のビル群の中でも意匠性が保たれ、企業の拠点としての存在感を示す造りとなっています。








新橋フォディアビル の周辺イメージ
物件が位置する赤レンガ通り周辺は、新橋エリアの利便性が集積しています。徒歩1分圏内にセブンイレブン新橋3丁目赤レンガ通り店があるほか、みずほ銀行や三菱UFJ銀行の支店も至近にあり、事務作業や外出の際も効率的です。また、多種多様な飲食店が近隣に位置し、従業員の利便性向上に寄与します。ビジネスと日常の機能が高度に集積した周辺環境です。


新橋フォディアビル のアクセス・ロケーション
■ 駅徒歩分数
・JR山手線・京浜東北線 「新橋」駅 徒歩3分
・東京メトロ銀座線 「新橋」駅 徒歩3分
・都営浅草線 「新橋」駅 徒歩5分
・都営三田線 「内幸町」駅 徒歩5分
・都営大江戸線 「汐留」駅 徒歩10分
■ 主要エリアへのアクセス
東京駅まで約4分、品川駅まで約7分と、主要ターミナル駅へ直接アクセスできるため、広域移動が多い企業に利便性をもたらします。また、渋谷や銀座方面への移動も円滑で、都内各所への営業効率向上に寄与します。
■ エリア特性
新橋3丁目は、ビジネス街として知られ、多様なオフィスが集積しています。特に赤レンガ通りは視認性が高く、金融機関や郵便局などのビジネスインフラが徒歩圏内に完備された、利便性の高いエリアです。
新橋フォディアビル の募集終了区画
| 図面 | 階数 | 坪数 | 月額費用 | 坪単価 | 入居可能日 | |
|---|---|---|---|---|---|---|
![]() | B1階 | 22.48坪 | お問い合わせください | 募集終了 | 検討リスト | |
![]() | 3階 | 35.15坪 | お問い合わせください | 募集終了 | 検討リスト | |
![]() | 4階 | 35.15坪 | お問い合わせください | 募集終了 | 検討リスト | |
![]() | 5階 | 35.15坪 | お問い合わせください | 募集終了 | 検討リスト | |
![]() | 6階 | 35.15坪 | お問い合わせください | 募集終了 | 検討リスト | |
![]() | 8階 | 30.33坪 | お問い合わせください | 募集終了 | 検討リスト | |
![]() | 9階 | 16.26坪 | お問い合わせください | 募集終了 | 検討リスト |
新橋フォディアビル が選ばれる理由
■ 1フロア1テナントによる独立性の確保
1フロアを単独で使用できるため、共用部からの外部者の視線を制限でき、機密保持を重視する企業に適しています。他の入居者を気にすることなく、自社独自のオフィス環境を構築することが可能です。
■ 複数路線利用による人材確保・通勤の利便性
JR各線に加え、地下鉄3路線が徒歩圏内にある立地は、広範囲からの通勤を可能にします。この交通網は、人材の確保や、社員の通勤負担軽減といった面で組織運営に寄与します。
■ 2面採光とバルコニーがもたらす執務環境の向上
正面のバルコニーと2面採光設計により、室内に安定した光を取り込み、開放的なワークスペースを確保できます。明るい室内環境は、社員の業務集中を助け、生産性の向上に貢献します。
近くの物件紹介
港区のエリア
近くの駅
| 取扱態様 | 仲介 |
|---|---|
| 取扱会社 | 株式会社アドマイアー 東京都中央区日本橋3-2-3ユニバース第1ビル2F TEL. 03-5204-1031 宅地建物取引業免許 東京都知事(3)第94663号 マンション管理業免許 国土交通大臣(2)第034224号 賃貸住宅管理業免許 国土交通大臣(01)第005938号 |



























