CIRCLES日本橋馬喰町(中央区、日本橋馬喰町、馬喰町、馬喰横山) の賃貸オフィス情報

- 所在地
- 東京都中央区日本橋馬喰町1-5-12
- 最寄り駅
- 馬喰町駅徒歩1分、馬喰横山駅徒歩2分、東日本橋駅徒歩6分
- 竣工
- 2019年
- 規模
- 地上11階
- 構造
- S造(鉄骨造)
- 耐震基準
- 新耐震基準適合
- セキュリティ
- 機械警備(24時間監視)
- エントランス
- 平日開放
- エレベーター総数
- 1基
- 駐車場設備
- 有(平置き2台・荷捌き用含む)
- 設備
- 貸会議室、 屋上テラス(ルーフトップテラス)
■JR総武線快速「馬喰町」駅徒歩1分、3駅3路線が利用可能な好立地
■2019年竣工、デザイン性と機能性を兼ね備えた築浅オフィスビル
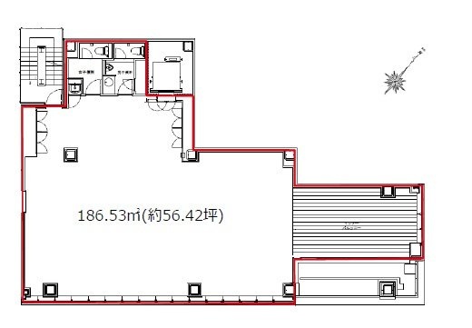
■基準階約58坪、天井高約3mのスケルトン天井が開放感を演出
■屋上テラスや共用会議室、1階カフェなど、働き方を豊かにする共用施設
■清洲橋通り沿いの角地に位置し、視認性と採光性は極めて良好
■2019年竣工、デザイン性と機能性を兼ね備えた築浅オフィスビル
■基準階約58坪、天井高約3mのスケルトン天井が開放感を演出
■屋上テラスや共用会議室、1階カフェなど、働き方を豊かにする共用施設
■清洲橋通り沿いの角地に位置し、視認性と採光性は極めて良好
CIRCLES日本橋馬喰町 の募集区画 (総募集面積 58.16坪)
※月額費用、坪単価 ともに共益費込・税別の価格です
建物に関するよくある質問と回答
Q1: このビルの耐震性能について教えてください
A: CIRCLES日本橋馬喰町は2019年12月竣工であり、最新の新耐震基準を満たした鉄骨造(S造)で設計されています。高い安全性で安心してご利用いただけます。
Q2: 空調設備の仕様を教えてください
A: 個別空調方式を採用しています。フロアごとに細やかな温度設定が可能で、快適な執務環境を実現しています。スケルトン天井のデザインと調和した設備設計も魅力です。
Q3: 通信環境について教えてください
A: 光ファイバー対応の通信環境が整っています。OAフロア(高さ40mm)を完備しており、デザイン性の高いオフィスでも配線をすっきりと収納できます。
Q4: エレベーターは何基ありますか?
A: 1基を設置しています。11階建て・基準階約58坪の規模に対し標準的な設置数です。セキュリティ機能も備えており、安心して利用できます。
Q5: セキュリティ体制について教えてください
A: 機械警備システムを導入しており、24時間の入退館が可能です。エントランスは平日開放されていますが、夜間や休日はカードキー等によるセキュリティ管理が行われています。
Q6: 共用施設について教えてください
A: 11階にテナント専用の屋上テラス、共用ラウンジ(パントリー機能付き)、会議室を設置しています。また、1階にはカフェが入居しており、社外の方との打ち合わせやリフレッシュに活用できます。
Q7: 駐車場の収容台数を教えてください
A: 敷地内に平置き駐車場が2台分(うち1台は荷捌き用)ございます。利用可能かどうかは空き状況によりますので、事前にお問い合わせください。
A: CIRCLES日本橋馬喰町は2019年12月竣工であり、最新の新耐震基準を満たした鉄骨造(S造)で設計されています。高い安全性で安心してご利用いただけます。
Q2: 空調設備の仕様を教えてください
A: 個別空調方式を採用しています。フロアごとに細やかな温度設定が可能で、快適な執務環境を実現しています。スケルトン天井のデザインと調和した設備設計も魅力です。
Q3: 通信環境について教えてください
A: 光ファイバー対応の通信環境が整っています。OAフロア(高さ40mm)を完備しており、デザイン性の高いオフィスでも配線をすっきりと収納できます。
Q4: エレベーターは何基ありますか?
A: 1基を設置しています。11階建て・基準階約58坪の規模に対し標準的な設置数です。セキュリティ機能も備えており、安心して利用できます。
Q5: セキュリティ体制について教えてください
A: 機械警備システムを導入しており、24時間の入退館が可能です。エントランスは平日開放されていますが、夜間や休日はカードキー等によるセキュリティ管理が行われています。
Q6: 共用施設について教えてください
A: 11階にテナント専用の屋上テラス、共用ラウンジ(パントリー機能付き)、会議室を設置しています。また、1階にはカフェが入居しており、社外の方との打ち合わせやリフレッシュに活用できます。
Q7: 駐車場の収容台数を教えてください
A: 敷地内に平置き駐車場が2台分(うち1台は荷捌き用)ございます。利用可能かどうかは空き状況によりますので、事前にお問い合わせください。
地図
東京都中央区日本橋馬喰町1-5-12 地図をクリックして拡大できます
CIRCLES日本橋馬喰町 の外観イメージ
地上11階建て、ガラス面を多用したスタイリッシュでモダンな外観です。2019年竣工の新しい建物らしく、黒やダークトーンを基調としたシャープなデザインが街中で際立ちます。1階にはおしゃれなカフェが入居しており、ビルの顔として洗練された雰囲気を醸し出しています。










CIRCLES日本橋馬喰町 の周辺イメージ
馬喰町駅、馬喰横山駅、東日本橋駅の3駅が地下通路でつながっており、雨の日でもスムーズにアクセスできる交通至便な立地です。清洲橋通りに面しており、周辺にはコンビニや飲食店が多数点在。問屋街の歴史ある雰囲気と、新しいカフェやギャラリーが混在する、近年人気が高まっているエリアです。


CIRCLES日本橋馬喰町 の募集終了区画
近くの物件紹介
中央区のエリア
近くの駅
| 取扱態様 | 仲介 |
|---|---|
| 取扱会社 | 株式会社アドマイアー 東京都中央区日本橋3-2-3ユニバース第1ビル2F TEL. 03-5204-1031 宅地建物取引業免許 東京都知事(3)第94663号 マンション管理業免許 国土交通大臣(2)第034224号 賃貸住宅管理業免許 国土交通大臣(01)第005938号 |































