Daiwa赤坂ビル(港区、赤坂、溜池山王、国会議事堂前) の賃貸オフィス情報

- 所在地
- 東京都港区赤坂2-14-5
- 最寄り駅
- 赤坂駅徒歩2分、溜池山王駅徒歩7分、国会議事堂前駅徒歩7分
- 竣工
- 1990年
- 規模
- 地上7階・地下2階
- 構造
- SRC造(鉄骨鉄筋コンクリート造)
- 耐震基準
- 新耐震基準適合
- セキュリティ
- 機械警備・有人管理(24時間体制)
- エントランス
- 毎日開放(6-24時)
- エレベーター総数
- 3基
- 駐車場設備
- 要確認
赤坂駅徒歩3分、洗練された意匠がビジネスシーンを彩る「Daiwa赤坂ビル」
東京都港区赤坂2-14-5に位置する「Daiwa赤坂ビル」は、スタイリッシュな外観が印象的な地上9階建ての賃貸オフィスビルです。東京メトロ千代田線「赤坂」駅から徒歩わずか3分という優れたアクセスを誇り、都心でのビジネス展開を行う理想的な場所と言えるでしょう。
最寄りの東京メトロ千代田線「赤坂」駅まで歩いてわずか3分という立地は、日々の通勤はもちろんのこと、顧客やビジネスパートナーとの打ち合わせにおいても大きな利点となります。さらに、東京メトロ銀座線と丸ノ内線が乗り入れる「赤坂見附」駅へも徒歩6分、東京メトロ南北線と銀座線が利用できる「溜池山王」駅へは徒歩7分、そして東京メトロ半蔵門線、銀座線、都営大江戸線が乗り入れる「青山一丁目」駅へも徒歩10分と、複数路線が容易に利用できるため、都内主要ビジネスエリアへの移動は 極めて便利です。
基準階面積は約100坪であり、中規模なオフィスに適した空間を提供します。2,600mmの天井高は開放感を演出し、50mmのOAフロアは配線を床下に隠すことで、 整然とし安全な働く空間を実現します。各テナントが個別に温度を調整可能な個別空調システムを採用しており、従業員一人ひとりの快適性を細やかにサポートします。また、男女別のトイレが完備されており、日々のオフィスライフの質を高めます。
「Daiwa赤坂ビル」は、現代的なビジネスの要求に応えるため、充実した設備を備えています。新耐震基準をクリアしており、地震に対する安全性も確保されています。さらに、24時間体制の機械警備システムが 建物全体を監視し、入居企業の資産と従業員の安全をしっかりと守ります。敷地内には機械式駐車場も併設されており、自動車を利用する従業員や顧客にとっても利便性が高いと言えるでしょう。
赤坂駅周辺には、レストランやカフェ、日々の必要を満たすコンビニエンスストア、そしてビジネスに不可欠な銀行などが集まっており、オフィスワーカーにとって利便性の高い環境です。さらに、徒歩圏内には、現代的なエンターテイメントの中心地である赤坂サカスや、ハイクラスな商業施設が集まる赤坂Bizタワーなど、 文化的なスポットも近くに存在し、ビジネスだけでなく、豊かなアフターワークを楽しむことも可能です。
「Daiwa赤坂ビル」は、そのスタイリッシュなデザイン、 優れた立地、多方面への交通アクセス、快適なオフィス環境、そして信頼できるセキュリティ体制が融合し、多様なビジネスニーズに対応できる、格式の高い賃貸オフィスビルです。赤坂というエリアのこのオフィスであなたのビジネスの更なる発展を始めてみませんか。
東京都港区赤坂2-14-5に位置する「Daiwa赤坂ビル」は、スタイリッシュな外観が印象的な地上9階建ての賃貸オフィスビルです。東京メトロ千代田線「赤坂」駅から徒歩わずか3分という優れたアクセスを誇り、都心でのビジネス展開を行う理想的な場所と言えるでしょう。
最寄りの東京メトロ千代田線「赤坂」駅まで歩いてわずか3分という立地は、日々の通勤はもちろんのこと、顧客やビジネスパートナーとの打ち合わせにおいても大きな利点となります。さらに、東京メトロ銀座線と丸ノ内線が乗り入れる「赤坂見附」駅へも徒歩6分、東京メトロ南北線と銀座線が利用できる「溜池山王」駅へは徒歩7分、そして東京メトロ半蔵門線、銀座線、都営大江戸線が乗り入れる「青山一丁目」駅へも徒歩10分と、複数路線が容易に利用できるため、都内主要ビジネスエリアへの移動は 極めて便利です。
基準階面積は約100坪であり、中規模なオフィスに適した空間を提供します。2,600mmの天井高は開放感を演出し、50mmのOAフロアは配線を床下に隠すことで、 整然とし安全な働く空間を実現します。各テナントが個別に温度を調整可能な個別空調システムを採用しており、従業員一人ひとりの快適性を細やかにサポートします。また、男女別のトイレが完備されており、日々のオフィスライフの質を高めます。
「Daiwa赤坂ビル」は、現代的なビジネスの要求に応えるため、充実した設備を備えています。新耐震基準をクリアしており、地震に対する安全性も確保されています。さらに、24時間体制の機械警備システムが 建物全体を監視し、入居企業の資産と従業員の安全をしっかりと守ります。敷地内には機械式駐車場も併設されており、自動車を利用する従業員や顧客にとっても利便性が高いと言えるでしょう。
赤坂駅周辺には、レストランやカフェ、日々の必要を満たすコンビニエンスストア、そしてビジネスに不可欠な銀行などが集まっており、オフィスワーカーにとって利便性の高い環境です。さらに、徒歩圏内には、現代的なエンターテイメントの中心地である赤坂サカスや、ハイクラスな商業施設が集まる赤坂Bizタワーなど、 文化的なスポットも近くに存在し、ビジネスだけでなく、豊かなアフターワークを楽しむことも可能です。
「Daiwa赤坂ビル」は、そのスタイリッシュなデザイン、 優れた立地、多方面への交通アクセス、快適なオフィス環境、そして信頼できるセキュリティ体制が融合し、多様なビジネスニーズに対応できる、格式の高い賃貸オフィスビルです。赤坂というエリアのこのオフィスであなたのビジネスの更なる発展を始めてみませんか。
Daiwa赤坂ビル の募集区画 (総募集面積 70.47坪)
※月額費用、坪単価 ともに共益費込・税別の価格です
地図
東京都港区赤坂2-14-5 地図をクリックして拡大できます
Daiwa赤坂ビル の外観イメージ
Daiwa赤坂ビル(港区赤坂)は、1990年に竣工した地上7階、地下2階建てのオフィスビルで、2011年にフルリニューアルされています。木目調のルーバーに囲われた一目見たら忘れられない非常に印象的な外観をしています。広々とした高級感の漂うエントランスに、ゆったりとしたソファが設置されているのも特徴的です。外観も共有スペースも落ち着きとグレードの高さを兼ね備えているので、来客時の印象も申し分ないでしょう。

















Daiwa赤坂ビル の周辺イメージ
Daiwa赤坂ビル(港区赤坂)は、赤坂駅徒歩2分、溜池山王駅徒歩5分の好立地に建っています。駅近の為、コンビニ等も色々あり買い出しなどに便利です。韓国料理店をはじめとした飲食店やカフェも豊富なエリアなのでランチの場所に困ることはなさそうです。オフィスの窓からは東京タワーや六本木ヒルズを眺望でき、都会のど真ん中で働いている実感を味わえるでしょう。

Daiwa赤坂ビル の募集終了区画
| 図面 | 階数 | 坪数 | 月額費用 | 坪単価 | 入居可能日 | |
|---|---|---|---|---|---|---|
![]() | B1階 | 102.00坪 | お問い合わせください | 募集終了 | 検討リスト | |
![]() | B1階 | 126.48坪 | お問い合わせください | 募集終了 | 検討リスト | |
![]() | B1階 | 181.50坪 | お問い合わせください | 募集終了 | 検討リスト | |
![]() | 1階 | 55.64坪 | お問い合わせください | 募集終了 | 検討リスト | |
![]() | 1階 | 10.83坪 | お問い合わせください | 募集終了 | 検討リスト | |
![]() | 1階 | 66.53坪 | お問い合わせください | 募集終了 | 検討リスト | |
![]() | 1階 | 85.87坪 | お問い合わせください | 募集終了 | 検討リスト | |
![]() | 1階 | 62.01坪 | お問い合わせください | 募集終了 | 検討リスト | |
![]() | 1階 | 55.70坪 | お問い合わせください | 募集終了 | 検討リスト | |
![]() | 1階 | 95.13坪 | お問い合わせください | 募集終了 | 検討リスト | |
![]() | 1階 | 86.07坪 | お問い合わせください | 募集終了 | 検討リスト | |
![]() | 2階 | 49.73坪 | お問い合わせください | 募集終了 | 検討リスト | |
![]() | 2階 | 69.86坪 | お問い合わせください | 募集終了 | 検討リスト | |
![]() | 2階 | 94.47坪 | お問い合わせください | 募集終了 | 検討リスト | |
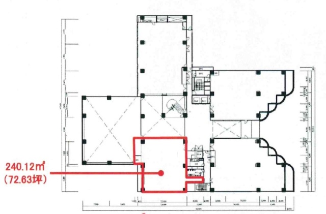
![]() | 2階 | 72.63坪 | お問い合わせください | 募集終了 | 検討リスト | |
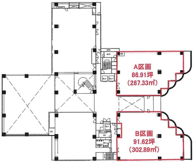
![]() | 2階 | 86.91坪 | お問い合わせください | 募集終了 | 検討リスト | |
![]() | 2階 | 91.35坪 | お問い合わせください | 募集終了 | 検討リスト | |
![]() | 2階 | 43.16坪 | お問い合わせください | 募集終了 | 検討リスト | |
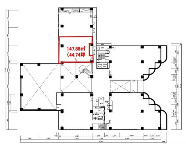
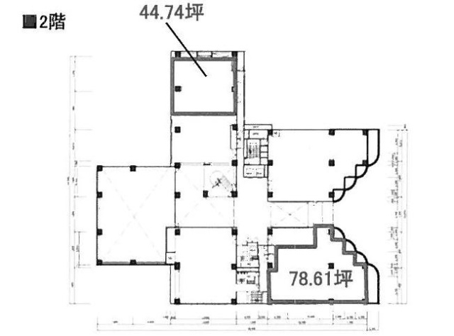
![]() | 2階 | 44.74坪 | お問い合わせください | 募集終了 | 検討リスト | |
![]() | 2階 | 78.61坪 | お問い合わせください | 募集終了 | 検討リスト | |
![]() | 2階 | 41.95坪 | お問い合わせください | 募集終了 | 検討リスト | |
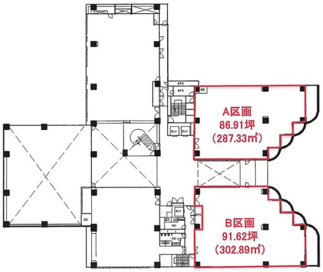
![]() | 2階 | 86.91坪 | お問い合わせください | 募集終了 | 検討リスト | |
![]() | 2階 | 91.62坪 | お問い合わせください | 募集終了 | 検討リスト | |
![]() | 3階 | 200.00坪 | お問い合わせください | 募集終了 | 検討リスト | |
![]() | 3階 | 19.08坪 | お問い合わせください | 募集終了 | 検討リスト | |
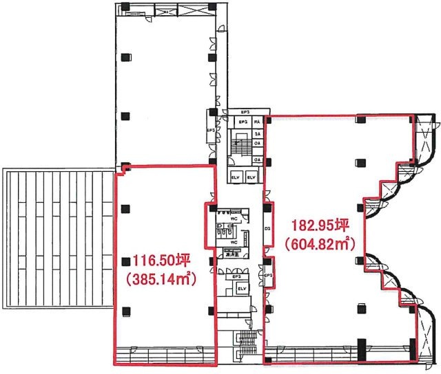
![]() | 3階 | 116.50坪 | お問い合わせください | 募集終了 | 検討リスト | |
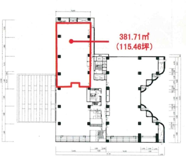
![]() | 3階 | 115.46坪 | お問い合わせください | 募集終了 | 検討リスト | |
![]() | 3階 | 182.96坪 | お問い合わせください | 募集終了 | 検討リスト | |
![]() | 3階 | 28.58坪 | お問い合わせください | 募集終了 | 検討リスト | |
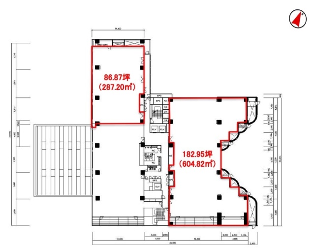
![]() | 3階 | 182.95坪 | お問い合わせください | 募集終了 | 検討リスト | |
![]() | 3階 | 86.87坪 | お問い合わせください | 募集終了 | 検討リスト | |
![]() | 3階 | 88.28坪 | お問い合わせください | 募集終了 | 検討リスト | |
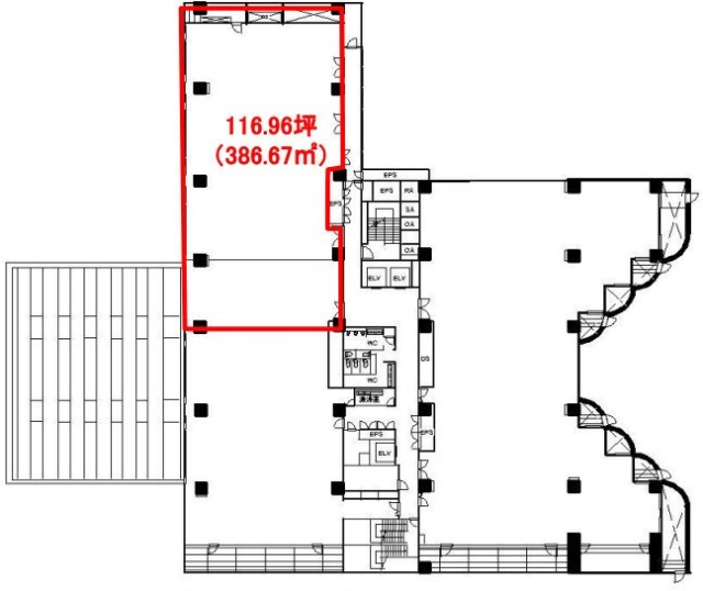
![]() | 4階 | 116.96坪 | お問い合わせください | 募集終了 | 検討リスト | |
![]() | 4階 | 187.18坪 | お問い合わせください | 募集終了 | 検討リスト | |
![]() | 4階 | 75.07坪 | お問い合わせください | 募集終了 | 検討リスト | |
![]() | 5階 | 307.69坪 | お問い合わせください | 募集終了 | 検討リスト | |
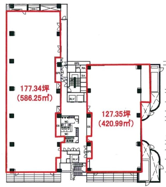
![]() | 5階 | 177.34坪 | お問い合わせください | 募集終了 | 検討リスト | |
![]() | 5階 | 127.35坪 | お問い合わせください | 募集終了 | 検討リスト | |
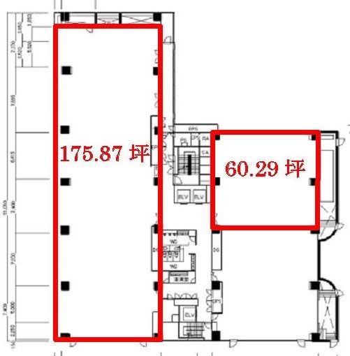
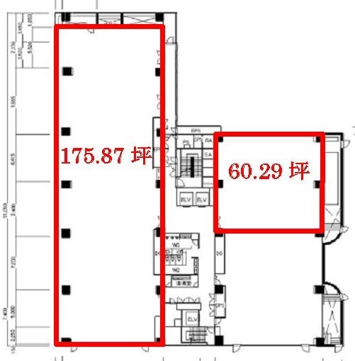
![]() | 6階 | 175.87坪 | お問い合わせください | 募集終了 | 検討リスト | |
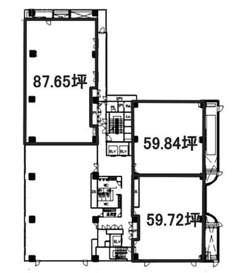
![]() | 6階 | 59.84坪 | お問い合わせください | 募集終了 | 検討リスト | |
![]() | 6階 | 59.72坪 | お問い合わせください | 募集終了 | 検討リスト | |
![]() | 6階 | 88.66坪 | お問い合わせください | 募集終了 | 検討リスト | |
![]() | 6階 | 86.25坪 | お問い合わせください | 募集終了 | 検討リスト | |
![]() | 6階 | 119.56坪 | お問い合わせください | 募集終了 | 検討リスト | |
![]() | 7階 | 166.70坪 | お問い合わせください | 募集終了 | 検討リスト | |
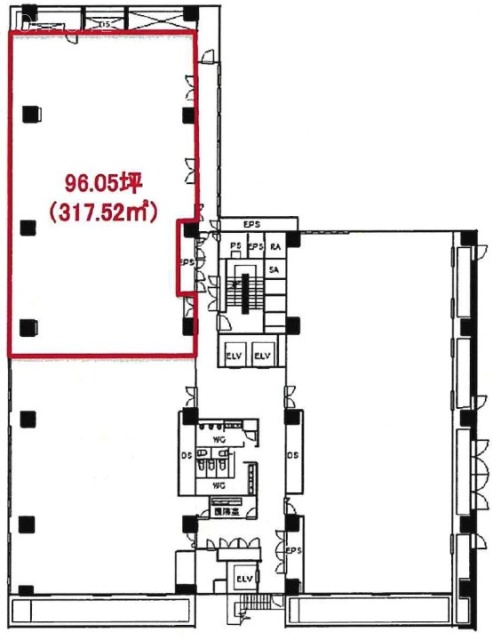
![]() | 7階 | 96.05坪 | お問い合わせください | 募集終了 | 検討リスト | |
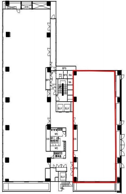
![]() | 7階 | 97.86坪 | お問い合わせください | 募集終了 | 検討リスト |
近くの物件紹介
港区のエリア
近くの駅
| 取扱態様 | 仲介 |
|---|---|
| 取扱会社 | 株式会社アドマイアー 東京都中央区日本橋3-2-3ユニバース第1ビル2F TEL. 03-5204-1031 宅地建物取引業免許 東京都知事(3)第94663号 マンション管理業免許 国土交通大臣(2)第034224号 賃貸住宅管理業免許 国土交通大臣(01)第005938号 |






















































