町田の賃貸オフィス・貸事務所情報
町田エリアは東京都町田市に位置し、小田急線「町田駅」やJR横浜線「町田駅」を中心に広がる地域です。主要施設には「小田急百貨店」「芹ヶ谷公園」「町田東急ツインズ」「仲見世商店街」があり、商業施設や自然豊かな公園が充実しています。繁華街の活気と郊外の落ち着きを兼ね備え、都心や横浜へのアクセスも良好。賃貸オフィスを探す企業にとって、利便性と多様な魅力を持つエリアです。
検索結果 34 件
東京建物町田ビル(町田市、中町、町田、小田急相模原)
- 所在地
- 東京都町田市中町1-1-16
- 最寄り駅
- 町田駅徒歩5分、小田急相模原駅徒歩25分
- 竣工
- 1992年
- 規模
- 地上10階・地下2階
- 耐震基準
- 新耐震基準適合
- セキュリティ
- 機械警備(24時間監視)
- 駐車場設備
- 要確認
東京建物町田ビル の募集区画 (総募集面積 8.86坪)
※月額費用、坪単価 ともに共益費込・税別の価格です
森町ビル(町田市、中町、町田、相模大野)
- 所在地
- 東京都町田市中町1-2-2
- 最寄り駅
- 町田駅徒歩3分、相模大野駅徒歩25分、古淵駅徒歩37分
- 竣工
- 1975年
- 規模
- 地上5階
- 駐車場設備
- 要確認
森町ビル の募集区画 (総募集面積 46.90坪)
※月額費用、坪単価 ともに共益費込・税別の価格です
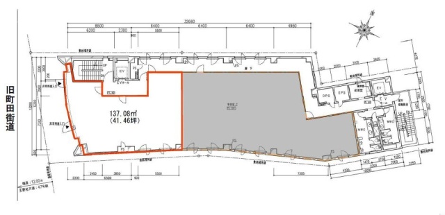
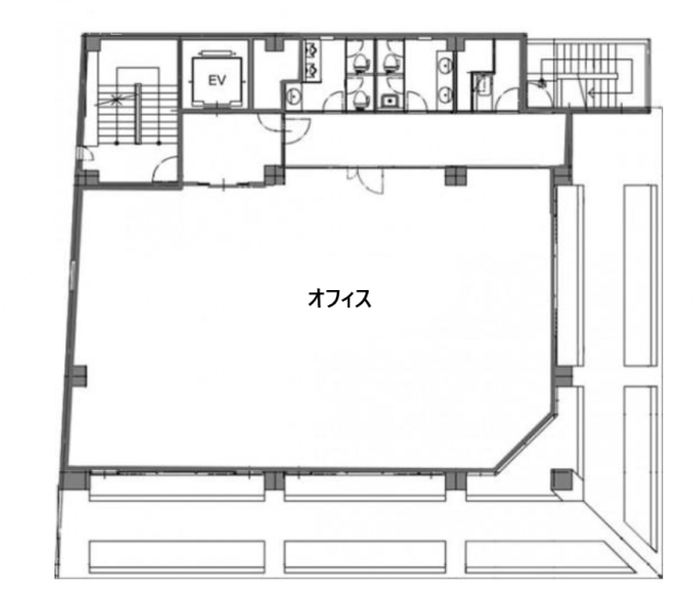
日新町田ビル(町田市、中町、町田、相模大野)
- 所在地
- 東京都町田市中町1-2-4
- 最寄り駅
- 町田駅徒歩2分、相模大野駅徒歩28分
- 竣工
- 1996年
- 規模
- 地上7階・地下1階
- 耐震基準
- 新耐震基準適合
- セキュリティ
- 機械警備(24時間監視)
- 駐車場設備
- 要確認
日新町田ビル の募集区画 (総募集面積 41.46坪)
※月額費用、坪単価 ともに共益費込・税別の価格です
四谷学院駅前ビル(町田市、中町、町田)
- 所在地
- 東京都町田市中町1-2-1
- 最寄り駅
- 町田駅徒歩6分
- 竣工
- 1990年
- 規模
- 地上7階・地下2階
- 耐震基準
- 新耐震基準適合
- セキュリティ
- 機械警備(24時間監視)
- 駐車場設備
- 要確認(機械式6台)
四谷学院駅前ビル の募集区画 (総募集面積 64.35坪)
※月額費用、坪単価 ともに共益費込・税別の価格です
マデリア町田(町田市、中町、町田)
- 所在地
- 東京都町田市中町1-1-15
- 最寄り駅
- 町田駅徒歩2分
- 竣工
- 2025年
- 規模
- 地上12階
- 耐震基準
- 新耐震基準適合
- 駐車場設備
- 要確認
マデリア町田 の募集区画 (総募集面積 38.54坪)
※月額費用、坪単価 ともに共益費込・税別の価格です
MFビル(町田市、中町、町田、相模大野)
- 所在地
- 東京都町田市中町1-18-12
- 最寄り駅
- 町田駅徒歩9分、相模大野駅徒歩30分
- 竣工
- 1979年
- 規模
- 地上4階
- セキュリティ
- 機械警備(24時間監視)
- 駐車場設備
- 要確認
MFビル の募集区画 (総募集面積 54.29坪)
※月額費用、坪単価 ともに共益費込・税別の価格です
新宿屋ビル(町田市、原町田、町田)
- 所在地
- 東京都町田市原町田6-13-22
- 最寄り駅
- 町田駅徒歩3分
- 竣工
- 1974年
- 規模
- 地上9階・地下2階
- 駐車場設備
- 要確認
新宿屋ビル の募集区画 (総募集面積 76.82坪)
※月額費用、坪単価 ともに共益費込・税別の価格です
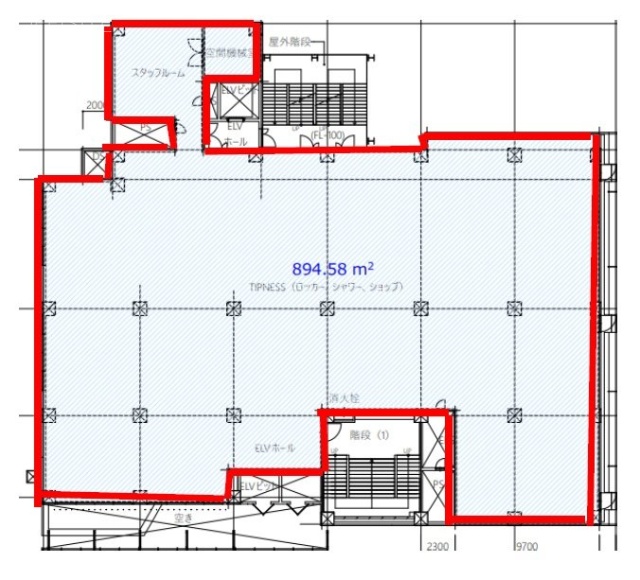
Tip´s町田ビル(町田市、原町田、町田)
- 所在地
- 東京都町田市原町田6-7-8
- 最寄り駅
- 町田駅徒歩5分
- 竣工
- 1992年
- 規模
- 地上7階・地下1階
- 耐震基準
- 新耐震基準適合
- 駐車場設備
- 要確認
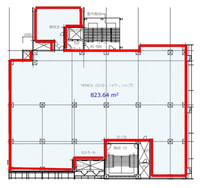
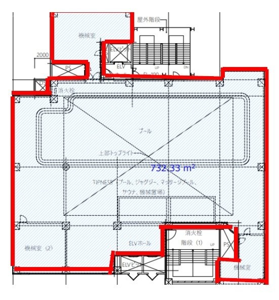
Tip´s町田ビル の募集区画 (総募集面積 741.28坪)
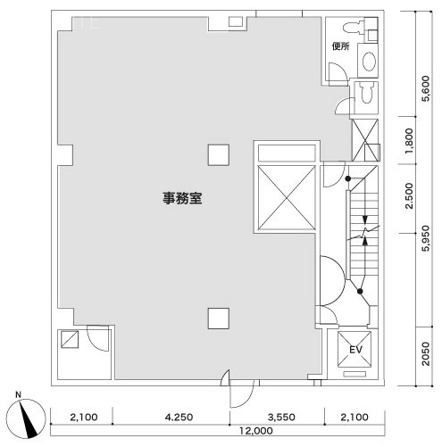
| 図面 | 階数 | 坪数 | 月額費用 | 坪単価 | 入居可能日 | |
|---|---|---|---|---|---|---|
![]() | 5階 | 270.61坪 | 非公開 | 非公開 | 相談 | 検討リスト お問い合わせ |
![]() | 6階 | 249.15坪 | 非公開 | 非公開 | 相談 | 検討リスト お問い合わせ |
![]() | 7階 | 221.52坪 | 非公開 | 非公開 | 相談 | 検討リスト お問い合わせ |
※月額費用、坪単価 ともに共益費込・税別の価格です
MIキューブ町田イースト(町田市、原町田、町田、古淵)
- 所在地
- 東京都町田市原町田4-5-8
- 最寄り駅
- 町田駅徒歩3分、古淵駅徒歩44分
- 竣工
- 1989年
- 規模
- 地上7階・地下1階
- 耐震基準
- 新耐震基準適合
- 駐車場設備
- 要確認
MIキューブ町田イースト の募集区画 (総募集面積 46.56坪)
※月額費用、坪単価 ともに共益費込・税別の価格です
ミサワビル(町田市、原町田、町田、相模大野)
- 所在地
- 東京都町田市原町田4-2-14
- 最寄り駅
- 町田駅徒歩5分、相模大野駅徒歩22分
- 竣工
- 1984年
- 規模
- 地上6階・地下1階
- 耐震基準
- 新耐震基準適合
- 駐車場設備
- 要確認
ミサワビル の募集区画 (総募集面積 34.65坪)
※月額費用、坪単価 ともに共益費込・税別の価格です
OSJ成瀬ビル(町田市、南成瀬、成瀬、つくし野)
- 所在地
- 東京都町田市南成瀬1-2-2
- 最寄り駅
- 成瀬駅徒歩2分、つくし野駅徒歩20分
- 竣工
- 1993年
- 規模
- 地上5階・地下1階
- 耐震基準
- 新耐震基準適合
- セキュリティ
- 機械警備(24時間監視)
- 駐車場設備
- 要確認
OSJ成瀬ビル の募集区画 (総募集面積 136.47坪)
※月額費用、坪単価 ともに共益費込・税別の価格です
日本生命町田ビル(町田市、森野、町田、相模大野)
- 所在地
- 東京都町田市森野1-13-14
- 最寄り駅
- 町田駅徒歩3分、相模大野駅徒歩23分、玉川学園前駅徒歩41分
- 竣工
- 1981年
- 規模
- 地上9階・地下1階
- セキュリティ
- 機械警備(24時間監視)
- 駐車場設備
- 有(平置き3台、機械式32台)
日本生命町田ビル の募集区画 (総募集面積 26.99坪)
※月額費用、坪単価 ともに共益費込・税別の価格です
大樹生命町田ビル(町田市、森野、町田)
- 所在地
- 東京都町田市森野1-7-23
- 最寄り駅
- 町田駅徒歩6分
- 竣工
- 1988年
- 規模
- 地上6階・地下1階
- 耐震基準
- 新耐震基準適合
- セキュリティ
- 機械警備・有人管理(24時間体制)
- 駐車場設備
- 有(機械式52台)
大樹生命町田ビル の募集区画 (総募集面積 63.08坪)
※月額費用、坪単価 ともに共益費込・税別の価格です
町田STビル(町田市、森野、町田)
- 所在地
- 東京都町田市森野1-33-10
- 最寄り駅
- 町田駅徒歩5分
- 竣工
- 1989年
- 規模
- 地上5階・地下1階
- 耐震基準
- 新耐震基準適合
- セキュリティ
- 機械警備(24時間監視)
- 駐車場設備
- 要確認
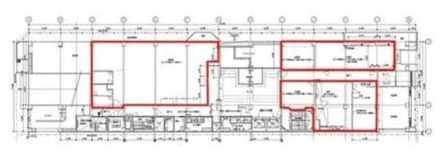
町田STビル の募集区画 (総募集面積 3,194.06坪)
| 図面 | 階数 | 坪数 | 月額費用 | 坪単価 | 入居可能日 | |
|---|---|---|---|---|---|---|
![]() | 1階 | 167.83坪 | 非公開 | 非公開 | 2026/1/1 | 検討リスト お問い合わせ |
![]() | 2階 | 267.75坪 | 非公開 | 非公開 | 2026/1/1 | 検討リスト お問い合わせ |
![]() | 3階 | 304.61坪 | 非公開 | 非公開 | 2026/1/1 | 検討リスト お問い合わせ |
![]() | 4階 | 276.12坪 | 非公開 | 非公開 | 2026/1/1 | 検討リスト お問い合わせ |
![]() | 1階 | 1,016.31坪 | 非公開 | 非公開 | 2026/1/1 | 検討リスト お問い合わせ |
![]() | 3階 | 304.61坪 | 非公開 | 非公開 | 2026/1/1 | 検討リスト お問い合わせ |
![]() | 3階 | 156.52坪 | 非公開 | 非公開 | 2026/1/1 | 検討リスト お問い合わせ |
![]() | 3階 | 148.08坪 | 非公開 | 非公開 | 2026/1/1 | 検討リスト お問い合わせ |
![]() | 4階 | 276.12坪 | 非公開 | 非公開 | 2026/1/1 | 検討リスト お問い合わせ |
![]() | 4階 | 142.19坪 | 非公開 | 非公開 | 2026/1/1 | 検討リスト お問い合わせ |
![]() | 4階 | 133.92坪 | 非公開 | 非公開 | 2026/1/1 | 検討リスト お問い合わせ |
※月額費用、坪単価 ともに共益費込・税別の価格です
町田トーセイビル(町田市、森野、町田)
- 所在地
- 東京都町田市森野1-25-19
- 最寄り駅
- 町田駅徒歩3分
- 竣工
- 2025年
- 規模
- 地上5階
- 耐震基準
- 新耐震基準適合
- セキュリティ
- 機械警備(24時間監視)
- 駐車場設備
- 要確認
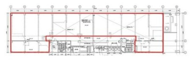
町田トーセイビル の募集区画 (総募集面積 324.20坪)
| 図面 | 階数 | 坪数 | 月額費用 | 坪単価 | 入居可能日 | |
|---|---|---|---|---|---|---|
![]() | 1階 | 59.90坪 | 非公開 | 非公開 | 即時 | 検討リスト お問い合わせ |
![]() | 1階 | 68.80坪 | 非公開 | 非公開 | 即時 | 検討リスト お問い合わせ |
![]() | 2階 | 158.82坪 | 非公開 | 非公開 | 即時 | 検討リスト お問い合わせ |
![]() | 5階 | 36.68坪 | 非公開 | 非公開 | 即時 | 検討リスト お問い合わせ |
※月額費用、坪単価 ともに共益費込・税別の価格です
パールビル(町田市、森野、町田)
- 所在地
- 東京都町田市森野1-10-6
- 最寄り駅
- 町田駅徒歩3分
- 竣工
- 1990年
- 規模
- 地上6階
- 耐震基準
- 新耐震基準適合
- 駐車場設備
- 要確認
パールビル の募集区画 (総募集面積 25.83坪)
※月額費用、坪単価 ともに共益費込・税別の価格です
MFビル(町田市、中町、町田、相模大野)
- 所在地
- 東京都町田市中町1-18-12
- 最寄り駅
- 町田駅徒歩9分、相模大野駅徒歩30分
- 竣工
- 1979年
- 規模
- 地上4階
- セキュリティ
- 機械警備(24時間監視)
- 駐車場設備
- 要確認
MFビル の募集区画 (総募集面積 0.00坪)
大樹生命町田ビル(町田市、森野、町田)
- 所在地
- 東京都町田市森野1-7-23
- 最寄り駅
- 町田駅徒歩6分
- 竣工
- 1988年
- 規模
- 地上6階・地下1階
- 耐震基準
- 新耐震基準適合
- セキュリティ
- 機械警備・有人管理(24時間体制)
- 駐車場設備
- 有(機械式52台)
大樹生命町田ビル の募集区画 (総募集面積 0.00坪)
ESTATE NAKAMACHI(町田市、中町、町田)
- 所在地
- 東京都町田市中町1-21-16
- 最寄り駅
- 町田駅徒歩7分
- 竣工
- 1989年
- 規模
- 地上5階・地下1階
- 耐震基準
- 新耐震基準適合
- 駐車場設備
- 要確認
ESTATE NAKAMACHI の募集区画 (総募集面積 0.00坪)
MIキューブ町田イースト(町田市、原町田、町田、古淵)
- 所在地
- 東京都町田市原町田4-5-8
- 最寄り駅
- 町田駅徒歩3分、古淵駅徒歩44分
- 竣工
- 1989年
- 規模
- 地上7階・地下1階
- 耐震基準
- 新耐震基準適合
- 駐車場設備
- 要確認
MIキューブ町田イースト の募集区画 (総募集面積 0.00坪)
芳栄ビル(町田市、南成瀬、成瀬)
- 所在地
- 東京都町田市南成瀬1-8-11
- 最寄り駅
- 成瀬駅徒歩3分
- 竣工
- 1981年
- 規模
- 地上3階
- セキュリティ
- 機械警備(24時間監視)
- 駐車場設備
- 要確認
芳栄ビル の募集区画 (総募集面積 0.00坪)
町田トーセイビル(町田市、森野、町田)
- 所在地
- 東京都町田市森野1-25-19
- 最寄り駅
- 町田駅徒歩3分
- 竣工
- 2025年
- 規模
- 地上5階
- 耐震基準
- 新耐震基準適合
- セキュリティ
- 機械警備(24時間監視)
- 駐車場設備
- 要確認
町田トーセイビル の募集区画 (総募集面積 0.00坪)
アズハーツ33(町田市、原町田、町田)
- 所在地
- 東京都町田市原町田6-13-20
- 最寄り駅
- 町田駅徒歩2分
- 竣工
- 1990年
- 規模
- 地上7階・地下1階
- 耐震基準
- 新耐震基準適合
- セキュリティ
- 機械警備(24時間監視)
- 駐車場設備
- 要確認
アズハーツ33 の募集区画 (総募集面積 0.00坪)
OSJ成瀬ビル(町田市、南成瀬、成瀬、つくし野)
- 所在地
- 東京都町田市南成瀬1-2-2
- 最寄り駅
- 成瀬駅徒歩2分、つくし野駅徒歩20分
- 竣工
- 1993年
- 規模
- 地上5階・地下1階
- 耐震基準
- 新耐震基準適合
- セキュリティ
- 機械警備(24時間監視)
- 駐車場設備
- 要確認
OSJ成瀬ビル の募集区画 (総募集面積 0.00坪)
ユニオンビル(町田市、森野、町田)
- 所在地
- 東京都町田市森野1-34-18
- 最寄り駅
- 町田駅徒歩3分
- 竣工
- 1974年
- 規模
- 地上5階
- 駐車場設備
- 要確認
ユニオンビル の募集区画 (総募集面積 0.00坪)
ジアロ町田ビル(町田市、森野、町田、相模大野)
- 所在地
- 東京都町田市森野1-35-1
- 最寄り駅
- 町田駅徒歩2分、相模大野駅徒歩27分、古淵駅徒歩37分
- 竣工
- 1997年
- 規模
- 地上5階
- 耐震基準
- 新耐震基準適合
- セキュリティ
- 機械警備(24時間監視)
- 駐車場設備
- 要確認
ジアロ町田ビル の募集区画 (総募集面積 0.00坪)
町田エリアの賃貸オフィス・店舗は、JR横浜線と小田急線の2路線が利用できる交通の便の良さが魅力です。駅周辺には商業施設や飲食店が充実しており、生活利便性も高いです。近年は再開発が進み、新しいオフィスビルや商業施設が増えてきました。比較的小規模なオフィスが多く、スタートアップ企業や個人事業主向けの物件も豊富です。駅から少し離れると、閑静な住宅街や公園が広がり、落ち着いた環境で働くことができます。また、駅周辺には多様な業種の店舗があり、小売店や飲食店、サービス業など幅広いビジネスチャンスがあります。






















































































































































































































































































