北大宮駅の賃貸オフィス・貸事務所情報
検索結果 13 件
並び替え
CROTH Omiyaビル(さいたま市北区、植竹町、北大宮、鉄道博物館)
- 所在地
- 埼玉県さいたま市北区植竹町1-17-1
- 最寄り駅
- 北大宮駅徒歩7分、鉄道博物館駅徒歩10分
- 竣工
- 1992年
- 規模
- 地上6階
- 耐震基準
- 新耐震基準適合
- セキュリティ
- 機械警備(24時間監視)
- 駐車場設備
- 要確認
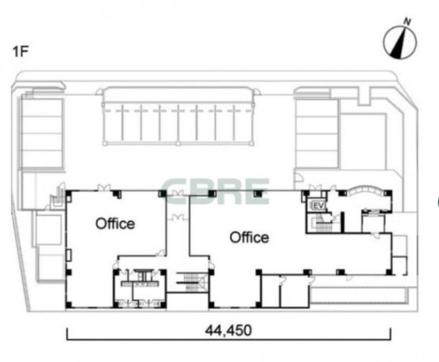
CROTH Omiyaビル の募集区画 (総募集面積 62.56坪)
※月額費用、坪単価 ともに共益費込・税別の価格です
第6松ビル(さいたま市北区、東大成町、北大宮、鉄道博物館)
- 所在地
- 埼玉県さいたま市北区東大成町1-460
- 最寄り駅
- 北大宮駅徒歩6分、鉄道博物館駅徒歩11分、大宮駅徒歩20分
- 竣工
- 1987年
- 規模
- 地上7階
- 耐震基準
- 新耐震基準適合
- 駐車場設備
- 要確認
第6松ビル の募集区画 (総募集面積 75.27坪)
※月額費用、坪単価 ともに共益費込・税別の価格です
大宮ソラミチKOZ(さいたま市大宮区、桜木町、大宮、北与野)
- 所在地
- 埼玉県さいたま市大宮区桜木町1-195-1
- 最寄り駅
- 大宮駅徒歩3分、北与野駅徒歩24分、北大宮駅徒歩25分
- 竣工
- 2023年
- 規模
- 地上13階
- 耐震基準
- 新耐震基準適合
- セキュリティ
- 機械警備(24時間監視)
- 駐車場設備
- 有
大宮ソラミチKOZは、2023年竣工の最新スペックを備えた大規模賃貸オフィスビルです。東日本最大のターミナル駅である大宮駅から徒歩3分という優れたアクセス性を誇り、都内主要駅や北関東、東北方面への移動もスムーズです。制震装置TMDや非常用発電機などのBCP機能を標準装備し、企業の事業継続を強力に支援します。天井高2,850mmの無柱空間は開放感があり、20分割の個別空調により快適な執務環境を実現可能です。
大宮ソラミチKOZ の募集区画 (総募集面積 70.60坪)
※月額費用、坪単価 ともに共益費込・税別の価格です
GM大宮ビル(さいたま市大宮区、土手町、北大宮、大宮)
- 所在地
- 埼玉県さいたま市大宮区土手町1-49-8
- 最寄り駅
- 北大宮駅徒歩3分、大宮駅徒歩15分
- 竣工
- 1993年
- 規模
- 地上8階
- 耐震基準
- 新耐震基準適合
- セキュリティ
- 機械警備・有人管理(24時間体制)
- 駐車場設備
- 有(平面・機械式併用 最大81台)
- 設備
- トイレ男女別
G・M大宮ビルは、東武アーバンパークライン「北大宮駅」から徒歩3分、県内最大のターミナル「大宮駅」からも徒歩圏内に位置する、旧中山道沿いのランドマーク的オフィスビルです。1993年竣工の新耐震基準適合物件で、石張りの壁とガラスのコントラストが美しい2層吹き抜けのエントランスが、訪れるゲストに格調高い第一印象を与えます。基準階は約193坪とエリア屈指の広さを誇り、無柱に近い整形空間と500kg/㎡の床荷重により、大規模な事務センターから機能的なオフィスまで幅広いニーズに対応。個別空調、OAフロア、男女別トイレといった基本スペックに加え、有人・機械警備を併用した万全のセキュリティ体制を完備しています。さらに最大81台収容可能な大型駐車場を敷地内に備えており、車移動を主軸とする企業にとって、大宮エリアでこれ以上ないUSPを備えたビジネス拠点です。
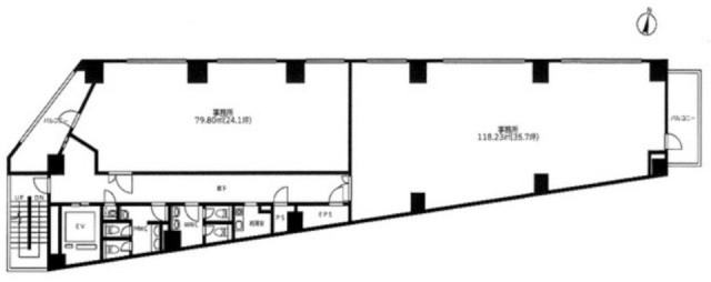
GM大宮ビル の募集区画 (総募集面積 411.04坪)
| 図面 | 階数 | 坪数 | 月額費用 | 坪単価 | 入居可能日 | |
|---|---|---|---|---|---|---|
![]() | 7階 | 65.87坪 | お問い合わせください | 即時 | 検討リスト お問い合わせ | |
![]() | 6階 | 61.98坪 | お問い合わせください | 2026/5/1 | 検討リスト お問い合わせ | |
準備中 | 7階 | 174.53坪 | お問い合わせください | 相談 | 検討リスト お問い合わせ | |
準備中 | 7階 | 108.66坪 | お問い合わせください | 2026/7/1 | 検討リスト お問い合わせ |
※月額費用、坪単価 ともに共益費込・税別の価格です
(仮)大宮区宮町2丁目テナントビル(さいたま市大宮区、宮町、大宮、北大宮)
- 所在地
- 埼玉県さいたま市大宮区宮町2-59
- 最寄り駅
- 大宮駅徒歩7分、北大宮駅徒歩12分
- 竣工
- 2026年
- 規模
- 地上7階
- 耐震基準
- 新耐震基準適合
- セキュリティ
- 機械警備(24時間監視)
- 駐車場設備
- 要確認
JR各線・東武線「大宮」駅の東口から徒歩7分、飲食店やオフィスで賑わう宮町エリアに2026年竣工予定の、待望の新築テナントビルです。地上7階建て(計画)のスタイリッシュな外観は、古い建物が多い東口エリアにおいて圧倒的な存在感と新鮮さを放ちます。基準階は約60坪ですが、約20坪台からの分割区画も設定されており、美容サロンやクリニック、IT企業のオフィスなど多様な業種に対応可能です。最新の耐震基準と設備スペックを備え、内装を自由に作り込めるスケルトン仕様(区画による)で引き渡されるため、自社のブランドイメージを最大限に表現できる希少な物件です。
(仮)大宮区宮町2丁目テナントビル の募集区画 (総募集面積 179.70坪)
| 図面 | 階数 | 坪数 | 月額費用 | 坪単価 | 入居可能日 | |
|---|---|---|---|---|---|---|
![]() | 2階 | 24.14坪 | お問い合わせください | 2026/7 | 検討リスト お問い合わせ | |
![]() | 3階 | 35.76坪 | お問い合わせください | 2026/7 | 検討リスト お問い合わせ | |
![]() | 4階 | 35.76坪 | お問い合わせください | 2026/7 | 検討リスト お問い合わせ | |
![]() | 6階 | 35.76坪 | お問い合わせください | 2026/7 | 検討リスト お問い合わせ | |
![]() | 3階 | 24.14坪 | お問い合わせください | 2026/7 | 検討リスト お問い合わせ | |
![]() | 6階 | 24.14坪 | お問い合わせください | 2026/7 | 検討リスト お問い合わせ |
※月額費用、坪単価 ともに共益費込・税別の価格です











































