西武新宿駅の賃貸オフィス・貸事務所情報
西武新宿線の起点「西武新宿駅」。世界最大のターミナル新宿駅に近接し、ビジネス、商業、エンターテインメントのすべてが凝縮された、圧倒的なエネルギーを放つ最重要拠点です。
検索結果 49 件
プラザ新大樹(新宿区、大久保、東新宿、新大久保)
- 所在地
- 東京都新宿区大久保2-1-8
- 最寄り駅
- 東新宿駅徒歩5分、新大久保駅徒歩8分、西武新宿駅徒歩12分
- 竣工
- 1971年
- 規模
- 地上14階
- セキュリティ
- 機械警備(24時間監視)
- 駐車場設備
- 無
- 設備
- トイレ男女別
プラザ新大樹 の募集区画 (総募集面積 68.30坪)
※月額費用、坪単価 ともに共益費込・税別の価格です
GUNKAN東新宿(新宿区、大久保、東新宿、新大久保)
- 所在地
- 東京都新宿区大久保1-1-10
- 最寄り駅
- 東新宿駅徒歩3分、新大久保駅徒歩7分、西武新宿駅徒歩8分
- 竣工
- 1970年
- 規模
- 地上14階・地下1階
- 耐震基準
- 新耐震基準適合・制震構造
- セキュリティ
- 機械警備(24時間監視)
- 駐車場設備
- 要確認
- 設備
- 屋上テラス(ルーフトップテラス)
GUNKAN東新宿 の募集区画 (総募集面積 15.15坪)
| 図面 | 階数 | 坪数 | 月額費用 | 坪単価 | 入居可能日 | |
|---|---|---|---|---|---|---|
![]() | 1階 | 3.15坪 | 200,000円 | 63,492円 | 即時 | 検討リスト お問い合わせ |
![]() | 1階 | 6.00坪 | 250,000円 | 41,667円 | 即時 | 検討リスト お問い合わせ |
![]() | 1階 | 3.00坪 | 150,000円 | 50,000円 | 即時 | 検討リスト お問い合わせ |
![]() | 1階 | 3.00坪 | 150,000円 | 50,000円 | 即時 | 検討リスト お問い合わせ |
※月額費用、坪単価 ともに共益費込・税別の価格です
ルーシッドスクエア新宿イーストビル(新宿区、大久保、東新宿、西武新宿)
- 所在地
- 東京都新宿区大久保1-3-21
- 最寄り駅
- 東新宿駅徒歩1分、大久保駅徒歩9分、西武新宿駅徒歩9分
- 竣工
- 1990年
- 規模
- 地上8階・地下1階
- 耐震基準
- 新耐震基準適合
- セキュリティ
- 機械警備(24時間監視)
- 駐車場設備
- 有(計39台収容)
- 設備
- 24時間(要ICカード)、 トイレ男女別
ルーシッドスクエア新宿イーストビル の募集区画 (総募集面積 96.77坪)
※月額費用、坪単価 ともに共益費込・税別の価格です
SIL新宿(新宿区、歌舞伎町、西武新宿、新宿西口)
- 所在地
- 東京都新宿区歌舞伎町2-46-3
- 最寄り駅
- 西武新宿駅徒歩1分、新宿西口駅徒歩5分、新大久保駅徒歩7分
- 竣工
- 2005年
- 規模
- 地上8階
- 耐震基準
- 新耐震基準適合
- セキュリティ
- 機械警備(24時間監視)
- 駐車場設備
- 有(敷地内4台)
- 設備
- トイレ男女別
SIL新宿 の募集区画 (総募集面積 82.56坪)
※月額費用、坪単価 ともに共益費込・税別の価格です
アルマビル(新宿区、北新宿、大久保、新大久保)
- 所在地
- 東京都新宿区北新宿1-4-1
- 最寄り駅
- 大久保駅徒歩5分、新大久保駅徒歩8分、西武新宿駅徒歩8分
- 竣工
- 1992年
- 規模
- 地上9階・地下1階
- 耐震基準
- 新耐震基準適合
- セキュリティ
- 機械警備(24時間監視)
- 駐車場設備
- 無
- 設備
- トイレ男女別
アルマビル の募集区画 (総募集面積 41.53坪)
※月額費用、坪単価 ともに共益費込・税別の価格です
プリオール三信ビル(新宿区、北新宿、大久保、西武新宿)
- 所在地
- 東京都新宿区北新宿1-1-20
- 最寄り駅
- 大久保駅徒歩3分、西武新宿駅徒歩3分、新大久保駅徒歩4分
- 竣工
- 1992年
- 規模
- 地上10階・地下1階
- 耐震基準
- 新耐震基準適合
- セキュリティ
- 共用部警備なし(簡易管理)
- 駐車場設備
- 要確認
プリオール三信ビル の募集区画 (総募集面積 21.73坪)
※月額費用、坪単価 ともに共益費込・税別の価格です
新宿ワイエムビル(新宿区、新宿、新宿三丁目、西武新宿)
- 所在地
- 東京都新宿区新宿3-35-2
- 最寄り駅
- 新宿駅徒歩1分、新宿三丁目駅徒歩3分、西武新宿駅徒歩7分
- 竣工
- 1968年
- 規模
- 地上5階・地下1階
- 駐車場設備
- 要確認
新宿ワイエムビル の募集区画 (総募集面積 10.00坪)
※月額費用、坪単価 ともに共益費込・税別の価格です
NEWNO・GS新宿(新宿区、新宿、西武新宿、新宿三丁目)
- 所在地
- 東京都新宿区新宿3-24-1
- 最寄り駅
- 新宿駅徒歩2分、西武新宿駅徒歩3分、新宿三丁目駅徒歩5分
- 竣工
- 2018年
- 規模
- 地上11階・地下2階
- 耐震基準
- 新耐震基準適合
- セキュリティ
- 機械警備・有人管理(24時間体制)
- 駐車場設備
- 有
- 設備
- トイレ男女別
NEWNO・GS新宿 の募集区画 (総募集面積 47.45坪)
※月額費用、坪単価 ともに共益費込・税別の価格です
エステック情報(新宿区、西新宿、新宿、都庁前)
- 所在地
- 東京都新宿区西新宿1-24-1
- 最寄り駅
- 新宿駅徒歩5分、都庁前駅徒歩3分、西武新宿駅徒歩10分
- 竣工
- 1992年
- 規模
- 地上28階・地下6階
- 耐震基準
- 新耐震基準適合
- セキュリティ
- 機械警備・有人管理(24時間体制)
- 駐車場設備
- 有(機械式262台)
- 設備
- 喫煙室、 貸会議室、 貨物EVあり、 省エネ・環境配慮、 トイレ男女別、 防災・BCP、 土日祝エントランス開放、 24時間(要ICカード)、 防災センター
エステック情報 の募集区画 (総募集面積 593.89坪)
| 図面 | 階数 | 坪数 | 月額費用 | 坪単価 | 入居可能日 | |
|---|---|---|---|---|---|---|
![]() | 20階 | 146.30坪 | お問い合わせください | 2026/10/1 | 検討リスト お問い合わせ | |
![]() | 27階 | 305.79坪 | お問い合わせください | 2026/10/1 | 検討リスト お問い合わせ | |
![]() | 6階 | 141.80坪 | お問い合わせください | 即時 | 検討リスト お問い合わせ |
※月額費用、坪単価 ともに共益費込・税別の価格です
菅野ビル(新宿区、西新宿、都庁前、新宿西口)
- 所在地
- 東京都新宿区西新宿6-2-16
- 最寄り駅
- 西新宿駅徒歩2分、都庁前駅徒歩5分、新宿西口駅徒歩6分
- 竣工
- 1995年
- 規模
- 地上9階・地下1階
- 耐震基準
- 新耐震基準適合
- セキュリティ
- 機械警備(24時間監視)
- 駐車場設備
- 無
- 設備
- トイレ男女別
菅野ビル の募集区画 (総募集面積 48.46坪)
※月額費用、坪単価 ともに共益費込・税別の価格です
カーメルⅡ(新宿区、西新宿、新宿、大久保)
- 所在地
- 東京都新宿区西新宿8-3-30
- 最寄り駅
- 西新宿駅徒歩4分、新宿駅徒歩13分、大久保駅徒歩8分
- 竣工
- 1991年
- 規模
- 地上6階
- 耐震基準
- 新耐震基準適合
- セキュリティ
- 機械警備(24時間監視)
- 駐車場設備
- 有
- 設備
- トイレ男女別
カーメルⅡ の募集区画 (総募集面積 13.89坪)
※月額費用、坪単価 ともに共益費込・税別の価格です
カメリアビル(新宿区、西新宿、都庁前、大久保)
- 所在地
- 東京都新宿区西新宿8-5-10
- 最寄り駅
- 西新宿駅徒歩1分、都庁前駅徒歩10分、大久保駅徒歩8分
- 竣工
- 1992年
- 規模
- 地上4階
- 耐震基準
- 新耐震基準適合
- セキュリティ
- 機械警備(24時間監視)
- 駐車場設備
- 無
- 設備
- トイレ男女別
カメリアビル の募集区画 (総募集面積 46.65坪)
※月額費用、坪単価 ともに共益費込・税別の価格です
豊ビル(新宿区、西新宿、新宿西口、新宿)
- 所在地
- 東京都新宿区西新宿7-2-7
- 最寄り駅
- 新宿西口駅徒歩4分、西新宿駅徒歩2分、新宿駅徒歩8分
- 竣工
- 1973年
- 規模
- 地上8階・地下1階
- セキュリティ
- 機械警備(24時間監視)
- 駐車場設備
- 無
豊ビル の募集区画 (総募集面積 22.66坪)
※月額費用、坪単価 ともに共益費込・税別の価格です
西新宿プライムスクエア(新宿区、西新宿、西武新宿、新宿西口)
- 所在地
- 東京都新宿区西新宿7-5-25
- 最寄り駅
- 西武新宿駅徒歩4分、新宿西口駅徒歩5分、新宿駅徒歩7分
- 竣工
- 1988年
- 規模
- 地上16階・地下2階
- 耐震基準
- 新耐震基準適合
- セキュリティ
- 機械警備・有人管理(24時間体制)
- 駐車場設備
- 有(二段式駐車場(56台)・地下平面式駐車場(11台) カーリフト:サイズ制限(全長4.70m、全幅1.75m、全高1.55m、重量1.5t以内))
- 設備
- 24時間(要ICカード)
西新宿プライムスクエア の募集区画 (総募集面積 439.40坪)
| 図面 | 階数 | 坪数 | 月額費用 | 坪単価 | 入居可能日 | |
|---|---|---|---|---|---|---|
![]() | 15階 | 84.18坪 | お問い合わせください | 2026/6/1 | 検討リスト お問い合わせ | |
![]() | 13階 | 135.52坪 | お問い合わせください | 2026/4/1 | 検討リスト お問い合わせ | |
![]() | 13階 | 219.70坪 | お問い合わせください | 2026/4/1 | 検討リスト お問い合わせ |
※月額費用、坪単価 ともに共益費込・税別の価格です
第一守徳ビル(新宿区、西新宿、大久保、新宿西口)
- 所在地
- 東京都新宿区西新宿7-7-27
- 最寄り駅
- 大久保駅徒歩4分、新宿西口駅徒歩4分、新宿駅徒歩7分
- 竣工
- 1973年
- 規模
- 地上8階
- セキュリティ
- 機械警備(24時間監視)
- 駐車場設備
- 要確認
第一守徳ビル の募集区画 (総募集面積 14.97坪)
※月額費用、坪単価 ともに共益費込・税別の価格です
寿ビル(新宿区、西新宿、新宿西口、西武新宿)
- 所在地
- 東京都新宿区西新宿7-9-6
- 最寄り駅
- 新宿西口駅徒歩2分、西武新宿駅徒歩6分、西新宿駅徒歩8分
- 竣工
- 1970年
- 規模
- 地上6階・地下1階
- セキュリティ
- 共用部警備なし(簡易管理)
- 駐車場設備
- 無
寿ビル の募集区画 (総募集面積 28.66坪)
※月額費用、坪単価 ともに共益費込・税別の価格です
新宿須田ビル(新宿区、西新宿、新宿、西武新宿)
- 所在地
- 東京都新宿区西新宿1-18-6
- 最寄り駅
- 新宿駅徒歩2分、西武新宿駅徒歩5分、新宿西口駅徒歩1分
- 竣工
- 1972年
- 規模
- 地上10階・地下1階
- セキュリティ
- 機械警備(24時間監視)
- 駐車場設備
- 無
新宿須田ビル の募集区画 (総募集面積 23.77坪)
※月額費用、坪単価 ともに共益費込・税別の価格です
新宿サンエービル(新宿区、西新宿、新宿、新宿西口)
- 所在地
- 東京都新宿区西新宿1-22-2
- 最寄り駅
- 新宿駅徒歩1分、新宿西口駅徒歩6分、西武新宿駅徒歩14分
- 竣工
- 1979年
- 規模
- 地上15階・地下1階
- セキュリティ
- 機械警備・有人管理(24時間体制)
- 駐車場設備
- 要確認
- 設備
- トイレ男女別
新宿サンエービル の募集区画 (総募集面積 296.43坪)
| 図面 | 階数 | 坪数 | 月額費用 | 坪単価 | 入居可能日 | |
|---|---|---|---|---|---|---|
![]() | 13階 | 18.72坪 | お問い合わせください | 2026/8/上 | 検討リスト お問い合わせ | |
![]() | 15階 | 28.64坪 | お問い合わせください | 2026/7/下 | 検討リスト お問い合わせ | |
![]() | 15階 | 18.74坪 | お問い合わせください | 2026/7/下 | 検討リスト お問い合わせ | |
![]() | 15階 | 135.13坪 | お問い合わせください | 2026/7/下 | 検討リスト お問い合わせ | |
![]() | 13階 | 66.41坪 | お問い合わせください | 2026/6/下 | 検討リスト お問い合わせ | |
![]() | 13階 | 28.79坪 | お問い合わせください | 2026/7/上 | 検討リスト お問い合わせ |
※月額費用、坪単価 ともに共益費込・税別の価格です
松岡セントラルビル(新宿区、西新宿、新宿、新宿西口)
- 所在地
- 東京都新宿区西新宿1-7-1
- 最寄り駅
- 新宿駅徒歩2分、新宿西口駅徒歩4分、西武新宿駅徒歩8分
- 竣工
- 1969年
- 規模
- 地上9階・地下4階
- 耐震基準
- 耐震補強済み(新耐震相当)
- セキュリティ
- 有人管理(警備員常駐)
- 駐車場設備
- 有(地下駐車場)
松岡セントラルビル の募集区画 (総募集面積 63.43坪)
| 図面 | 階数 | 坪数 | 月額費用 | 坪単価 | 入居可能日 | |
|---|---|---|---|---|---|---|
![]() | 3階 | 27.90坪 | 892,800円 | 32,000円 | 即時 | 検討リスト お問い合わせ |
![]() | 3階 | 35.53坪 | 1,065,900円 | 30,000円 | 即時 | 検討リスト お問い合わせ |
※月額費用、坪単価 ともに共益費込・税別の価格です
新宿ダイカンプラザビズネス清田ビル(新宿区、西新宿、新宿西口、西武新宿)
- 所在地
- 東京都新宿区西新宿7-9-15
- 最寄り駅
- 新宿西口駅徒歩1分、西武新宿駅徒歩2分、新宿駅徒歩5分
- 竣工
- 1986年
- 規模
- 地上11階
- 耐震基準
- 新耐震基準適合
- セキュリティ
- 共用部警備なし(簡易管理)
- 駐車場設備
- 要確認
新宿ダイカンプラザビズネス清田ビル の募集区画 (総募集面積 13.53坪)
※月額費用、坪単価 ともに共益費込・税別の価格です
西新宿三晃ビル(新宿区、西新宿、新宿西口、西武新宿)
- 所在地
- 東京都新宿区西新宿7-22-35
- 最寄り駅
- 新宿西口駅徒歩6分、西新宿駅徒歩7分、西武新宿駅徒歩8分
- 竣工
- 1987年
- 規模
- 地上4階・地下1階
- 耐震基準
- 新耐震基準適合
- セキュリティ
- 機械警備(24時間監視)
- 駐車場設備
- 有
- 設備
- トイレ男女別
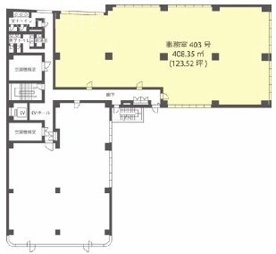
西新宿三晃ビル の募集区画 (総募集面積 123.52坪)
※月額費用、坪単価 ともに共益費込・税別の価格です
MI西新宿(新宿区、西新宿、西武新宿、新宿)
- 所在地
- 東京都新宿区西新宿8-4-14
- 最寄り駅
- 西武新宿駅徒歩2分、新宿駅徒歩10分
- 竣工
- 1981年
- 規模
- 地上4階
- 駐車場設備
- 要確認
MI西新宿 の募集区画 (総募集面積 20.58坪)
| 図面 | 階数 | 坪数 | 月額費用 | 坪単価 | 入居可能日 | |
|---|---|---|---|---|---|---|
![]() | 2階 | 10.29坪 | 145,000円 | 14,091円 | 即時 | 検討リスト お問い合わせ |
![]() | 1階 | 10.29坪 | 150,455円 | 14,621円 | 2026/4/上 | 検討リスト お問い合わせ |
※月額費用、坪単価 ともに共益費込・税別の価格です
愛美堂(あいみどう)ビル(新宿区、西新宿、新宿西口、新宿)
- 所在地
- 東京都新宿区西新宿7-20-2
- 最寄り駅
- 西新宿駅徒歩3分、新宿西口駅徒歩5分、新宿駅徒歩7分
- 竣工
- 1989年
- 規模
- 地上9階・地下2階
- 耐震基準
- 新耐震基準適合
- セキュリティ
- 機械警備(24時間監視)
- 駐車場設備
- 要確認
- 設備
- 24時間(要ICカード)
愛美堂(あいみどう)ビル の募集区画 (総募集面積 5.91坪)
※月額費用、坪単価 ともに共益費込・税別の価格です
第一山本ビル(新宿区、西新宿、西武新宿、新宿)
- 所在地
- 東京都新宿区西新宿7-7-28
- 最寄り駅
- 西武新宿駅徒歩3分、新宿駅徒歩7分、新宿西口駅徒歩7分
- 竣工
- 1998年
- 規模
- 地上7階
- 耐震基準
- 新耐震基準適合
- 駐車場設備
- 要確認
第一山本ビル の募集区画 (総募集面積 19.55坪)
※月額費用、坪単価 ともに共益費込・税別の価格です
西新宿ビジネスキューブ(新宿区、西新宿、西武新宿、新宿西口)
- 所在地
- 東京都新宿区西新宿7-5-2
- 最寄り駅
- 西武新宿駅徒歩5分、新宿西口駅徒歩4分、新宿駅徒歩6分
- 竣工
- 2022年
- 規模
- 地上8階
- 耐震基準
- 高耐震構造(新耐震基準適合)
- セキュリティ
- 機械警備(24時間監視)
- 駐車場設備
- 有(4台完備)
- 設備
- 非接触ICカード、 非常用発電機、 屋上テラス(ルーフトップテラス)
西新宿ビジネスキューブ の募集区画 (総募集面積 105.18坪)
※月額費用、坪単価 ともに共益費込・税別の価格です
Polar 西新宿(新宿区、西新宿、新宿西口、西武新宿)
- 所在地
- 東京都新宿区西新宿7-22-33
- 最寄り駅
- 西新宿駅徒歩5分、新宿西口駅徒歩6分、西武新宿駅徒歩7分
- 竣工
- 1993年
- 規模
- 地上5階・地下1階
- 耐震基準
- 新耐震基準適合
- 駐車場設備
- 無
- 設備
- 24時間(要ICカード)、 リニューアル済み、 トイレ男女別、 土日祝エントランス開放
Polar 西新宿 の募集区画 (総募集面積 57.56坪)
※月額費用、坪単価 ともに共益費込・税別の価格です
西新宿KFビル(新宿区、西新宿、都庁前、西武新宿)
- 所在地
- 東京都新宿区西新宿8-14-24
- 最寄り駅
- 西新宿駅徒歩4分、都庁前駅徒歩12分、西武新宿駅徒歩14分
- 竣工
- 1993年
- 規模
- 地上8階・地下1階
- 耐震基準
- 新耐震基準適合
- セキュリティ
- 有人管理(警備員常駐)
- 駐車場設備
- 有(平置き4台、機械式40台)
- 設備
- 非接触ICカード、 リフレッシュコーナー、 喫煙室、 トイレ男女別
西新宿KFビル の募集区画 (総募集面積 29.62坪)
※月額費用、坪単価 ともに共益費込・税別の価格です
ニッカビル(新宿区、西新宿、新宿西口、新宿)
- 所在地
- 東京都新宿区西新宿7-9-7
- 最寄り駅
- 新宿西口駅徒歩3分、新宿駅徒歩6分、西武新宿駅徒歩6分
- 竣工
- 1970年
- 規模
- 地上7階
- セキュリティ
- 共用部警備なし(簡易管理)
- 駐車場設備
- 無
- 設備
- トイレ男女別
ニッカビル の募集区画 (総募集面積 43.04坪)
※月額費用、坪単価 ともに共益費込・税別の価格です
西新宿大京ビル(新宿区、西新宿、西武新宿、新宿西口)
- 所在地
- 東京都新宿区西新宿7-21-3
- 最寄り駅
- 西新宿駅徒歩2分、西武新宿駅徒歩8分、新宿西口駅徒歩8分
- 竣工
- 1994年
- 規模
- 地上10階・地下2階
- 耐震基準
- 新耐震基準適合
- セキュリティ
- 機械警備・有人管理(24時間体制)
- 駐車場設備
- 有
西新宿大京ビル の募集区画 (総募集面積 393.50坪)
※月額費用、坪単価 ともに共益費込・税別の価格です
3Sビル(新宿区、西新宿、新宿、新宿西口)
- 所在地
- 東京都新宿区西新宿7-9-12
- 最寄り駅
- 西新宿駅徒歩1分、新宿駅徒歩5分、新宿西口駅徒歩2分
- 竣工
- 2025年
- 規模
- 地上7階
- 耐震基準
- 新耐震基準適合
- セキュリティ
- 機械警備(24時間監視)
- 駐車場設備
- 無
3Sビル の募集区画 (総募集面積 15.47坪)
※月額費用、坪単価 ともに共益費込・税別の価格です
ニューセントラルビル(新宿区、西新宿、新宿、新宿西口)
- 所在地
- 東京都新宿区西新宿1-5-12
- 最寄り駅
- 新宿駅徒歩3分、新宿西口駅徒歩2分、西武新宿駅徒歩7分
- 竣工
- 1972年
- 規模
- 地上10階・地下1階
- セキュリティ
- 機械警備・有人管理(24時間体制)
- 駐車場設備
- 無
- 設備
- トイレ男女別
ニューセントラルビル の募集区画 (総募集面積 15.61坪)
※月額費用、坪単価 ともに共益費込・税別の価格です
ストーク新宿井岡ビル(新宿区、西新宿、西武新宿、新宿西口)
- 所在地
- 東京都新宿区西新宿7-4-6
- 最寄り駅
- 西武新宿駅徒歩5分、新宿西口駅徒歩5分、新宿駅徒歩6分
- 竣工
- 1983年
- 規模
- 地上9階・地下1階
- 耐震基準
- 新耐震基準適合
- セキュリティ
- 共用部警備なし(簡易管理)
- 駐車場設備
- 要確認
ストーク新宿井岡ビル の募集区画 (総募集面積 18.14坪)
※月額費用、坪単価 ともに共益費込・税別の価格です
みなみビル(新宿区、百人町、新大久保、大久保)
- 所在地
- 東京都新宿区百人町1-23-26
- 最寄り駅
- 新大久保駅徒歩6分、大久保駅徒歩4分、西武新宿駅徒歩5分
- 竣工
- 1967年
- 規模
- 地上4階・地下1階
- セキュリティ
- 機械警備(24時間監視)
- 駐車場設備
- 無
- 設備
- トイレ男女別
みなみビル の募集区画 (総募集面積 26.78坪)
※月額費用、坪単価 ともに共益費込・税別の価格です
【エリアのオフィス市況】
西武新宿エリアは、歌舞伎町側の活気と、西新宿・大久保側のオフィス・住宅機能が融合した非常にエネルギッシュなマーケットです。物件はグレードの高い大型ビルから、スタートアップ向けの安価な雑居ビル、デザイナーズオフィスまで膨大なストックを誇ります。24時間稼働する企業の拠点や、多様な文化が混ざり合う場所でのイノベーションを目指す企業にとって、これ以上ない刺激的な環境です。
【交通アクセスと採用メリット】
JR・地下鉄各線の新宿駅も徒歩圏内。日本全国から、そして世界から人材が集まる場所です。圧倒的な飲食店数、最新のトレンド、アフター5の充実度は、若手人材の採用において絶対的な強みとなります。この「世界の中心」に拠点を置くことは、企業の勢いと野心を象徴します。






























































































































































































































































































































































































