ONEST西五反田スクエア(品川区、西五反田、大崎広小路、五反田) の賃貸オフィス情報

- 所在地
- 東京都品川区西五反田7-24-5
- 最寄り駅
- 大崎広小路駅徒歩6分、五反田駅徒歩8分、不動前駅徒歩8分
- 竣工
- 1988年
- リニューアル済み
- 1階テナント専用ラウンジ設置済(2020年)、2019年に共用部リニューアル済
- 規模
- 地上8階・地下1階
- 構造
- SRC造(鉄骨鉄筋コンクリート造)
- 耐震基準
- 新耐震基準適合
- セキュリティ
- 機械警備(24時間監視)
- エントランス
- 平日開放
- エレベーター総数
- 2基
- 駐車場設備
- 有((機械式))
- 設備
- 共用ラウンジ(テナント専用ラウンジ)
■五反田駅徒歩8分、大崎広小路駅徒歩6分、複数路線利用可能な好立地
■1988年竣工の地上8階建て、2019年共用部フルリニューアル済み
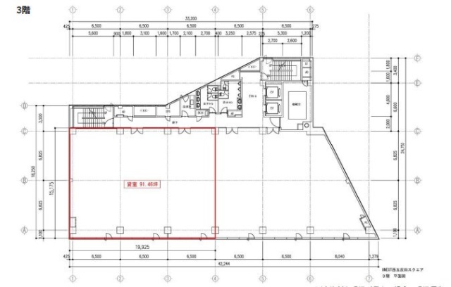
■基準階91.46坪、天井高2,550mm、OAフロア50mmの充実スペック
■個別空調・機械警備・LED照明完備で快適かつ安心のビル運営
■テナント専用ラウンジ設置、効率的なワークスタイルをサポート
■1988年竣工の地上8階建て、2019年共用部フルリニューアル済み
■基準階91.46坪、天井高2,550mm、OAフロア50mmの充実スペック
■個別空調・機械警備・LED照明完備で快適かつ安心のビル運営
■テナント専用ラウンジ設置、効率的なワークスタイルをサポート
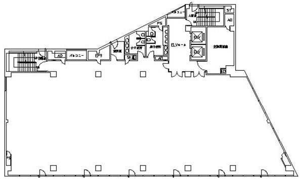
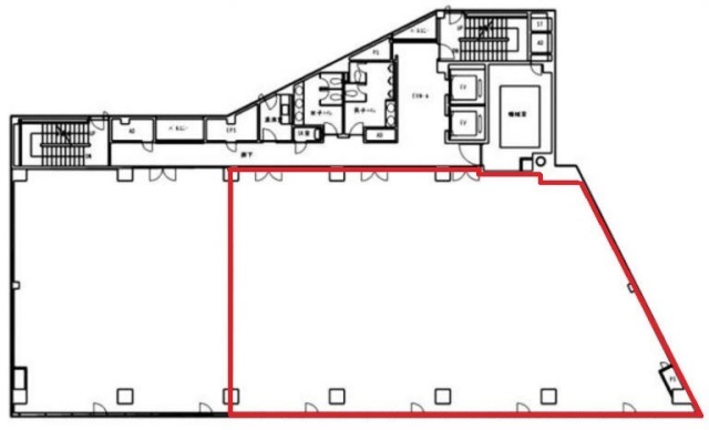
ONEST西五反田スクエア の募集区画 (総募集面積 91.46坪)
※月額費用、坪単価 ともに共益費込・税別の価格です
建物に関するよくある質問と回答
Q1: ONEST西五反田スクエアへのアクセスを教えてください。
A: JR線・都営浅草線・東急池上線「五反田」駅から徒歩8分、東急池上線「大崎広小路」駅から徒歩6分の立地です。複数路線が利用可能で、都心各方面へのアクセスが良好です。第二京浜(国道1号)に面しているため、視認性が高く来訪者にもわかりやすい立地となっています。
Q2: どのような建物ですか?
A: 1988年1月竣工のSRC造・地上8階地下1階建てビルです。2019年3月に基準階共用部を全面リニューアルし、エントランスや廊下が現代的で快適な空間に生まれ変わりました。延床面積2,104.00坪、基準階面積約91.46坪の中規模オフィスビルです。設計・施工は久米建築事務所が担当しています。
Q3: 主なスペックを教えてください。
A: 天井高2,550mm、OAフロア50mm、床荷重300kg/㎡の充実したスペックです。個別空調を採用しているため、執務時間や使用エリアに応じた効率的な温度管理が可能です。LED照明を完備し、省エネルギー性にも配慮しています。エレベーターは2基設置されています。
Q4: セキュリティ体制はどうなっていますか?
A: 機械警備システムを導入しており、安心感の高いセキュリティ環境を提供しています。夜間・休日も遠隔監視により建物の安全が保たれています。エントランスや共用部の管理も適切に行われており、安全性に配慮した運用がなされています。
Q5: 耐震性能について教えてください。
A: 1988年竣工で新耐震基準に適合した建物です。SRC(鉄骨鉄筋コンクリート)造の堅牢な構造により、耐久性に優れた設計となっています。具体的な耐震等級や制震・免震装置の有無については、詳細を別途ご案内いたします。
Q6: 共用施設や設備の特徴はありますか?
A: 2020年10月に1階へテナント専用ラウンジを新設しました。リフレッシュスペースや簡易的な打ち合わせ、ちょっとした作業にもご活用いただける便利な空間です。機械式駐車場を完備しており、車通勤にも対応可能です。2019年のリニューアルにより、共用部も清潔で快適な環境が整っています。
Q7: 周辺環境の特徴を教えてください。
A: 五反田駅周辺はオフィスと商業施設が集積するビジネスエリアです。飲食店やコンビニが充実しており、ランチや日常の買い物に便利です。大崎広小路駅方面は落ち着いた雰囲気で、昔ながらの商店街とオフィス街が融合した環境となっています。第二京浜沿いのため交通アクセスも良好です。
A: JR線・都営浅草線・東急池上線「五反田」駅から徒歩8分、東急池上線「大崎広小路」駅から徒歩6分の立地です。複数路線が利用可能で、都心各方面へのアクセスが良好です。第二京浜(国道1号)に面しているため、視認性が高く来訪者にもわかりやすい立地となっています。
Q2: どのような建物ですか?
A: 1988年1月竣工のSRC造・地上8階地下1階建てビルです。2019年3月に基準階共用部を全面リニューアルし、エントランスや廊下が現代的で快適な空間に生まれ変わりました。延床面積2,104.00坪、基準階面積約91.46坪の中規模オフィスビルです。設計・施工は久米建築事務所が担当しています。
Q3: 主なスペックを教えてください。
A: 天井高2,550mm、OAフロア50mm、床荷重300kg/㎡の充実したスペックです。個別空調を採用しているため、執務時間や使用エリアに応じた効率的な温度管理が可能です。LED照明を完備し、省エネルギー性にも配慮しています。エレベーターは2基設置されています。
Q4: セキュリティ体制はどうなっていますか?
A: 機械警備システムを導入しており、安心感の高いセキュリティ環境を提供しています。夜間・休日も遠隔監視により建物の安全が保たれています。エントランスや共用部の管理も適切に行われており、安全性に配慮した運用がなされています。
Q5: 耐震性能について教えてください。
A: 1988年竣工で新耐震基準に適合した建物です。SRC(鉄骨鉄筋コンクリート)造の堅牢な構造により、耐久性に優れた設計となっています。具体的な耐震等級や制震・免震装置の有無については、詳細を別途ご案内いたします。
Q6: 共用施設や設備の特徴はありますか?
A: 2020年10月に1階へテナント専用ラウンジを新設しました。リフレッシュスペースや簡易的な打ち合わせ、ちょっとした作業にもご活用いただける便利な空間です。機械式駐車場を完備しており、車通勤にも対応可能です。2019年のリニューアルにより、共用部も清潔で快適な環境が整っています。
Q7: 周辺環境の特徴を教えてください。
A: 五反田駅周辺はオフィスと商業施設が集積するビジネスエリアです。飲食店やコンビニが充実しており、ランチや日常の買い物に便利です。大崎広小路駅方面は落ち着いた雰囲気で、昔ながらの商店街とオフィス街が融合した環境となっています。第二京浜沿いのため交通アクセスも良好です。
地図
東京都品川区西五反田7-24-5 地図をクリックして拡大できます
ONEST西五反田スクエア の外観イメージ
第二京浜(国道1号)に面した8階建ての端正な外観。幹線道路沿いの立地による高い視認性が特徴です。1988年竣工のSRC造建築で、堅牢な構造と安定感のある佇まいを持ちます。2019年のリニューアルによりエントランス周りも整備され、清潔感のある印象に。機械式駐車場を備え、ビジネス利用に必要な機能を効率的に配置した実用性の高い建物です。









ONEST西五反田スクエア の周辺イメージ
五反田駅周辺はオフィスと商業施設が集積するビジネスエリアで、飲食店やコンビニが充実しています。ランチや日常の買い物に困りません。大崎広小路駅方面は落ち着いた雰囲気で、昔ながらの商店街とオフィス街が融合。第二京浜沿いの立地により、都心各方面への車でのアクセスも良好な利便性の高い環境です。
ONEST西五反田スクエア の募集終了区画
| 図面 | 階数 | 坪数 | 月額費用 | 坪単価 | 入居可能日 | |
|---|---|---|---|---|---|---|
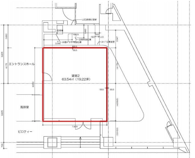
![]() | 1階 | 19.22坪 | お問い合わせください | 募集終了 | 検討リスト | |
![]() | 1階 | 49.80坪 | お問い合わせください | 募集終了 | 検討リスト | |
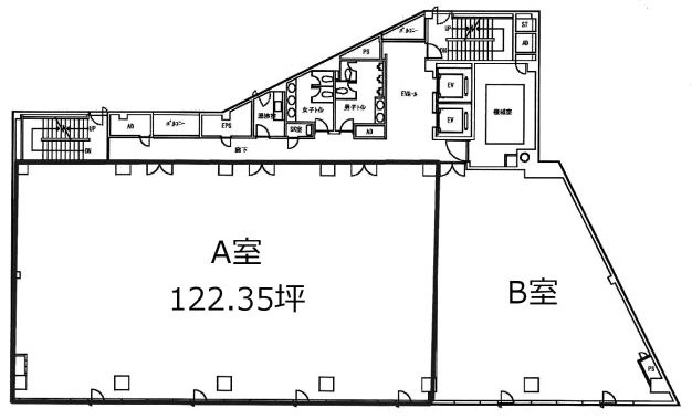
![]() | 2階 | 122.34坪 | お問い合わせください | 募集終了 | 検討リスト | |
![]() | 2階 | 51.41坪 | お問い合わせください | 募集終了 | 検討リスト | |
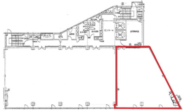
![]() | 3階 | 82.41坪 | お問い合わせください | 募集終了 | 検討リスト | |
![]() | 3階 | 173.87坪 | お問い合わせください | 募集終了 | 検討リスト | |
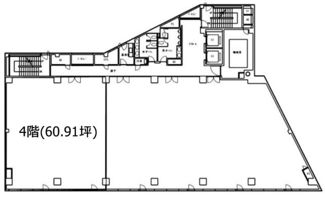
![]() | 4階 | 173.87坪 | お問い合わせください | 募集終了 | 検討リスト | |
![]() | 4階 | 112.95坪 | お問い合わせください | 募集終了 | 検討リスト | |
![]() | 4階 | 60.92坪 | お問い合わせください | 募集終了 | 検討リスト | |
![]() | 5階 | 173.87坪 | お問い合わせください | 募集終了 | 検討リスト | |
![]() | 6階 | 173.94坪 | お問い合わせください | 募集終了 | 検討リスト | |
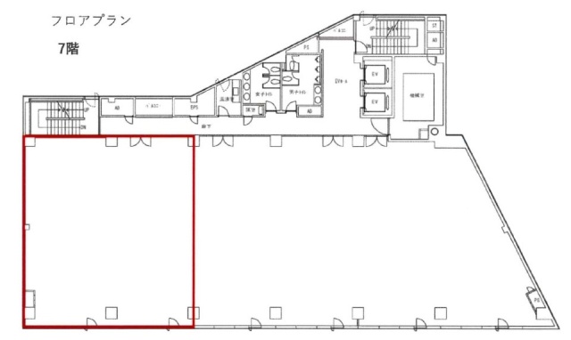
![]() | 7階 | 112.83坪 | お問い合わせください | 募集終了 | 検討リスト | |
![]() | 7階 | 60.92坪 | お問い合わせください | 募集終了 | 検討リスト |
近くの物件紹介
品川区のエリア
近くの駅
| 取扱態様 | 仲介 |
|---|---|
| 取扱会社 | 株式会社アドマイアー 東京都中央区日本橋3-2-3ユニバース第1ビル2F TEL. 03-5204-1031 宅地建物取引業免許 東京都知事(3)第94663号 マンション管理業免許 国土交通大臣(2)第034224号 賃貸住宅管理業免許 国土交通大臣(01)第005938号 |





































