赤坂パークビル(港区、赤坂、永田町、赤坂見附) の賃貸オフィス情報

- 所在地
- 東京都港区赤坂5-2-20
- 最寄り駅
- 永田町駅徒歩17分、赤坂駅徒歩5分、赤坂見附駅徒歩10分
- 竣工
- 1993年
- 規模
- 地上30階・地下2階
- 構造
- S造(鉄骨造)
- 耐震基準
- 新耐震基準適合
- セキュリティ
- 機械警備・有人管理(24時間体制)
- エントランス
- 平日開放
- エレベーター総数
- 18基
- 駐車場設備
- 有
- 設備
- 貸会議室、 省エネ・環境配慮
■港区赤坂のランドマーク。地上30階建の圧倒的存在感と豊かな緑に囲まれた広大な敷地。
■1フロア600坪超のメガプレート。効率的なレイアウトを実現する開放的な無柱空間。
■最高峰のBCP・セキュリティ。24時間有人管理と充実の予備電源で事業継続を支援。
■VIP接遇に最適な設備。専用の車寄せや単独EV対応が、エグゼクティブの来訪をサポート。
赤坂パークビル の募集区画 (総募集面積 0.00坪)
現在募集はありません。
建物に関するよくある質問と回答
A1. 東京メトロ千代田線赤坂駅から徒歩5分、銀座線・丸ノ内線赤坂見附駅からも徒歩10分と、主要3路線が利用可能です。赤坂サカス等の商業施設も至近にあり、ビジネスと利便性が高次元で融合したロケーションに位置しています。
Q2. 赤坂パークビルのVIP対応やセキュリティについて教えてください。
A2. 24時間有人管理体制による厳格な警備に加え、VIP専用の車寄せや単独エレベーターの運用が可能です。プライバシーを重視する企業や、海外からのゲスト、役員クラスの入出館が多い法人に適した機能を備えています。
Q3. 赤坂パークビルのオフィススペック詳細を教えてください。
A3. 基準階の天井高は2,700mm(OAフロア設置後)を確保しており、100mmのOAフロアを完備しています。床荷重は標準300kg/㎡ですが、HDZ(重荷重対応)ゾーンでは500kg/㎡まで対応しており、強固なビジネスインフラを構築可能です。
地図
東京都港区赤坂5-2-20 地図をクリックして拡大できます
赤坂パークビル の外観イメージ
1993年7月に竣工した地上30階・地下2階建ての超高層ビルで、鉄骨造および一部鉄骨鉄筋コンクリート造を採用しています。三菱地所が設計監理を手掛けた外観は、赤坂の丘の上にそびえる重厚感あふれるフォルムが特徴です。約14,000㎡もの広大な敷地を活かした贅沢なアプローチと豊かな植栽が、インテリジェント・ビルとしての先進性と品格を際立たせています。










赤坂パークビル の周辺イメージ
当ビルは港区赤坂五丁目の高台に位置し、赤坂サカスやTBS放送センターが至近の活気あるエリアにありながら、敷地内には落ち着いた緑が広がっています。ビル内には貸会議室やTKP、多彩なショップ&レストランが充実。周辺は大使館やホテルが点在する国際的なビジネスゾーンであり、国内外の拠点として最適な環境が整っています。



赤坂パークビル のアクセス・ロケーション
赤坂・赤坂見附エリアの主要動線を掌握する、港区屈指のビジネス拠点です。
■ 利用可能路線 千代田線「赤坂駅」徒歩5分 銀座線、丸ノ内線「赤坂見附駅」徒歩10分 銀座線、南北線「溜池山王駅」徒歩圏内
■ ロケーションの特性: 港区赤坂の中心地に位置し、千代田線を利用して大手町や表参道方面へ、銀座線・丸ノ内線を利用して東京・銀座・新宿方面へダイレクトにアクセスできます。296台収容のガレージを完備しているため、都心環状線を利用した車での移動も極めてスムーズな戦略的拠点です。
赤坂パークビル の主な入居テナント
赤坂パークビル の募集終了区画
| 図面 | 階数 | 坪数 | 月額費用 | 坪単価 | 入居可能日 | |
|---|---|---|---|---|---|---|
![]() | 1階 | 81.84坪 | お問い合わせください | 募集終了 | 検討リスト | |
![]() | 1階 | 70.21坪 | お問い合わせください | 募集終了 | 検討リスト | |
![]() | 1階 | 67.43坪 | お問い合わせください | 募集終了 | 検討リスト | |
![]() | 2階 | 18.45坪 | お問い合わせください | 募集終了 | 検討リスト | |
![]() | 3階 | 132.47坪 | お問い合わせください | 募集終了 | 検討リスト | |
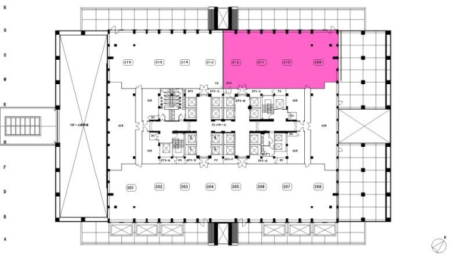
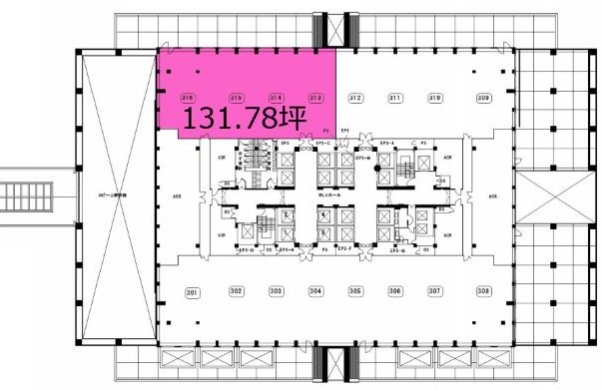
![]() | 3階 | 131.78坪 | お問い合わせください | 募集終了 | 検討リスト | |
![]() | 7階 | 308.44坪 | お問い合わせください | 募集終了 | 検討リスト | |
![]() | 8階 | 616.87坪 | お問い合わせください | 募集終了 | 検討リスト | |
![]() | 10階 | 616.87坪 | お問い合わせください | 募集終了 | 検討リスト | |
![]() | 11階 | 326.83坪 | お問い合わせください | 募集終了 | 検討リスト | |
![]() | 11階 | 173.09坪 | お問い合わせください | 募集終了 | 検討リスト | |
![]() | 11階 | 130.99坪 | お問い合わせください | 募集終了 | 検討リスト | |
![]() | 11階 | 308.44坪 | お問い合わせください | 募集終了 | 検討リスト | |
![]() | 13階 | 620.57坪 | お問い合わせください | 募集終了 | 検討リスト | |
![]() | 15階 | 301.66坪 | お問い合わせください | 募集終了 | 検討リスト | |
![]() | 16階 | 652.17坪 | お問い合わせください | 募集終了 | 検討リスト | |
![]() | 18階 | 326.83坪 | お問い合わせください | 募集終了 | 検討リスト | |
![]() | 19階 | 188.54坪 | お問い合わせください | 募集終了 | 検討リスト | |
![]() | 19階 | 177.45坪 | お問い合わせください | 募集終了 | 検討リスト | |
![]() | 23階 | 40.50坪 | お問い合わせください | 募集終了 | 検討リスト | |
![]() | 23階 | 54.58坪 | お問い合わせください | 募集終了 | 検討リスト |
赤坂パークビル が選ばれる理由
■ 圧倒的な「事業継続性」と「BCP性能」
24時間有人管理体制と充実のBCP電源を備え、万が一の災害時にも止まらないビジネス環境を提供。企業の信頼性をハード面から強力に支えます。
■ エグゼクティブを満足させる「VIPホスピタリティ」
専用の車寄せや単独EVの運用など、ハイグレードビルならではの接遇機能を完備。来客の多いグローバル企業や士業法人のステータスを向上させます。
■ 「広大な敷地」と「充実の付帯施設」が生む生産性
1.4ヘクタールに及ぶ敷地のゆとりと、ビル内の貸会議室・飲食店等の充実したアメニティが、従業員のエンゲージメントと業務効率を最大化します。
近くの物件紹介
港区のエリア
近くの駅
| 取扱態様 | 仲介 |
|---|---|
| 取扱会社 | 株式会社アドマイアー 東京都中央区日本橋3-2-3ユニバース第1ビル2F TEL. 03-5204-1031 宅地建物取引業免許 東京都知事(3)第94663号 マンション管理業免許 国土交通大臣(2)第034224号 賃貸住宅管理業免許 国土交通大臣(01)第005938号 |


































