エステック情報(新宿区、西新宿、新宿、新宿西口) の賃貸オフィス情報

エステック情報 外観
所在地
東京都新宿区西新宿1-24-1
最寄り駅
新宿駅徒歩5分、新宿西口駅徒歩5分、西武新宿駅徒歩10分
竣工
1992年
規模
地上28階・地下6階
構造
S造(鉄骨造)
耐震基準
新耐震基準適合
セキュリティ
機械警備・有人管理(24時間体制)
エントランス
毎日開放(平日・土7:00-22:00 日8:00-22:00)
エレベーター総数
12基
駐車場設備
有(機械式262台)
設備
喫煙室
■ 新宿駅から徒歩5分、地下道経由で直結しているため、猛暑や降雨の影響を受けずに快適な通勤・来客対応が可能です。

■ 1フロア約306坪の無柱空間はレイアウト効率が高く、部署間の連携を重視した現代的なワークプレイス構築に適しています。

■ コンセント容量は75VA/㎡と都心ビルでもトップクラスのスペックを誇り、高負荷なIT機器の導入にも余裕を持って対応できます。

■ ビル内に貸会議室が設置されており、自社内に設ける会議スペースを最小限に抑えることで、効率的な床利用を実現します。

■ 建物安全度判定サポートシステムを導入済みで、災害時にも建物の健全性を迅速に把握できる高いBCP性能を備えています。

エステック情報 の募集区画 (総募集面積 593.89坪)

図面 階数 坪数 月額費用 坪単価 入居可能日
エステック情報6F 間取り図
6階141.80坪お問い合わせください即時
検討リスト
お問い合わせ
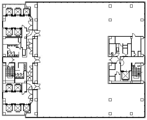
エステック情報20F 間取り図
20階146.30坪お問い合わせください2026/10/1
検討リスト
お問い合わせ
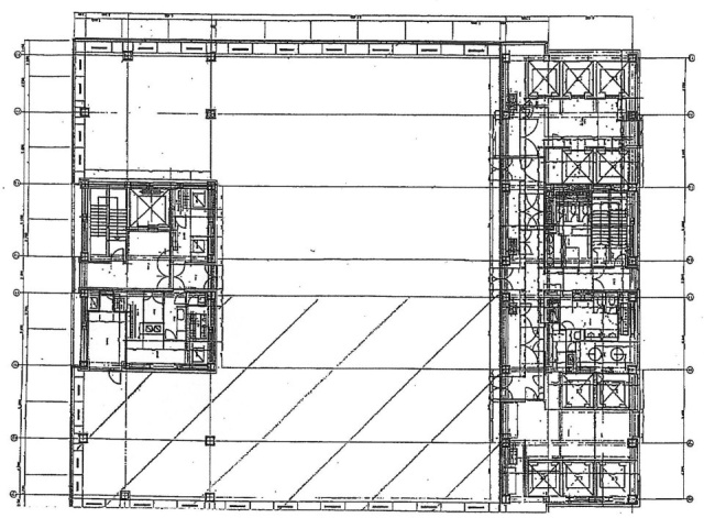
エステック情報27F 間取り図
27階305.79坪お問い合わせください2026/10/1
検討リスト
お問い合わせ

※月額費用、坪単価 ともに共益費込・税別の価格です

建物に関するよくある質問と回答

Q: 新宿駅からのアクセス方法を教えてください。

A: JR線・京王線・小田急線・東京メトロ丸ノ内線新宿駅から徒歩5分です。地下道で直結しているため、天候を気にせずアクセスできます。

Q: 建物の規模と構造について教えてください。

A: 地上29階・地下6階建ての鉄骨造です。清水建設施工による堅牢な高層オフィスビルです。

Q: 室内のOA環境や電気容量はどうなっていますか。

A: OA床は70mm、コンセント容量は75VA/㎡と非常に潤沢です。サーバーやIT機器の多い企業様でも安心してお使いいただけます。

Q: 空調の仕様と利用時間を教えてください。

A: ゾーン毎の個別空調を採用しています。時間外の利用については事前の申請により対応可能です。

Q: 駐車場はありますか。

A: 敷地内に機械式262台分の収容力があります。大型ビルならではの台数が確保されていますが、空き状況は都度確認が必要です。

Q: ビル内の共用施設にはどのようなものがありますか。

A: 貸会議室が完備されているほか、専用の喫煙室も設けられており、分煙環境が整っています。

Q: 地震に対する安全性はどうですか。

A: 新耐震基準に適合しており、建物安全度判定サポートシステムを導入しています。災害時の健全性を速やかに確認できる体制です。

Q: 床耐荷重について詳細を教えてください。

A: 基準は300kg/㎡ですが、重機や金庫の設置に対応したヘビーデューティーゾーン(500kg/㎡)も設けられています。

Q: エレベーターの構成を教えてください。

A: 29階建ての規模に応じた十分な基数の乗用エレベーターが配されており、上下移動のストレスを軽減しています。

地図

東京都新宿区西新宿1-24-1 地図をクリックして拡大できます

エステック情報 の外観イメージ

地上29階建て、ガラスとタイルが調和した都会的で洗練された外観デザインは、西新宿の高層ビル群の中でも確かな存在感を放ちます。新宿駅西口から至近という立地もあり、初めて来訪されるお客様への視認性も抜群です。ランドマークとしての品格を備え、入居企業のブランドイメージを強固にサポートする佇まいとなっています。

エステック情報 外観
外観
エステック情報 オフィスビル出入口
オフィスビル出入口
エステック情報 オフィスビル出入口
オフィスビル出入口
エステック情報 エントランス
エントランス
エステック情報 エントランス
エントランス
エステック情報 エレベーターホール
エレベーターホール
エステック情報 エレベーター
エレベーター
エステック情報 外観
外観
エステック情報 地下店舗出入口
地下店舗出入口
エステック情報 地下1階部分
地下1階部分
エステック情報 地下1階立て看板
地下1階立て看板
エステック情報 ビル看板
ビル看板
エステック情報 駐車場出口
駐車場出口
エステック情報 オフィス出入口へのアプローチ
オフィス出入口へのアプローチ

エステック情報 の周辺イメージ

新宿駅西口の成熟したビジネスエリアに位置し、周辺には金融機関や郵便局、飲食店が豊富に揃う極めて便利な環境です。ビル地下階にも飲食店舗が入居しており、ランチや打ち合わせの場所探しに困ることはありません。百貨店や量販店も至近にあり、ビジネスに必要な備品の調達からアフターファイブまで、都市の利便性をフルに享受できます。

エステック情報 地下歩道
地下歩道
エステック情報 前面歩道
前面歩道
エステック情報 前面広場
前面広場
エステック情報 前面道路
前面道路

エステック情報 のアクセス・ロケーション

日本最大のターミナル新宿駅のポテンシャルを最大限に活用できる、西新宿の戦略的なビジネス拠点です。

■ 多彩な駅・路線を利用可能なマルチアクセス
JR各線で東京・品川・横浜方面へ、丸ノ内線で銀座・大手町方面へ、さらに京王・小田急線で多摩エリアへダイレクトに接続。都内主要ビジネスエリアを網羅するマルチアクセスが、ビジネスの機動力を大幅に高めます。

■ 西新宿・新宿駅至近の経済・商業の中心地
都営大江戸線も利用可能で、六本木や汐留方面へもスムーズにアクセス可能です。日本の中枢機能が集積する国際的なビジネスエリアであり、この地に拠点を置くことで、都市の利便性をフルに活用した事業展開が可能になります。

エステック情報 の主な入居テナント

エステック情報 の募集終了区画

図面 階数 坪数 月額費用 坪単価 入居可能日
エステック情報B4F 間取り図
B4階22.08坪お問い合わせください募集終了
検討リスト
エステック情報B2F 間取り図
B2階146.65坪お問い合わせください募集終了
検討リスト
エステック情報B2F 間取り図
B2階30.56坪お問い合わせください募集終了
検討リスト
エステック情報B2F 間取り図
B2階61.00坪お問い合わせください募集終了
検討リスト
エステック情報B2F 間取り図
B2階83.05坪お問い合わせください募集終了
検討リスト
エステック情報B2F 間取り図
B2階17.00坪お問い合わせください募集終了
検討リスト
エステック情報B1F 間取り図
B1階36.00坪お問い合わせください募集終了
検討リスト
エステック情報B1F 間取り図
B1階145.81坪お問い合わせください募集終了
検討リスト
エステック情報B1F 間取り図
B1階94.93坪お問い合わせください募集終了
検討リスト
エステック情報B1F 間取り図
B1階53.78坪お問い合わせください募集終了
検討リスト
エステック情報1F 間取り図
1階27.78坪お問い合わせください募集終了
検討リスト
エステック情報1F 間取り図
1階35.00坪お問い合わせください募集終了
検討リスト
エステック情報1F 間取り図
1階27.78坪お問い合わせください募集終了
検討リスト
エステック情報1F 間取り図
1階7.85坪お問い合わせください募集終了
検討リスト
エステック情報2F 間取り図
2階17.08坪お問い合わせください募集終了
検討リスト
エステック情報2F 間取り図
2階17.00坪お問い合わせください募集終了
検討リスト
エステック情報3F 間取り図
3階53.11坪お問い合わせください募集終了
検討リスト
エステック情報3F 間取り図
3階89.00坪お問い合わせください募集終了
検討リスト
エステック情報3F 間取り図
3階35.78坪お問い合わせください募集終了
検討リスト
エステック情報3F 間取り図
3階35.77坪お問い合わせください募集終了
検討リスト
エステック情報401 間取り図
4階37.02坪お問い合わせください募集終了
検討リスト
エステック情報403 間取り図
4階12.95坪お問い合わせください募集終了
検討リスト
エステック情報7F 間取り図
7階305.79坪お問い合わせください募集終了
検討リスト
エステック情報8F 間取り図
8階303.10坪お問い合わせください募集終了
検討リスト
エステック情報8F 間取り図
8階143.82坪お問い合わせください募集終了
検討リスト
エステック情報9F 間取り図
9階313.39坪お問い合わせください募集終了
検討リスト
エステック情報9F 間取り図
9階300.00坪お問い合わせください募集終了
検討リスト
エステック情報9F 間取り図
9階88.13坪お問い合わせください募集終了
検討リスト
エステック情報10F 間取り図
10階146.30坪お問い合わせください募集終了
検討リスト
エステック情報10F 間取り図
10階150.00坪お問い合わせください募集終了
検討リスト
エステック情報10F 間取り図
10階146.30坪お問い合わせください募集終了
検討リスト
エステック情報10F 間取り図
10階35.91坪お問い合わせください募集終了
検討リスト
エステック情報10F 間取り図
10階7.74坪お問い合わせください募集終了
検討リスト
エステック情報10F 間取り図
10階153.97坪お問い合わせください募集終了
検討リスト
エステック情報10F 間取り図
10階305.79坪お問い合わせください募集終了
検討リスト
エステック情報11F 間取り図
11階305.79坪お問い合わせください募集終了
検討リスト
エステック情報11F 間取り図
11階7.74坪お問い合わせください募集終了
検討リスト
エステック情報12F 間取り図
12階305.79坪お問い合わせください募集終了
検討リスト
エステック情報12F 間取り図
12階7.74坪お問い合わせください募集終了
検討リスト
エステック情報13F 間取り図
13階306.00坪お問い合わせください募集終了
検討リスト
エステック情報14F 間取り図
14階146.30坪お問い合わせください募集終了
検討リスト
エステック情報14F 間取り図
14階36.00坪お問い合わせください募集終了
検討リスト
エステック情報15F 間取り図
15階305.52坪お問い合わせください募集終了
検討リスト
エステック情報15F 間取り図
15階308.00坪お問い合わせください募集終了
検討リスト
エステック情報15F 間取り図
15階308.00坪お問い合わせください募集終了
検討リスト
エステック情報16F 間取り図
16階305.79坪お問い合わせください募集終了
検討リスト
エステック情報16F 間取り図
16階141.81坪お問い合わせください募集終了
検討リスト
エステック情報17F 間取り図
17階54.00坪お問い合わせください募集終了
検討リスト
エステック情報17F 間取り図
17階146.30坪お問い合わせください募集終了
検討リスト
エステック情報18F 間取り図
18階306.00坪お問い合わせください募集終了
検討リスト
エステック情報19F 間取り図
19階315.00坪お問い合わせください募集終了
検討リスト
エステック情報19F 間取り図
19階146.30坪お問い合わせください募集終了
検討リスト
エステック情報19F 間取り図
19階15.00坪お問い合わせください募集終了
検討リスト
エステック情報19F 間取り図
19階105.87坪お問い合わせください募集終了
検討リスト
エステック情報19F 間取り図
19階89.00坪お問い合わせください募集終了
検討リスト
エステック情報19F 間取り図
19階35.77坪お問い合わせください募集終了
検討リスト
エステック情報19F 間取り図
19階54.00坪お問い合わせください募集終了
検討リスト
エステック情報19F 間取り図
19階57.00坪お問い合わせください募集終了
検討リスト
エステック情報20F 間取り図
20階88.13坪お問い合わせください募集終了
検討リスト
エステック情報20F 間取り図
20階17.66坪お問い合わせください募集終了
検討リスト
エステック情報20F 間取り図
20階53.68坪お問い合わせください募集終了
検討リスト
エステック情報21F 間取り図
21階141.57坪お問い合わせください募集終了
検討リスト
エステック情報22F 間取り図
22階159.00坪お問い合わせください募集終了
検討リスト
エステック情報22F 間取り図
22階88.13坪お問い合わせください募集終了
検討リスト
エステック情報22F 間取り図
22階146.00坪お問い合わせください募集終了
検討リスト
エステック情報23F 間取り図
23階306.00坪お問い合わせください募集終了
検討リスト
エステック情報23F 間取り図
23階17.66坪お問い合わせください募集終了
検討リスト
エステック情報23F 間取り図
23階141.57坪お問い合わせください募集終了
検討リスト
エステック情報23F 間取り図
23階17.55坪お問い合わせください募集終了
検討リスト
エステック情報23F 間取り図
23階306.00坪お問い合わせください募集終了
検討リスト
エステック情報24F 間取り図
24階71.44坪お問い合わせください募集終了
検討リスト
エステック情報24F 間取り図
24階70.36坪お問い合わせください募集終了
検討リスト
エステック情報24F 間取り図
24階17.66坪お問い合わせください募集終了
検討リスト
エステック情報25F 間取り図
25階17.54坪お問い合わせください募集終了
検討リスト
エステック情報25F 間取り図
25階36.00坪お問い合わせください募集終了
検討リスト
エステック情報27F 間取り図
27階17.66坪お問い合わせください募集終了
検討リスト
エステック情報28F 間取り図
28階23.88坪お問い合わせください募集終了
検討リスト

エステック情報 が選ばれる理由

■ 地下道直結という圧倒的なアクセス優位性
新宿駅から徒歩5分、かつ地下道直結というロケーションは、従業員の通勤負担を劇的に軽減し、天候に左右されない確実なビジネスワークを可能にします。

■ 高いITインフラスペックと実務機能
75VA/㎡の電気容量やビル内の貸会議室など、実務を円滑に進めるためのスペックが凝縮されており、入居後の業務効率化とコストパフォーマンスを両立させます。

■ 信頼のランドマーク性と安全性
西新宿の高層ビルとしてのステータスに加え、建物安全度判定サポートシステムなどの高度なBCP対策が、企業の信頼と安全を長期にわたって支え続けます。

近くの物件紹介

新宿区のエリア

近くの駅

取扱態様仲介
取扱会社株式会社アドマイアー
東京都中央区日本橋3-2-3ユニバース第1ビル2F
TEL. 03-5204-1031
宅地建物取引業免許 東京都知事(3)第94663号
マンション管理業免許 国土交通大臣(2)第034224号
賃貸住宅管理業免許 国土交通大臣(01)第005938号

東京主要エリア一覧