芝浦(港区)の賃貸オフィス・貸事務所情報
田町駅の海側(東口)に広がる、運河と再開発ビルが調和したエリアです。「芝浦アイランド」などのタワーマンション群と、芝浦工業大学などの教育機関、オフィスビルが一体となった職住近接の街です。
検索結果 30 件
並び替え
岡家寿(おかやす)ビル(港区・芝浦・田町・三田)
- 所在地
- 東京都港区芝浦1-7-14
- 最寄り駅
- 田町駅徒歩9分、三田駅徒歩7分、日の出駅徒歩6分
- 竣工
- 1990年
- 規模
- 地上6階
- 耐震基準
- 新耐震基準適合
- セキュリティ
- 機械警備(24時間監視)
- 駐車場設備
- 要確認
岡家寿ビルは、港区芝浦エリアに位置する、石張りの外装により落ち着いた印象を与える賃貸オフィスです。日の出駅、三田駅、田町駅の3駅が徒歩10分圏内にあり、複数路線の利用が可能な交通利便性を備えています。室内はL字型の形状で、室内に柱が配置されていないため、什器やデスクの配置が円滑に行える設計です。個別空調やOAフロアといった基本的なオフィススペックに加え、男女別トイレが共用部に設置されており、専有部を有効に活用できる点が特徴です。周辺は比較的落ち着いたビジネス環境でありながら、近隣にはコンビニエンスストアもあり、日々の業務をサポートする利便性も備えたビルです。
岡家寿(おかやす)ビル の募集区画 (総募集面積 62.95坪)
※月額費用、坪単価 ともに共益費込・税別の価格です
エムジー芝浦ビル(港区・芝浦・三田・田町)
- 所在地
- 東京都港区芝浦1-8-4
- 最寄り駅
- 三田駅徒歩9分、田町駅徒歩9分、浜松町駅徒歩11分
- 竣工
- 1992年
- 規模
- 地上6階・地下1階
- 耐震基準
- 新耐震基準適合
- セキュリティ
- 機械警備(24時間監視)
- 駐車場設備
- 要確認
エムジー芝浦は、港区芝浦エリアに位置する、御影石を用いた外装とゴールドの差し色が施された賃貸オフィスです。JR田町駅や都営三田駅から徒歩9分という距離にあり、旧海岸通りから一本入った落ち着いた環境が特徴です。室内はL字型の形状を採用しており、受付スペースとメインの執務エリアを明確に分けるなど、機能的なゾーニングが可能です。2箇所のバルコニーによる開放感に加え、OAフロアや個別空調、男女別トイレといった実用的なスペックを完備しています。機械警備によるセキュリティ体制も整っており、都心主要駅へのアクセス性と静穏な執務環境を両立させたい企業に適した拠点です。
エムジー芝浦ビル の募集区画 (総募集面積 67.25坪)
※月額費用、坪単価 ともに共益費込・税別の価格です
芝浦中村ビル(港区・芝浦・芝浦ふ頭・田町)
- 所在地
- 東京都港区芝浦2-3-37
- 最寄り駅
- 芝浦ふ頭駅徒歩8分、田町駅徒歩10分、三田駅徒歩11分
- 竣工
- 1991年
- 規模
- 地上7階
- 耐震基準
- 新耐震基準適合
- セキュリティ
- 機械警備(24時間監視)
- 駐車場設備
- 要確認
芝浦中村ビルは港区芝浦エリアに位置し、田町駅や三田駅など4駅が利用可能な立地です。1991年竣工の新耐震基準物件で、白を基調とした清潔感のある外観が特徴です。室内は窓面が足元から天井まで広がり、豊かな採光を確保しています。各階にバルコニーを完備しており、個別空調や24時間入退館対応など、柔軟な働き方を支える設備が充実したオフィス環境です。旧海岸通りから一本入った落ち着いた立地は、静寂な業務環境を求める企業との親和性が高いといえます。
芝浦中村ビル の募集区画 (総募集面積 31.58坪)
※月額費用、坪単価 ともに共益費込・税別の価格です
田町きよたビル(港区・芝浦・泉岳寺・田町)
- 所在地
- 東京都港区芝浦4-3-4
- 最寄り駅
- 泉岳寺駅徒歩8分、田町駅徒歩11分、三田駅徒歩13分
- 竣工
- 1982年
- 規模
- 地上9階・地下1階
- 耐震基準
- 新耐震基準適合
- セキュリティ
- 機械警備・有人管理(24時間体制)
- 駐車場設備
- 有(73台)
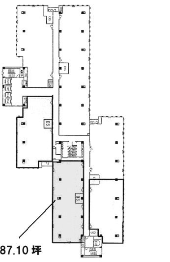
田町きよたビルは、再開発によりダイナミックな変貌を遂げる芝浦エリアに位置する、ITオフィス仕様の大規模賃貸オフィスです。泉岳寺駅徒歩8分をはじめ、田町駅や品川駅など計5駅からアクセス可能な卓越した機動力を持っています。最大の特徴はワンフロア2,000㎡を超える圧倒的なゆとりある空間で、効率的な大型レイアウトを実現します。機械警備と24時間有人管理体制を組み合わせた万全のセキュリティに加え、エレベーター5基と73台収容の駐車場を完備。東京駅まで7分、羽田空港まで16分と国内外への移動もスムーズで、芝浦の進化を象徴する優れたポテンシャルがビジネスの可能性を大きく広げます。
田町きよたビル の募集区画 (総募集面積 255.70坪)
| 図面 | 階数 | 坪数 | 月額費用 | 坪単価 | 入居可能日 | |
|---|---|---|---|---|---|---|
![]() | 6階 | 87.10坪 | お問い合わせください | 即時 | 検討リスト お問い合わせ | |
![]() | 7階 | 87.10坪 | お問い合わせください | 即時 | 検討リスト お問い合わせ | |
![]() | 6階 | 81.50坪 | お問い合わせください | 即時 | 検討リスト お問い合わせ |
※月額費用、坪単価 ともに共益費込・税別の価格です
第三協栄ビル(港区・芝浦・田町・三田)
- 所在地
- 東京都港区芝浦3-11-5
- 最寄り駅
- 田町駅徒歩5分、三田駅徒歩6分、芝浦ふ頭駅徒歩11分
- 竣工
- 1976年
- 規模
- 地上7階
- セキュリティ
- 有人管理(警備員常駐)
- 駐車場設備
- 要確認
第三協栄ビルは、港区芝浦エリアのメインストリートである旧海岸通りに面した賃貸オフィスビルです。田町駅から徒歩5分という駅近の立地に加え、2006年の大規模リニューアルにより、清潔感のある共用部と室内環境を維持しています。1フロア約78坪の空間は、大通り側の広い窓面から豊かな自然光が差し込み、開放的な事務環境を実現可能です。水回りを共用部に配置することで、専有面積を最大限に有効活用できる設計となっています。有人警備体制による安心感と、周辺の豊富なアメニティが業務の効率化を支援します。
第三協栄ビル の募集区画 (総募集面積 78.00坪)
※月額費用、坪単価 ともに共益費込・税別の価格です
第2AKビル(港区・芝浦・芝浦ふ頭・田町)
- 所在地
- 東京都港区芝浦2-8-14
- 最寄り駅
- 芝浦ふ頭駅徒歩7分、田町駅徒歩10分、三田駅徒歩12分
- 竣工
- 1987年
- 規模
- 地上8階
- 耐震基準
- 新耐震基準適合
- セキュリティ
- 機械警備(24時間監視)
- 駐車場設備
- 要確認
第2AKビル の募集区画 (総募集面積 39.86坪)
※月額費用、坪単価 ともに共益費込・税別の価格です
根本ビル(港区・芝浦・田町・三田)
- 所在地
- 東京都港区芝浦3-11-7
- 最寄り駅
- 田町駅徒歩5分、三田駅徒歩10分、芝浦ふ頭駅徒歩10分
- 竣工
- 1985年
- 規模
- 地上8階
- 耐震基準
- 新耐震基準適合
- セキュリティ
- 機械警備(24時間監視)
- 駐車場設備
- 無
根本ビルは、JR田町駅から徒歩5分の旧海岸通り沿い、人通りの多い角地に位置する1986年竣工の賃貸オフィスビルです。グレーと白の清潔感あるパネル張りの外観が特徴で、1階には「ドトールコーヒーショップ」が入居しており、視認性と来客時の目印として非常に優れています。室内は約22坪の正方形に近い整形で、無駄な柱がなくデスク配置の自由度が高い設計。角地を活かした2面採光により、明るく開放的な執務空間を実現しています。機械警備導入で24時間安心して利用でき、周辺には銀行ATMやドラッグストア、多彩な飲食店が揃う抜群の周辺環境を誇ります。田町エリアで利便性と機動力を重視する企業様に最適な一棟です。
根本ビル の募集区画 (総募集面積 22.23坪)
※月額費用、坪単価 ともに共益費込・税別の価格です
キャナルスクエア芝浦(港区・芝浦・田町・三田)
- 所在地
- 東京都港区芝浦3-14-18
- 最寄り駅
- 田町駅徒歩5分、三田駅徒歩8分
- 竣工
- 1988年
- 規模
- 地上8階
- 耐震基準
- 新耐震基準適合
- セキュリティ
- 機械警備(24時間監視)
- 駐車場設備
- 無
- 設備
- リニューアル済み、 土日祝エントランス開放
キャナルスクエア芝浦は、港区芝浦エリアの運河近くに位置する視認性の高い賃貸オフィスです。JR田町駅から徒歩5分という近さに加え、都営線三田駅も徒歩圏内にあるため、多方面への移動がスムーズに行えます。1988年竣工の新耐震基準適合物件であり、堅牢な構造と安定した管理体制が魅力です。ワンフロア約50坪の整形空間は、柱の影響を受けにくく自由度の高いレイアウトが可能です。周辺は近年再開発が活発なビジネス街でありながら、水辺に近い穏やかな環境も兼ね備えており、集中して業務に取り組みたい企業に好適なワークスペースを提供します。
キャナルスクエア芝浦 の募集区画 (総募集面積 52.95坪)
※月額費用、坪単価 ともに共益費込・税別の価格です
テクス芝浦ビル(港区・芝浦・田町・三田)
- 所在地
- 東京都港区芝浦3-14-5
- 最寄り駅
- 田町駅徒歩4分、三田駅徒歩6分、芝浦ふ頭駅徒歩7分
- 竣工
- 1991年
- 規模
- 地上6階・地下1階
- 耐震基準
- 新耐震基準適合
- セキュリティ
- 機械警備(24時間監視)
- 駐車場設備
- 無
港区芝浦エリアに佇む、1991年竣工の地上6階地下1階建て賃貸オフィスビルです。JR田町駅から徒歩4分という近距離にあり、三田駅や芝浦ふ頭駅も徒歩圏内のため、複数路線の利用が可能です。RC造の堅牢な構造に加えて機械警備を導入しており、安全性の高さが魅力です。駅前の賑わいから程よく離れた芝浦3丁目のビジネス街に位置し、静穏な環境と都心への優れたアクセスを両立したオフィス環境を提供します。
テクス芝浦ビル の募集区画 (総募集面積 22.54坪)
※月額費用、坪単価 ともに共益費込・税別の価格です
CANAL GATE SHIBAURA(港区・芝浦・田町・三田)
- 所在地
- 東京都港区芝浦4-12-38
- 最寄り駅
- 田町駅徒歩8分、三田駅徒歩9分、泉岳寺駅徒歩17分
- 竣工
- 1989年
- 規模
- 地上8階
- 耐震基準
- 新耐震基準適合
- セキュリティ
- 機械警備(24時間監視)
- 駐車場設備
- 無
- 設備
- 24時間(要ICカード)、 トイレ男女別
CANAL GATE 芝浦は、JR田町駅から徒歩8分、芝浦の運河沿いに佇む意匠性の高い賃貸オフィスです。2019年に1棟丸ごとフルリニューアルが実施され、2階まで吹き抜けた開放的なエントランスや運河を望むバルコニーなど、随所にラグジュアリーな演出が施されています。室内は会議室やラウンジ、什器が完備されたハーフセットアップ仕様となっており、機能的かつ洗練された空間をすぐに利用可能です。エントランスから専有部まで一貫した高いデザイン性を備え、クリエイティブな作業環境と対外的な信頼性を求める企業にふさわしい高品質なビジネス拠点です。
CANAL GATE SHIBAURA の募集区画 (総募集面積 71.03坪)
※月額費用、坪単価 ともに共益費込・税別の価格です
MS芝浦ビル(港区・芝浦・田町・三田)
- 所在地
- 東京都港区芝浦4-13-23
- 最寄り駅
- 田町駅徒歩8分、三田駅徒歩9分、芝浦ふ頭駅徒歩15分
- 竣工
- 1988年
- 規模
- 地上13階・地下2階
- 耐震基準
- 新耐震基準適合
- セキュリティ
- 有人管理(警備員常駐)
- 駐車場設備
- 有(65台(自走式・一部機械式))
- 設備
- トイレ男女別
JR田町駅から徒歩8分、三田駅からも徒歩9分。港区芝浦エリアにそびえ立つ、延床面積約9,300坪超の大規模オフィスビルです。最大の特徴は1フロア約593坪という広大なメガフロア。部署間の垣根をなくした効率的なオフィスレイアウトを可能にします。1988年竣工の新耐震基準物件ながら、空調システムのリニューアルや共用部のアップデートを継続的に実施。24時間有人警備による強固なセキュリティと、合計8基の機動力あるエレベーター群、そして65台収容の自走式駐車場を完備しています。大規模ビルならではの安定感と、多様なビジネスニーズに応える柔軟性を兼ね備えた賃貸オフィスです。
MS芝浦ビル の募集区画 (総募集面積 593.31坪)
※月額費用、坪単価 ともに共益費込・税別の価格です
シーバンス ア・モール(港区・芝浦・日の出・浜松町)
- 所在地
- 東京都港区芝浦1-2-1
- 最寄り駅
- 日の出駅徒歩5分、浜松町駅徒歩8分、三田駅徒歩13分
- 竣工
- 1991年
- 規模
- 地上24階・地下2階
- 耐震基準
- 新耐震基準適合
- セキュリティ
- 機械警備(24時間監視)
- 駐車場設備
- 要確認
- 設備
- トイレ男女別
シーバンスは、芝浦の運河沿いに聳え立つ港区を代表するランドマーク的な賃貸オフィスビルです。N館とS館のツインタワーで構成され、その間には全天候型の巨大アトリウム「ア・モール」を配置しています。室内は無柱空間の広大なフロアプレートを持ち、多様なオフィスレイアウトを柔軟に実現可能です。1991年竣工ながら、BCS賞や都市景観大賞を受賞した意匠性と設備スペックは、現代のビジネスシーンにおいても高い水準を保持しています。建物内には多彩な飲食店やコンビニ、カンファレンス施設が揃い、ワーカーの利便性と満足度を支える充実した環境が整っています。
シーバンス ア・モール の募集区画 (総募集面積 99.29坪)
※月額費用、坪単価 ともに共益費込・税別の価格です
VORT芝浦WaterFront(港区・芝浦・田町・三田)
- 所在地
- 東京都港区芝浦4-12-31
- 最寄り駅
- 田町駅徒歩9分、三田駅徒歩12分、芝浦ふ頭駅徒歩16分
- 竣工
- 1989年
- 規模
- 地上7階・地下1階
- 耐震基準
- 新耐震基準適合
- 駐車場設備
- 有
- 設備
- トイレ男女別
田町駅から徒歩9分、港区芝浦4丁目の運河を間近に望むウォーターフロントエリアに位置する「VORT芝浦WaterFront」。1989年竣工、地上7階地下1階建の賃貸オフィスビルです。新耐震基準に適合した堅牢なSRC構造を採用。本物件の最大の魅力は、リバーサイドならではの開放的な眺望と、1フロア1テナントによる圧倒的な独立性です。室内には個別空調、OAフロア、男女別トイレを完備。7階建てながらエレベーターを2基設置しており、円滑な上下移動をサポートします。24時間機械警備を整え、車両置き場も併設。ACN・VORTシリーズならではの高品質な管理体制のもと、都心の利便性と開放感を両立した拠点を構える企業を強力に支援します。
VORT芝浦WaterFront の募集区画 (総募集面積 52.45坪)
※月額費用、坪単価 ともに共益費込・税別の価格です
成友芝浦ビル(港区・芝浦・田町・三田)
- 所在地
- 東京都港区芝浦3-14-5
- 最寄り駅
- 田町駅徒歩5分、三田駅徒歩8分
- 竣工
- 1991年
- 規模
- 地上7階
- 耐震基準
- 新耐震基準適合
- セキュリティ
- 機械警備(24時間監視)
- 駐車場設備
- 要確認
成友芝浦ビルは、港区芝浦の再開発により活気付くエリアに位置し、JR田町駅から徒歩5分という高い利便性を誇る賃貸オフィス物件です。1991年竣工の建物は新耐震基準に適合しており、RC造の堅牢な構造が企業の安全性を支えます。機械警備による24時間監視体制が整っているため、夜間や休日の執務も安心して行える環境です。周辺はオフィスビルや住宅が混在する落ち着いた街並みで、徒歩圏内には飲食店やコンビニ、金融機関が充実しており、日々の業務を円滑に進めるためのアメニティが揃っています。三田駅も徒歩8分で利用可能であり、都内各所へのマルチアクセスが可能な点が大きな強みです。
成友芝浦ビル の募集区画 (総募集面積 19.00坪)
※月額費用、坪単価 ともに共益費込・税別の価格です
第二高取ビル(港区・芝浦・芝浦ふ頭・田町)
編集中
- 所在地
- 東京都港区芝浦2-3-31
- 最寄り駅
- 芝浦ふ頭駅徒歩5分、田町駅徒歩6分、三田駅徒歩7分
- 竣工
- 1986年
- 規模
- 地上6階
- 耐震基準
- 新耐震基準適合
- セキュリティ
- 機械警備(24時間監視)
- 駐車場設備
- 要確認
第2高取ビルは港区芝浦エリアに位置し、芝浦ふ頭駅や田町駅を含む3駅が徒歩圏内という高い利便性を備えています。1987年竣工の新耐震基準適合物件で、鉄筋コンクリート造の堅牢な構造が特徴です。室内は二面採光を採用しており、豊かな自然光が差し込む明るい執務環境を提供します。OAフロアや個別空調、男女別トイレなど、現代のビジネスニーズを満たす設備を完備しています。24時間使用可能で機械警備も導入されており、セキュリティ面を重視する企業に適した仕様です。敷地内には平面および機械式の駐車場を併設しており、車両を利用する業務にも柔軟に活用できます。
第二高取ビル の募集区画 (総募集面積 54.10坪)
※月額費用、坪単価 ともに共益費込・税別の価格です
オー・アイ・芝浦(港区・芝浦・田町・三田)
- 所在地
- 東京都港区芝浦3-19-19
- 最寄り駅
- 田町駅徒歩7分、三田駅徒歩8分
- 竣工
- 1987年
- 規模
- 地上8階
- 耐震基準
- 新耐震基準適合
- セキュリティ
- 機械警備(24時間監視)
- 駐車場設備
- 要確認
オー・アイ・芝浦は、港区芝浦エリアに位置する、1フロア約50坪の賃貸オフィスビルです。田町駅と三田駅の2駅が徒歩圏内にあり、多方面へのアクセスに優れた立地を誇ります。1987年竣工の新耐震基準適合物件であり、2011年にはリニューアル工事が施され、清潔感のある共用部を維持しています。室内はシンプルな間取りで、トイレや給湯スペースが貸室外に配置されているため、専有部を有効に活用可能です。機械警備や24時間利用、エレベーター不停止機能など、セキュリティ面も強化されています。平面駐車場を完備しており、車両を利用する業務形態の企業に合致する環境です。
オー・アイ・芝浦 の募集区画 (総募集面積 106.84坪)
※月額費用、坪単価 ともに共益費込・税別の価格です
芝浦NAビル(港区・芝浦・高輪ゲートウェイ・田町)
- 所在地
- 東京都港区芝浦4-17-3
- 最寄り駅
- 高輪ゲートウェイ駅徒歩8分、田町駅徒歩13分、泉岳寺駅徒歩11分
- 竣工
- 1992年
- 規模
- 地上7階・地下1階
- 耐震基準
- 新耐震基準適合
- セキュリティ
- 機械警備(24時間監視)
- 駐車場設備
- 要確認
- 設備
- トイレ男女別
高輪ゲートウェイ駅から徒歩8分、港区芝浦エリアに位置する本物件は、1992年竣工の地上7階建て賃貸オフィスです。丸みを帯びたお洒落な外観と、デザイン性の高いエントランスが来客者に洗練された印象を与えます。室内は天井高2,900mmの開放的な空間で、大きな窓面から差し込む豊かな採光が魅力です。OAフロアや機械警備、男女別トイレなど、BtoB拠点に求められる設備が充実。山手線の新駅周辺という将来性豊かな立地でありながら、海岸付近の落ち着いた環境で業務に集中できる、バランスの取れたビジネス拠点です。
芝浦NAビル の募集区画 (総募集面積 71.85坪)
※月額費用、坪単価 ともに共益費込・税別の価格です
島倉田町ビル(港区・芝浦・田町・三田)
- 所在地
- 東京都港区芝浦3-15-6
- 最寄り駅
- 田町駅徒歩6分、三田駅徒歩8分、芝浦ふ頭駅徒歩13分
- 竣工
- 2022年
- 規模
- 地上9階
- 耐震基準
- 新耐震基準適合
- セキュリティ
- 機械警備(24時間監視)
- 駐車場設備
- 無
JR田町駅から徒歩6分、旧海岸通りに面した大きな交差点の角地に位置する、2022年竣工の築浅オフィスビルです。ブラウンを基調としたスタイリッシュな外観は視認性が高く、企業のブランドイメージを向上させます。地上6階建ての鉄筋コンクリート造で、最新の新耐震基準に適合。基準階は約56坪の広さを持ち、角地ならではの二面採光による明るい執務空間が魅力です。個別空調や男女別トイレなど、最新のスペックを完備。三田駅も徒歩圏内で、都心主要エリアへの機動力と、水辺の潤いを感じる芝浦エリアの開放感を両立させた、次世代のワークプレイスです。
島倉田町ビル の募集区画 (総募集面積 57.65坪)
※月額費用、坪単価 ともに共益費込・税別の価格です
COAST芝浦(港区・芝浦・田町・三田)
- 所在地
- 東京都港区芝浦2-14-6
- 最寄り駅
- 田町駅徒歩8分、三田駅徒歩9分
- 竣工
- 1992年
- 規模
- 地上6階
- 耐震基準
- 新耐震基準適合
- セキュリティ
- 機械警備(24時間監視)
- 駐車場設備
- 無
- 設備
- トイレ男女別
COAST芝浦は、港区芝浦エリアのメインストリート、旧海岸通り沿いの角地に建つ、地上6階建ての賃貸オフィスビルです。2018年に実施された大規模リニューアルにより、グレーを基調とした全面ガラス張りのスタイリッシュな外観へと生まれ変わりました。募集中の4階(32.86坪)最大の特徴は、一般的なオフィスを大きく上回る「3,100mm」の天井高です。二面採光の明るい室内と相まって、実面積以上の圧倒的な開放感を実現しています。1フロア1テナントの贅沢な仕様で、男女別トイレや給湯設備もフロア専用。プライバシーを保ちながら、自由度の高いレイアウトが可能です。機械警備完備で24時間利用可能なため、クリエイティブな職種やIT企業にも最適。田町駅・三田駅が徒歩圏内という利便性に加え、周辺にはコンビニやスーパーが至近に揃う抜群の周辺環境を誇ります。礼金0ヶ月というコスト面でのメリットも大きく、芝浦エリアで感度の高いオフィスをお探しの企業様にとって、2026年夏の移転先として最有力候補となる一棟です。
COAST芝浦 の募集区画 (総募集面積 32.86坪)
※月額費用、坪単価 ともに共益費込・税別の価格です
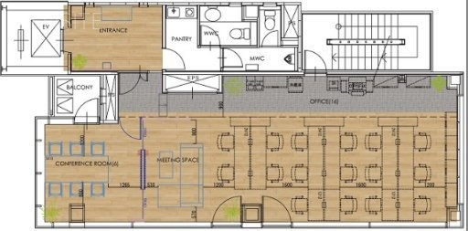
CADRE tamachi (キャドレ田町)(港区・芝浦・田町・三田)
- 所在地
- 東京都港区芝浦3-6-12
- 最寄り駅
- 田町駅徒歩5分、三田駅徒歩8分
- 竣工
- 2026年
- 規模
- 地上8階
- 耐震基準
- 新耐震基準適合
- セキュリティ
- 機械警備(24時間監視)
- 駐車場設備
- 要確認
CADRE tamachiは、2026年1月の竣工を目指して開発が進む、地上8階建ての新築オフィスビルです。JR山手線・京浜東北線「田町」駅から徒歩5分、都営三田線・浅草線「三田」駅から徒歩8分という利便性の高い立地に位置しています。特筆すべきは、一部フロアで天井高3,750mmという圧倒的な高さを確保している点と、内装工事の手間を省ける「セットアップオフィス」区画が用意されている点です(※フロアにより仕様が異なる場合があります)。約30坪台の使い勝手の良いサイズ感で、男女別トイレや個別空調などのスペックも充実。企業の成長を加速させる、洗練されたデザインと機能性を兼ね備えた最新オフィスです。
CADRE tamachi (キャドレ田町) の募集区画 (総募集面積 191.17坪)
| 図面 | 階数 | 坪数 | 月額費用 | 坪単価 | 入居可能日 | |
|---|---|---|---|---|---|---|
![]() | 3階 | 29.60坪 | 917,600円 | 31,000円 | 即時 | 検討リスト お問い合わせ |
![]() | 4階 | 31.42坪 | 1,162,540円 | 37,000円 | 即時 | 検討リスト お問い合わせ |
![]() | 5階 | 35.41坪 | 1,310,170円 | 37,000円 | 即時 | 検討リスト お問い合わせ |
![]() | 6階 | 35.41坪 | 1,310,170円 | 37,000円 | 即時 | 検討リスト お問い合わせ |
![]() | 7階 | 35.41坪 | 1,451,810円 | 41,000円 | 即時 | 検討リスト お問い合わせ |
![]() | 8階 | 23.92坪 | 932,880円 | 39,000円 | 即時 | 検討リスト お問い合わせ |
※月額費用、坪単価 ともに共益費込・税別の価格です
田町駅からペデストリアンデッキで直結しており、非常に快適に通勤できます。ソニーグループなどの大手企業も拠点を構えています。運河沿いには遊歩道が整備され、開放感のある環境です。天王洲アイル方面へのアクセスも良く、クリエイティブな企業にも人気があります。





















































































































































































































































