六本木の賃貸オフィス・貸事務所情報
港区六本木エリアは、東京都港区に位置し、国際的なビジネス街として知られています。最寄り駅は東京メトロ日比谷線や南北線、都営大江戸線の六本木駅で、交通利便性が高いです。エリア内には六本木ヒルズや東京ミッドタウンなどの大規模複合施設があり、オフィス、商業施設、ホテル、美術館などが一体化しています。また、森美術館やサントリー美術館などの文化施設もあり、文化芸術に親しめる環境が整っています。高級ブランド店や飲食店が多く、国際的な雰囲気が特徴です。
検索結果 57 件
六本木福吉町ビル(港区、六本木、六本木一丁目、溜池山王)
- 所在地
- 東京都港区六本木2-2-6
- 最寄り駅
- 六本木一丁目駅徒歩2分、溜池山王駅徒歩5分、国会議事堂前駅徒歩6分
- 竣工
- 1964年
- 規模
- 地上7階・地下1階
- セキュリティ
- 機械警備(24時間監視)
- 駐車場設備
- 要確認
六本木福吉町ビル の募集区画 (総募集面積 37.99坪)
※月額費用、坪単価 ともに共益費込・税別の価格です
オーイズミ六本木(港区、六本木、六本木一丁目、溜池山王)
- 所在地
- 東京都港区六本木2-2-8
- 最寄り駅
- 六本木一丁目駅徒歩3分、溜池山王駅徒歩7分、赤坂駅徒歩8分
- 竣工
- 1989年
- 規模
- 地上9階・地下1階
- 耐震基準
- 新耐震基準適合
- セキュリティ
- 機械警備(24時間監視)
- 駐車場設備
- 要確認
オーイズミ六本木 の募集区画 (総募集面積 112.13坪)
※月額費用、坪単価 ともに共益費込・税別の価格です
青葉六本木ビル(港区、六本木、六本木一丁目、麻布十番)
- 所在地
- 東京都港区六本木3-16-33
- 最寄り駅
- 六本木駅徒歩6分、六本木一丁目駅徒歩7分、麻布十番駅徒歩12分
- 竣工
- 1993年
- 規模
- 地上11階・地下3階
- 耐震基準
- 新耐震基準適合
- セキュリティ
- 機械警備(24時間監視)
- 駐車場設備
- 要確認
青葉六本木ビル の募集区画 (総募集面積 421.73坪)
| 図面 | 階数 | 坪数 | 月額費用 | 坪単価 | 入居可能日 | |
|---|---|---|---|---|---|---|
![]() | 2階 | 105.27坪 | 非公開 | 非公開 | 2026/6/1 | 検討リスト お問い合わせ |
![]() | 2階 | 122.41坪 | 非公開 | 非公開 | 即時 | 検討リスト お問い合わせ |
![]() | 3階 | 194.05坪 | 非公開 | 非公開 | 即時 | 検討リスト お問い合わせ |
※月額費用、坪単価 ともに共益費込・税別の価格です
スハラ六本木(港区、六本木、六本木一丁目)
- 所在地
- 東京都港区六本木3-3-27
- 最寄り駅
- 六本木一丁目駅徒歩4分、六本木駅徒歩8分
- 竣工
- 1991年
- 規模
- 地上4階・地下2階
- 耐震基準
- 新耐震基準適合
- セキュリティ
- 共用部警備なし(簡易管理)
- 駐車場設備
- 要確認
スハラ六本木 の募集区画 (総募集面積 113.07坪)
| 図面 | 階数 | 坪数 | 月額費用 | 坪単価 | 入居可能日 | |
|---|---|---|---|---|---|---|
![]() | 2階 | 102.45坪 | 2,281,841円 | 22,273円 | 即時 | 検討リスト お問い合わせ |
![]() | 4階 | 10.62坪 | 244,260円 | 23,000円 | 2025/10/1 | 検討リスト お問い合わせ |
※月額費用、坪単価 ともに共益費込・税別の価格です
六本木NKビル(港区、六本木、六本木一丁目、神谷町)
- 所在地
- 東京都港区六本木3-3-7
- 最寄り駅
- 六本木一丁目駅徒歩3分、六本木駅徒歩10分、神谷町駅徒歩13分
- 竣工
- 1987年
- 規模
- 地上5階・地下1階
- 耐震基準
- 新耐震基準適合
- 駐車場設備
- 要確認
六本木NKビル の募集区画 (総募集面積 84.80坪)
※月額費用、坪単価 ともに共益費込・税別の価格です
マルマン六本木ビル(港区、六本木、六本木一丁目、溜池山王)
- 所在地
- 東京都港区六本木3-4-33
- 最寄り駅
- 六本木一丁目駅徒歩3分、六本木駅徒歩5分、溜池山王駅徒歩8分
- 竣工
- 1974年
- 規模
- 地上10階・地下1階
- セキュリティ
- 機械警備(24時間監視)
- 駐車場設備
- 要確認
マルマン六本木ビル の募集区画 (総募集面積 64.20坪)
※月額費用、坪単価 ともに共益費込・税別の価格です
六本木ファイブ(港区、六本木、麻布十番、六本木一丁目)
- 所在地
- 東京都港区六本木5-18-20
- 最寄り駅
- 六本木駅徒歩7分、麻布十番駅徒歩9分、六本木一丁目駅徒歩13分
- 竣工
- 1986年
- 規模
- 地上6階・地下1階
- 耐震基準
- 新耐震基準適合
- セキュリティ
- 機械警備(24時間監視)
- 駐車場設備
- 要確認
六本木ファイブ の募集区画 (総募集面積 28.01坪)
※月額費用、坪単価 ともに共益費込・税別の価格です
ほうらいやビル(港区、六本木、乃木坂、六本木一丁目)
- 所在地
- 東京都港区六本木5-2-1
- 最寄り駅
- 六本木駅徒歩2分、乃木坂駅徒歩11分、六本木一丁目駅徒歩11分
- 竣工
- 1973年
- 規模
- 地上9階・地下1階
- セキュリティ
- 機械警備・有人管理(24時間体制)
- 駐車場設備
- 要確認
ほうらいやビル の募集区画 (総募集面積 33.00坪)
※月額費用、坪単価 ともに共益費込・税別の価格です
綿引ビル(港区、六本木、麻布十番)
- 所在地
- 東京都港区六本木5-9-13
- 最寄り駅
- 六本木駅徒歩3分、麻布十番駅徒歩10分
- 竣工
- 1993年
- 規模
- 地上6階
- 耐震基準
- 新耐震基準適合
- セキュリティ
- 共用部警備なし(簡易管理)
- 駐車場設備
- 要確認
綿引ビル の募集区画 (総募集面積 13.48坪)
※月額費用、坪単価 ともに共益費込・税別の価格です
六本木高橋ビル(港区、六本木、乃木坂、六本木一丁目)
- 所在地
- 東京都港区六本木7-13-9
- 最寄り駅
- 六本木駅徒歩2分、乃木坂駅徒歩7分、六本木一丁目駅徒歩13分
- 竣工
- 1987年
- 規模
- 地上5階
- 耐震基準
- 新耐震基準適合
- 駐車場設備
- 要確認
六本木高橋ビル の募集区画 (総募集面積 25.72坪)
※月額費用、坪単価 ともに共益費込・税別の価格です
六本木グランドール(港区、六本木、乃木坂、六本木一丁目)
- 所在地
- 東京都港区六本木7-18-6
- 最寄り駅
- 六本木駅徒歩1分、乃木坂駅徒歩10分、六本木一丁目駅徒歩15分
- 竣工
- 1967年
- 規模
- 地上6階
- 駐車場設備
- 要確認
六本木グランドール の募集区画 (総募集面積 9.20坪)
※月額費用、坪単価 ともに共益費込・税別の価格です
六本木トリニティビル(港区、六本木、乃木坂、六本木一丁目)
- 所在地
- 東京都港区六本木7-14-7
- 最寄り駅
- 六本木駅徒歩1分、乃木坂駅徒歩7分、六本木一丁目駅徒歩10分
- 竣工
- 1966年
- 規模
- 地上8階・地下1階
- セキュリティ
- 機械警備(24時間監視)
- 駐車場設備
- 要確認
六本木トリニティビル の募集区画 (総募集面積 100.06坪)
| 図面 | 階数 | 坪数 | 月額費用 | 坪単価 | 入居可能日 | |
|---|---|---|---|---|---|---|
![]() | 7階 | 36.06坪 | 800,000円 | 22,185円 | 即時 | 検討リスト お問い合わせ |
![]() | 6階 | 64.00坪 | 1,400,000円 | 21,875円 | 即時 | 検討リスト お問い合わせ |
※月額費用、坪単価 ともに共益費込・税別の価格です
六本木蟻川ビル(港区、六本木、麻布十番)
- 所在地
- 東京都港区六本木6-17-1
- 最寄り駅
- 六本木駅徒歩6分、麻布十番駅徒歩6分
- 竣工
- 1989年
- 規模
- 地上7階・地下1階
- 耐震基準
- 新耐震基準適合
- セキュリティ
- 機械警備(24時間監視)
- 駐車場設備
- 要確認
六本木蟻川ビル の募集区画 (総募集面積 40.08坪)
※月額費用、坪単価 ともに共益費込・税別の価格です
六本木ファーストビル(港区、六本木、六本木一丁目、神谷町)
- 所在地
- 東京都港区六本木1-9-9
- 最寄り駅
- 六本木一丁目駅徒歩4分、神谷町駅徒歩8分、六本木駅徒歩13分
- 竣工
- 1993年
- 規模
- 地上20階・地下4階
- 耐震基準
- 新耐震基準適合
- セキュリティ
- 機械警備・有人管理(24時間体制)
- 駐車場設備
- 要確認
六本木ファーストビル の募集区画 (総募集面積 125.13坪)
※月額費用、坪単価 ともに共益費込・税別の価格です
SENQ六本木(新六本木ビル5〜9階)(港区、六本木、乃木坂、六本木一丁目)
- 所在地
- 東京都港区六本木7-15-7
- 最寄り駅
- 六本木駅徒歩1分、乃木坂駅徒歩10分、六本木一丁目駅徒歩10分
- 竣工
- 1978年
- 規模
- 地上9階・地下1階
- セキュリティ
- 機械警備(24時間監視)
- 駐車場設備
- 要確認
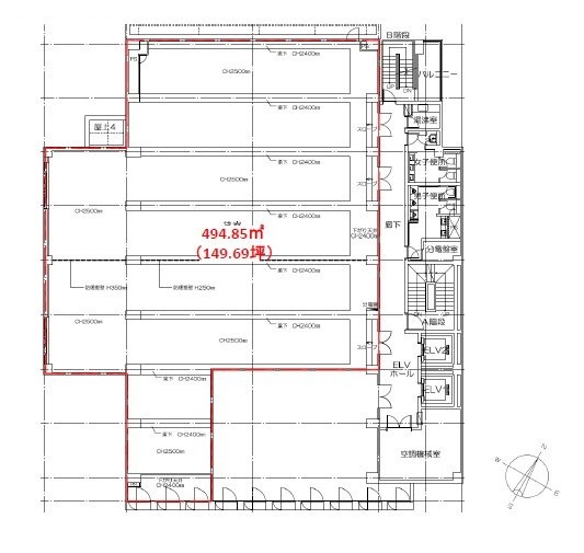
SENQ六本木(新六本木ビル5〜9階) の募集区画 (総募集面積 149.69坪)
※月額費用、坪単価 ともに共益費込・税別の価格です
クローバー六本木(港区、六本木、乃木坂)
- 所在地
- 東京都港区六本木7-1-19
- 最寄り駅
- 乃木坂駅徒歩2分、六本木駅徒歩8分
- 竣工
- 2006年
- 規模
- 地上16階・地下1階
- 耐震基準
- 新耐震基準適合
- セキュリティ
- 機械警備(24時間監視)
- 駐車場設備
- 有
クローバー六本木 の募集区画 (総募集面積 26.95坪)
※月額費用、坪単価 ともに共益費込・税別の価格です
ラウンドクロス六本木(港区、六本木、乃木坂)
- 所在地
- 東京都港区六本木7-14-23
- 最寄り駅
- 六本木駅徒歩1分、乃木坂駅徒歩8分
- 竣工
- 2009年
- 規模
- 地上6階・地下2階
- 耐震基準
- 新耐震基準適合
- セキュリティ
- 機械警備(24時間監視)
- 駐車場設備
- 有(機械式22台)
ラウンドクロス六本木 の募集区画 (総募集面積 457.23坪)
※月額費用、坪単価 ともに共益費込・税別の価格です
落合麻布台ビル(港区、六本木、六本木一丁目、神谷町)
- 所在地
- 東京都港区六本木1-7-28
- 最寄り駅
- 六本木一丁目駅徒歩1分、神谷町駅徒歩7分、六本木駅徒歩8分
- 竣工
- 1978年
- 規模
- 地上10階
- セキュリティ
- 共用部警備なし(簡易管理)
- 駐車場設備
- 要確認
落合麻布台ビル の募集区画 (総募集面積 28.00坪)
※月額費用、坪単価 ともに共益費込・税別の価格です
六本木ヒルズクロスポイント(港区、六本木、乃木坂、麻布十番)
- 所在地
- 東京都港区六本木6-3-1
- 最寄り駅
- 六本木駅徒歩1分、乃木坂駅徒歩8分、麻布十番駅徒歩14分
- 竣工
- 2011年
- 規模
- 地上10階・地下1階
- 耐震基準
- 新耐震基準適合
- セキュリティ
- 機械警備(24時間監視)
- 駐車場設備
- 要確認
六本木ヒルズクロスポイント の募集区画 (総募集面積 216.70坪)
※月額費用、坪単価 ともに共益費込・税別の価格です
アークヒルズ仙石山森タワー(港区、六本木、六本木一丁目、神谷町)
- 所在地
- 東京都港区六本木1-9-10
- 最寄り駅
- 六本木一丁目駅徒歩5分、神谷町駅徒歩5分、六本木駅徒歩14分
- 竣工
- 2012年
- 規模
- 地上47階・地下4階
- 耐震基準
- 新耐震基準適合
- セキュリティ
- 機械警備・有人管理(24時間体制)
- 駐車場設備
- 有
アークヒルズ仙石山森タワー の募集区画 (総募集面積 797.50坪)
※月額費用、坪単価 ともに共益費込・税別の価格です
六本木ヒルズノースタワー(港区、六本木、乃木坂、麻布十番)
- 所在地
- 東京都港区六本木6-2-31
- 最寄り駅
- 六本木駅徒歩1分、乃木坂駅徒歩12分、麻布十番駅徒歩15分
- 竣工
- 1971年
- 規模
- 地上18階・地下4階
- セキュリティ
- 機械警備(24時間監視)
- 駐車場設備
- 要確認
六本木ヒルズノースタワー の募集区画 (総募集面積 447.60坪)
※月額費用、坪単価 ともに共益費込・税別の価格です
六本木グリーンビル(港区、六本木、六本木一丁目、乃木坂)
- 所在地
- 東京都港区六本木6-1-8
- 最寄り駅
- 六本木駅徒歩1分、六本木一丁目駅徒歩9分、乃木坂駅徒歩11分
- 竣工
- 2000年
- 規模
- 地上10階・地下1階
- 耐震基準
- 新耐震基準適合
- セキュリティ
- 機械警備(24時間監視)
- 駐車場設備
- 要確認
六本木グリーンビル の募集区画 (総募集面積 57.09坪)
※月額費用、坪単価 ともに共益費込・税別の価格です
アークヒルズサウスタワー(港区、六本木、六本木一丁目、溜池山王)
- 所在地
- 東京都港区六本木1-4-5
- 最寄り駅
- 六本木一丁目駅徒歩1分、溜池山王駅徒歩3分、神谷町駅徒歩8分
- 竣工
- 2013年
- 規模
- 地上20階・地下3階
- 耐震基準
- 新耐震基準適合
- セキュリティ
- 機械警備(24時間監視)
- 駐車場設備
- 要確認
アークヒルズサウスタワー の募集区画 (総募集面積 39.00坪)
※月額費用、坪単価 ともに共益費込・税別の価格です
AX六本木(港区、六本木、乃木坂、六本木一丁目)
- 所在地
- 東京都港区六本木4-10-6
- 最寄り駅
- 六本木駅徒歩1分、乃木坂駅徒歩8分、六本木一丁目駅徒歩12分
- 竣工
- 2006年
- 規模
- 地上9階
- 耐震基準
- 新耐震基準適合
- セキュリティ
- 機械警備(24時間監視)
- 駐車場設備
- 要確認
AX六本木 の募集区画 (総募集面積 14.80坪)
※月額費用、坪単価 ともに共益費込・税別の価格です
PRIXビル(港区、六本木、乃木坂、青山一丁目)
- 所在地
- 東京都港区六本木7-5-9
- 最寄り駅
- 乃木坂駅徒歩5分、六本木駅徒歩6分、青山一丁目駅徒歩15分
- 竣工
- 2004年
- 規模
- 地上7階・地下1階
- 耐震基準
- 新耐震基準適合
- セキュリティ
- 機械警備(24時間監視)
- 駐車場設備
- 要確認
PRIXビル の募集区画 (総募集面積 19.36坪)
※月額費用、坪単価 ともに共益費込・税別の価格です
六本木ヒルズ森タワー(港区、六本木、麻布十番、乃木坂)
- 所在地
- 東京都港区六本木6-10-1
- 最寄り駅
- 六本木駅徒歩1分、麻布十番駅徒歩4分、乃木坂駅徒歩8分
- 竣工
- 2003年
- 規模
- 地上54階・地下6階
- 耐震基準
- 新耐震基準適合
- セキュリティ
- 機械警備(24時間監視)
- 駐車場設備
- 要確認
六本木ヒルズ森タワー の募集区画 (総募集面積 513.80坪)
※月額費用、坪単価 ともに共益費込・税別の価格です
六本木三幸ビル(港区、六本木、六本木一丁目、麻布十番)
- 所在地
- 東京都港区六本木3-4-35
- 最寄り駅
- 六本木駅徒歩5分、六本木一丁目駅徒歩5分、麻布十番駅徒歩15分
- 竣工
- 2021年
- 規模
- 地上9階
- 耐震基準
- 新耐震基準適合
- セキュリティ
- 機械警備(24時間監視)
- 駐車場設備
- 要確認
六本木三幸ビル の募集区画 (総募集面積 50.50坪)
※月額費用、坪単価 ともに共益費込・税別の価格です
シークエル六本木(港区、六本木、乃木坂)
- 所在地
- 東京都港区六本木7-18-13
- 最寄り駅
- 六本木駅徒歩2分、乃木坂駅徒歩9分
- 竣工
- 2023年
- 規模
- 地上10階
- 耐震基準
- 新耐震基準適合
- セキュリティ
- 機械警備(24時間監視)
- 駐車場設備
- 要確認
シークエル六本木 の募集区画 (総募集面積 38.97坪)
※月額費用、坪単価 ともに共益費込・税別の価格です
VORT六本木一丁目(港区、六本木、六本木一丁目、溜池山王)
- 所在地
- 東京都港区六本木2-3-2
- 最寄り駅
- 六本木一丁目駅徒歩3分、六本木駅徒歩9分、溜池山王駅徒歩10分
- 竣工
- 2023年
- 規模
- 地上14階
- 耐震基準
- 新耐震基準適合
- セキュリティ
- 機械警備(24時間監視)
- 駐車場設備
- 要確認
VORT六本木一丁目 の募集区画 (総募集面積 49.26坪)
※月額費用、坪単価 ともに共益費込・税別の価格です
川本ビル(港区、六本木、乃木坂、六本木一丁目)
- 所在地
- 東京都港区六本木6-7-9
- 最寄り駅
- 六本木駅徒歩2分、乃木坂駅徒歩11分、六本木一丁目駅徒歩12分
- 竣工
- 1971年
- 規模
- 地上4階・地下1階
- 駐車場設備
- 要確認
川本ビル の募集区画 (総募集面積 32.67坪)
※月額費用、坪単価 ともに共益費込・税別の価格です
TRI SEVEN ROPPONGI(8階:サービスオフィス)(港区、六本木、乃木坂、青山一丁目)
- 所在地
- 東京都港区六本木7-7-7
- 最寄り駅
- 六本木駅徒歩3分、乃木坂駅徒歩4分、青山一丁目駅徒歩14分
- 竣工
- 2016年
- 規模
- 地上14階・地下2階
- 耐震基準
- 新耐震基準適合
- セキュリティ
- 機械警備(24時間監視)
- 駐車場設備
- 要確認
TRI SEVEN ROPPONGI(8階:サービスオフィス) の募集区画 (総募集面積 3.00坪)
| 図面 | 階数 | 坪数 | 月額費用 | 坪単価 | 入居可能日 | |
|---|---|---|---|---|---|---|
準備中 | 8階 | 1.00坪 | 370,000円 | 370,000円 | 即時 | 検討リスト お問い合わせ |
準備中 | 8階 | 1.00坪 | 788,000円 | 788,000円 | 即時 | 検討リスト お問い合わせ |
準備中 | 8階 | 1.00坪 | 330,750円 | 330,750円 | 即時 | 検討リスト お問い合わせ |
※月額費用、坪単価 ともに共益費込・税別の価格です
レヴェリー六本木(港区、六本木、乃木坂)
- 所在地
- 東京都港区六本木7-6-19
- 最寄り駅
- 六本木駅徒歩4分、乃木坂駅徒歩5分
- 竣工
- 2023年
- 規模
- 地上8階
- 耐震基準
- 新耐震基準適合
- セキュリティ
- 機械警備(24時間監視)
- 駐車場設備
- 要確認
レヴェリー六本木 の募集区画 (総募集面積 10.88坪)
※月額費用、坪単価 ともに共益費込・税別の価格です
住友不動産六本木セントラルタワー(港区、六本木、乃木坂、六本木一丁目)
- 所在地
- 東京都港区六本木7-15-9
- 最寄り駅
- 六本木駅徒歩1分、乃木坂駅徒歩8分、六本木一丁目駅徒歩10分
- 竣工
- 2025年
- 規模
- 地上21階
- 耐震基準
- 新耐震基準適合・免震構造
- セキュリティ
- 機械警備(24時間監視)
- 駐車場設備
- 要確認
住友不動産六本木セントラルタワー の募集区画 (総募集面積 1,857.86坪)
| 図面 | 階数 | 坪数 | 月額費用 | 坪単価 | 入居可能日 | |
|---|---|---|---|---|---|---|
![]() | 18階 | 394.79坪 | 非公開 | 非公開 | 相談 | 検討リスト お問い合わせ |
![]() | 20階 | 394.79坪 | 非公開 | 非公開 | 相談 | 検討リスト お問い合わせ |
![]() | 21階 | 394.79坪 | 非公開 | 非公開 | 相談 | 検討リスト お問い合わせ |
![]() | 9階 | 139.35坪 | 非公開 | 非公開 | 相談 | 検討リスト お問い合わせ |
![]() | 19階 | 394.79坪 | 非公開 | 非公開 | 相談 | 検討リスト お問い合わせ |
![]() | 21階 | 139.35坪 | 非公開 | 非公開 | 相談 | 検討リスト お問い合わせ |
※月額費用、坪単価 ともに共益費込・税別の価格です
全特六本木ビル(EAST棟)(港区、六本木、六本木一丁目、神谷町)
- 所在地
- 東京都港区六本木1-7-27
- 最寄り駅
- 六本木一丁目駅徒歩1分、神谷町駅徒歩10分、六本木駅徒歩10分
- 竣工
- 1992年
- 規模
- 地上5階・地下2階
- 耐震基準
- 新耐震基準適合
- セキュリティ
- 機械警備(24時間監視)
- 駐車場設備
- 要確認
全特六本木ビル(EAST棟) の募集区画 (総募集面積 55.59坪)
※月額費用、坪単価 ともに共益費込・税別の価格です
六本木の魅力:多様な文化とビジネスが交差する、常に進化し続ける国際都市
六本木の全容:都心に位置し、多様な文化とビジネスが融合した、常に変化し続けるエリア
六本木は、東京都港区に位置し、六本木ヒルズや東京ミッドタウンなどの複合施設を中心に、アート、エンターテイメント、ビジネスなど、多様な文化が融合したエリアです。常に新しいトレンドが生まれ、進化し続ける街として知られています。
六本木の沿革:六本木は、江戸時代には武家屋敷が立ち並ぶ地域でした。戦後は、米軍施設が置かれた影響で、国際色豊かな街へと発展しました。近年では、六本木ヒルズや東京ミッドタウンなどの再開発により、新たな文化の発信地として注目されています。
六本木の環境:六本木には、六本木ヒルズ森タワーなどの著名なオフィスビルが多数存在します。これらのビルは、最新の設備を備え、快適なオフィス環境を提供するとともに、貸会議室、コワーキングスペース、サテライトオフィスなど、多様な働き方に対応する機能も充実しています。
詳細なアクセス情報:六本木には、東京メトロ日比谷線・大江戸線の六本木駅、東京メトロ南北線の六本木一丁目駅があり、都内主要ビジネスエリアへのアクセスも容易です。
特徴:六本木の魅力は、多様な文化とビジネスが融合した、常に変化し続ける街並みにあります。周辺には、美術館やギャラリー、劇場なども多く、アートやエンターテイメントに触れる機会も豊富です。
周辺環境:六本木には、六本木ヒルズや東京ミッドタウンなどの商業施設があり、ショッピングやグルメも楽しめます。また、国立新美術館やサントリー美術館などの文化施設も点在し、芸術鑑賞も楽しめます。
こんな企業におすすめ:IT、広告、エンターテイメント、ファッション、アートなど、クリエイティブなビジネスを展開する企業
業種:IT、広告、エンターテイメント、ファッション、アート、飲食など
六本木にオフィスを構える主な上場企業:株式会社テレビ朝日ホールディングス、株式会社IMAGICA GROUP
グルメ、ランチ、カフェ、イベント散策:六本木には、高級レストランからカジュアルなカフェまで、多彩なグルメスポットが充実しています。また、六本木ヒルズ展望台や東京シティビューなど、夜景を楽しめるスポットも人気です。
地域性:六本木は、多様な文化とビジネスが交差する、常に進化し続ける国際都市です。
まとめ:六本木は、都心に位置し、多様なビジネスニーズに応える利便性の高いエリアです。オフィスを構える場所として、六本木の賃貸事務所を検討してみてはいかがでしょうか。
















































































































































































































































































































































































































































































































































































