天王洲ファーストタワー(品川区、東品川、天王洲アイル、品川) の賃貸オフィス情報

- 所在地
- 東京都品川区東品川2-2-4
- 最寄り駅
- 天王洲アイル駅徒歩1分、品川駅徒歩19分
- 竣工
- 1991年
- 規模
- 地上27階・地下2階
- 構造
- S造(鉄骨造)
- 耐震基準
- 新耐震基準適合
- セキュリティ
- 機械警備・有人管理(24時間体制)
- エントランス
- 平日・土曜日開放(8:00-21:00)
- エレベーター総数
- 9基(人荷用エレベーター1台)
- 駐車場設備
- 要確認
東京湾の穏やかな水辺と近代的な都市機能が見事に融合した、品川区天王洲アイル地区。このダイナミックに進化を続けるエリアにおいて、ひときわ存在感を放つ高層オフィスビル、それが「天王洲ファーストタワー」です。このビルは、ウォーターフロントという希少なロケーションが生み出す開放感、羽田空港への優れたアクセス、そして現代の多様な働き方をサポートする充実した設備とアメニティを兼ね備え、多くの企業にとって理想的なビジネス拠点となっています。旧名称を「東京MIビル」と称されたこの建物は、1991年の竣工以来、時代の変化に合わせて丁寧に改修を重ねてきました。2006年の大規模改修に加え、近年では2023年3月には3階共用部(テナントラウンジ、エレベーターホール、トイレ、給湯室)が刷新されるなど、常に高品質なオフィス環境を提供し続けています。
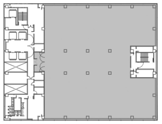
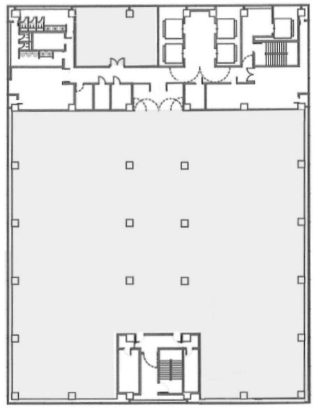
天王洲ファーストタワーは、東京都品川区東品川二丁目2番4号に位置しており、天王洲アイル再開発地区の中心部にあたります。建物は地上27階、地下2階建て、高さは110.95メートルに達し、天王洲のスカイラインを形成する主要なビルの一つです。構造は鉄骨造を基本とし、一部鉄骨鉄筋コンクリート造を採用しており、1991年6月または8月の竣工ながら新耐震基準に適合していることが適合診断済みとして確認されています。敷地面積は7,437.63㎡、延床面積は約47,249㎡(約14,293坪)という規模を誇ります。オフィスフロアの基準階面積は約304坪、およそ1,005㎡の広さを持ち、効率的かつ多様なレイアウトに対応可能な整形無柱空間が広がっています。基準階の天井高は約2,550mmから2,570mmが確保され、OAフロアも完備されており、床荷重は300kg/㎡です。空調はゾーン制御可能なセントラル空調システムが導入されており、きめ細やかな温度調整が可能です(一部区画は個別空調の可能性もあります)。電気容量は標準で15VA/㎡に加え、OAフロア用に30VA/㎡が追加供給可能であり、IT機器の利用が多い企業にも対応できます。フルフロアで利用される場合は、三面採光による自然光の豊かな、明るい執務空間を享受できます。
天王洲ファーストタワーは、公共交通機関、特に航空便を利用する企業にとって非常に有利なアクセス環境を提供します。東京モノレール羽田線の天王洲アイル駅(中央口)へは、改札を出てスカイウォークを利用することで徒歩約1分という至近距離に位置しており、羽田空港への移動が極めてスムーズです。また、りんかい線天王洲アイル駅(B出口)へも、高架の歩行者用スカイウォークを経由して徒歩約3分から7分でアクセス可能です。りんかい線はJR埼京線と直通運転を行っているため、恵比寿、渋谷、新宿、池袋といった都心主要エリアへ乗り換えなしでアクセスでき、通勤やビジネスでの移動において大きな利便性を提供します。さらに、JR各線や新幹線が乗り入れる品川駅へも、徒歩約17分、あるいは品川駅港南口から都営バス(品96甲系統または品98系統)を利用すれば約5分の乗車時間プラス徒歩でアクセス可能です。車でのアクセスも良好で、首都高速湾岸線の大井出入口や、1号羽田線の芝浦ランプ、目黒ランプなどが近く、都心部や首都圏各地へのスムーズな移動が可能です。敷地内には機械式と平面式を組み合わせた駐車場が完備されており、収容台数には複数の情報がありますが、タイムズが管理しカーシェアリングステーションも併設されている可能性があります。来客用駐車場のご利用には事前連絡が必要な場合があるためご注意ください。
ビル館内には、日々のビジネスライフを豊かにする多様なアメニティが揃っています。主に1階には、和食、イタリアン、中華、インドカレー、コーヒーショップ(スターバックス)など、様々なジャンルのレストランやカフェが集積しており、ランチタイムやリフレッシュに便利です。また、ファミリーマートが出店しており、必要な日用品や軽食を手軽に購入できます。みずほ銀行のATMや小川歯科クリニックも館内にあり、テナントの利便性を高めています。
近年特に注目すべきは、2023年3月にリニューアルが完了した3階のテナント専用ラウンジ「FLOW LOUNGE」です。このラウンジは、単なる休憩スペースではなく、多様な座席タイプ(デスク席、ラウンジチェア、ソロワークブース)やミーティングスペースを備え、Wi-Fiも利用可能であり、テナント従業員にとって代替ワークスペースや部門を超えたコラボレーションハブとして機能します。セキュリティ機能により、アクセスはテナント様に限定されており、安心して利用できます。また、テナント様向けの貸会議室も用意されており、プロジェクターも完備されているため、外部のお客様との打ち合わせや社内会議に活用できます。
天王洲ファーストタワーは、建物内だけでなく、その周辺環境との調和も魅力です。ウォーターフロントの開放感を享受できる地上レベルには、隣接するスフィアタワー天王洲と共有の公開空地「みどりの広場」をはじめ、座席のある公共エリアが複数存在し、運河を眺めながらリラックスできる空間を提供しています。また、25階に「空中庭園」が存在するとの記述もあり、高層階からの眺望と共にリフレッシュできるスペースの可能性が示唆されています(現状の詳細はご確認ください)。建物内には貸倉庫も利用可能との情報があり、書類や備品の保管に役立てることができます。ビル運営面では、乗用エレベーターが8基(高層用4基、低層用4基)、人荷用(非常用)エレベーターが1基設置されており、スムーズな垂直移動を支えます。セキュリティシステムは24時間有人警備と機械警備を組み合わせた強固な体制で、通用口の開閉時間外はカードキーによるアクセスが必要です。主要エントランスには開館時間がありますが、賃貸区画へは24時間いつでもアクセス可能です。オフィス空間には、男女別のトイレと給湯室が各階共用部に設置されており、ウォシュレットが完備され、給湯室には豊富な収納とIHヒーターが備わっています。これらの共用部も近年改修されており、清潔でモダンな空間となっています。
天王洲アイルという地域そのものも、天王洲ファーストタワーの価値を大きく高めています。かつて倉庫街であったこのエリアは、計画的な都市再開発により、オフィス、住宅、商業、文化、レクリエーション機能が融合したユニークなウォーターフロント地区へと変貌を遂げました。運河沿いには美しいボードウォークが整備され、散策やジョギングを楽しむ人々の姿が見られます。また、多数のギャラリーやパブリックアートが存在し、文化イベントも頻繁に開催されることから、「アート」と創造性に富んだエリアとして知られています。天王洲公園や東品川海上公園といった緑豊かな公園や広場も点在しており、都心でありながら自然を感じられる恵まれた環境です。このような周辺環境は、働く人々のワークライフバランスを向上させ、企業文化に良い影響を与えます。
天王洲ファーストタワーは、特にこのようなニーズをお持ちの企業様に最適なオフィスビルです。海外への出張が多い、あるいはグローバルなビジネスを展開されている企業様にとって、羽田空港へのモノレール直結アクセスは比類なき利便性を提供します。また、都心主要エリアだけでなく、首都圏広域からの通勤者を抱える企業様には、りんかい線によるJR埼京線への直通運転が大きなメリットとなります。IT、テクノロジー、コンサルティング、ビジネスサービス関連など、現代的で変化の速い業種の企業様が多数入居しており、同分野の企業との連携や情報交換が期待できる環境です。大規模なフロア面積で、部門の増床や多様なワークプレイスの導入など、柔軟なオフィスレイアウトを実現したい企業様にも適しています。さらに、従業員のウェルビーイングやエンゲージメント向上を目指す企業様にとって、リニューアルされた高品質なテナントラウンジや、ウォーターフロントの魅力的な環境、豊富な館内・周辺アメニティは、大きな付加価値となります。
天王洲アイルには複数の高層オフィスビルがありますが、天王洲ファーストタワーを選ぶ理由として、その羽田空港への圧倒的なアクセス性、そして**近年の改修によって現代のワークスタイルに合わせて強化された館内アメニティ(特にラウンジ)**が挙げられます。また、確立された品質と、文化・アートが息づく天王洲アイルというユニークな環境との融合は、他の伝統的なビジネスエリアのビルにはない魅力です。これらの要素が、天王洲ファーストタワーを競争力のあるプレミアムオフィスとして位置づけています。
天王洲ファーストタワーは、東京都品川区東品川二丁目2番4号に位置しており、天王洲アイル再開発地区の中心部にあたります。建物は地上27階、地下2階建て、高さは110.95メートルに達し、天王洲のスカイラインを形成する主要なビルの一つです。構造は鉄骨造を基本とし、一部鉄骨鉄筋コンクリート造を採用しており、1991年6月または8月の竣工ながら新耐震基準に適合していることが適合診断済みとして確認されています。敷地面積は7,437.63㎡、延床面積は約47,249㎡(約14,293坪)という規模を誇ります。オフィスフロアの基準階面積は約304坪、およそ1,005㎡の広さを持ち、効率的かつ多様なレイアウトに対応可能な整形無柱空間が広がっています。基準階の天井高は約2,550mmから2,570mmが確保され、OAフロアも完備されており、床荷重は300kg/㎡です。空調はゾーン制御可能なセントラル空調システムが導入されており、きめ細やかな温度調整が可能です(一部区画は個別空調の可能性もあります)。電気容量は標準で15VA/㎡に加え、OAフロア用に30VA/㎡が追加供給可能であり、IT機器の利用が多い企業にも対応できます。フルフロアで利用される場合は、三面採光による自然光の豊かな、明るい執務空間を享受できます。
天王洲ファーストタワーは、公共交通機関、特に航空便を利用する企業にとって非常に有利なアクセス環境を提供します。東京モノレール羽田線の天王洲アイル駅(中央口)へは、改札を出てスカイウォークを利用することで徒歩約1分という至近距離に位置しており、羽田空港への移動が極めてスムーズです。また、りんかい線天王洲アイル駅(B出口)へも、高架の歩行者用スカイウォークを経由して徒歩約3分から7分でアクセス可能です。りんかい線はJR埼京線と直通運転を行っているため、恵比寿、渋谷、新宿、池袋といった都心主要エリアへ乗り換えなしでアクセスでき、通勤やビジネスでの移動において大きな利便性を提供します。さらに、JR各線や新幹線が乗り入れる品川駅へも、徒歩約17分、あるいは品川駅港南口から都営バス(品96甲系統または品98系統)を利用すれば約5分の乗車時間プラス徒歩でアクセス可能です。車でのアクセスも良好で、首都高速湾岸線の大井出入口や、1号羽田線の芝浦ランプ、目黒ランプなどが近く、都心部や首都圏各地へのスムーズな移動が可能です。敷地内には機械式と平面式を組み合わせた駐車場が完備されており、収容台数には複数の情報がありますが、タイムズが管理しカーシェアリングステーションも併設されている可能性があります。来客用駐車場のご利用には事前連絡が必要な場合があるためご注意ください。
ビル館内には、日々のビジネスライフを豊かにする多様なアメニティが揃っています。主に1階には、和食、イタリアン、中華、インドカレー、コーヒーショップ(スターバックス)など、様々なジャンルのレストランやカフェが集積しており、ランチタイムやリフレッシュに便利です。また、ファミリーマートが出店しており、必要な日用品や軽食を手軽に購入できます。みずほ銀行のATMや小川歯科クリニックも館内にあり、テナントの利便性を高めています。
近年特に注目すべきは、2023年3月にリニューアルが完了した3階のテナント専用ラウンジ「FLOW LOUNGE」です。このラウンジは、単なる休憩スペースではなく、多様な座席タイプ(デスク席、ラウンジチェア、ソロワークブース)やミーティングスペースを備え、Wi-Fiも利用可能であり、テナント従業員にとって代替ワークスペースや部門を超えたコラボレーションハブとして機能します。セキュリティ機能により、アクセスはテナント様に限定されており、安心して利用できます。また、テナント様向けの貸会議室も用意されており、プロジェクターも完備されているため、外部のお客様との打ち合わせや社内会議に活用できます。
天王洲ファーストタワーは、建物内だけでなく、その周辺環境との調和も魅力です。ウォーターフロントの開放感を享受できる地上レベルには、隣接するスフィアタワー天王洲と共有の公開空地「みどりの広場」をはじめ、座席のある公共エリアが複数存在し、運河を眺めながらリラックスできる空間を提供しています。また、25階に「空中庭園」が存在するとの記述もあり、高層階からの眺望と共にリフレッシュできるスペースの可能性が示唆されています(現状の詳細はご確認ください)。建物内には貸倉庫も利用可能との情報があり、書類や備品の保管に役立てることができます。ビル運営面では、乗用エレベーターが8基(高層用4基、低層用4基)、人荷用(非常用)エレベーターが1基設置されており、スムーズな垂直移動を支えます。セキュリティシステムは24時間有人警備と機械警備を組み合わせた強固な体制で、通用口の開閉時間外はカードキーによるアクセスが必要です。主要エントランスには開館時間がありますが、賃貸区画へは24時間いつでもアクセス可能です。オフィス空間には、男女別のトイレと給湯室が各階共用部に設置されており、ウォシュレットが完備され、給湯室には豊富な収納とIHヒーターが備わっています。これらの共用部も近年改修されており、清潔でモダンな空間となっています。
天王洲アイルという地域そのものも、天王洲ファーストタワーの価値を大きく高めています。かつて倉庫街であったこのエリアは、計画的な都市再開発により、オフィス、住宅、商業、文化、レクリエーション機能が融合したユニークなウォーターフロント地区へと変貌を遂げました。運河沿いには美しいボードウォークが整備され、散策やジョギングを楽しむ人々の姿が見られます。また、多数のギャラリーやパブリックアートが存在し、文化イベントも頻繁に開催されることから、「アート」と創造性に富んだエリアとして知られています。天王洲公園や東品川海上公園といった緑豊かな公園や広場も点在しており、都心でありながら自然を感じられる恵まれた環境です。このような周辺環境は、働く人々のワークライフバランスを向上させ、企業文化に良い影響を与えます。
天王洲ファーストタワーは、特にこのようなニーズをお持ちの企業様に最適なオフィスビルです。海外への出張が多い、あるいはグローバルなビジネスを展開されている企業様にとって、羽田空港へのモノレール直結アクセスは比類なき利便性を提供します。また、都心主要エリアだけでなく、首都圏広域からの通勤者を抱える企業様には、りんかい線によるJR埼京線への直通運転が大きなメリットとなります。IT、テクノロジー、コンサルティング、ビジネスサービス関連など、現代的で変化の速い業種の企業様が多数入居しており、同分野の企業との連携や情報交換が期待できる環境です。大規模なフロア面積で、部門の増床や多様なワークプレイスの導入など、柔軟なオフィスレイアウトを実現したい企業様にも適しています。さらに、従業員のウェルビーイングやエンゲージメント向上を目指す企業様にとって、リニューアルされた高品質なテナントラウンジや、ウォーターフロントの魅力的な環境、豊富な館内・周辺アメニティは、大きな付加価値となります。
天王洲アイルには複数の高層オフィスビルがありますが、天王洲ファーストタワーを選ぶ理由として、その羽田空港への圧倒的なアクセス性、そして**近年の改修によって現代のワークスタイルに合わせて強化された館内アメニティ(特にラウンジ)**が挙げられます。また、確立された品質と、文化・アートが息づく天王洲アイルというユニークな環境との融合は、他の伝統的なビジネスエリアのビルにはない魅力です。これらの要素が、天王洲ファーストタワーを競争力のあるプレミアムオフィスとして位置づけています。
天王洲ファーストタワー の募集区画 (総募集面積 0.00坪)
現在募集はありません。
地図
東京都品川区東品川2-2-4 地図をクリックして拡大できます
天王洲ファーストタワー の外観イメージ
天王洲ファーストタワー(品川区東品川)の外観は、重厚感と高級感を兼ね備えたデザインが特徴です。直線的でスタイリッシュなフォルムに加え、大理石やガラス素材を多用した外壁が洗練された印象を与えます。周囲を天王洲運河に囲まれた立地で、東京湾を望む眺望も魅力的です。















天王洲ファーストタワー の周辺イメージ
天王洲ファーストタワー(品川区東品川)は、天王洲アイルエリアに位置し、周辺には「T.Y.ハーバー」や「天王洲キャナルガーデン」などの商業施設が充実しています。1階には飲食店やカフェが揃い、ランチや休憩にも便利です。また、コンビニや銀行ATMも併設されており、ビジネスパーソンにとって利便性の高い環境です。


天王洲ファーストタワー の主な入居テナント
天王洲ファーストタワー の募集終了区画
| 図面 | 階数 | 坪数 | 月額費用 | 坪単価 | 入居可能日 | |
|---|---|---|---|---|---|---|
![]() | 1階 | 40.15坪 | - | - | 募集終了 | 検討リスト |
![]() | 1階 | 61.40坪 | - | - | 募集終了 | 検討リスト |
![]() | 2階 | 138.13坪 | - | - | 募集終了 | 検討リスト |
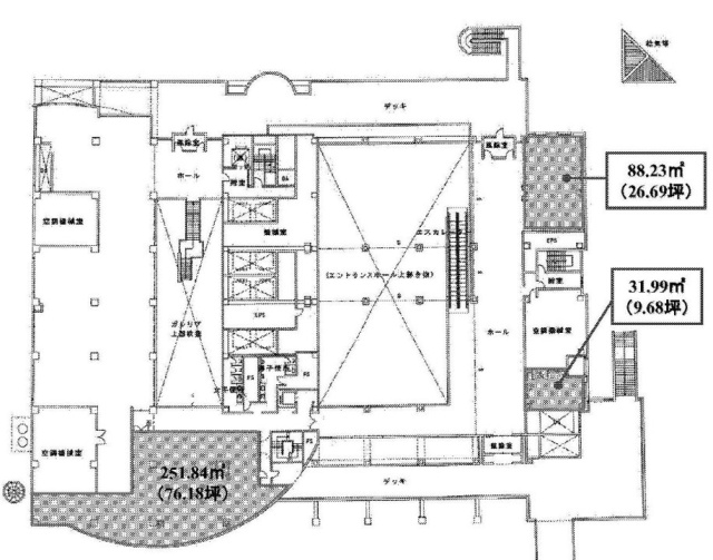
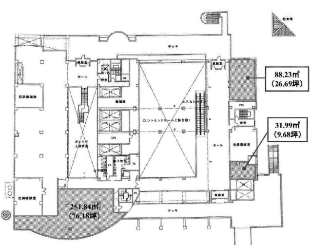
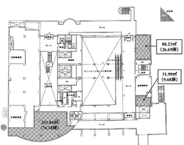
![]() | 2階 | 76.18坪 | - | - | 募集終了 | 検討リスト |
![]() | 2階 | 9.68坪 | - | - | 募集終了 | 検討リスト |
![]() | 2階 | 26.69坪 | - | - | 募集終了 | 検討リスト |
![]() | 3階 | 303.92坪 | - | - | 募集終了 | 検討リスト |
![]() | 3階 | 151.96坪 | - | - | 募集終了 | 検討リスト |
![]() | 4階 | 151.96坪 | - | - | 募集終了 | 検討リスト |
![]() | 4階 | 151.96坪 | - | - | 募集終了 | 検討リスト |
![]() | 4階 | 303.92坪 | - | - | 募集終了 | 検討リスト |
![]() | 5階 | 151.96坪 | - | - | 募集終了 | 検討リスト |
![]() | 6階 | 303.92坪 | - | - | 募集終了 | 検討リスト |
![]() | 6階 | 151.96坪 | - | - | 募集終了 | 検討リスト |
![]() | 6階 | 151.96坪 | - | - | 募集終了 | 検討リスト |
![]() | 7階 | 303.91坪 | - | - | 募集終了 | 検討リスト |
![]() | 7階 | 151.95坪 | - | - | 募集終了 | 検討リスト |
![]() | 7階 | 151.95坪 | - | - | 募集終了 | 検討リスト |
![]() | 8階 | 303.92坪 | - | - | 募集終了 | 検討リスト |
![]() | 9階 | 303.92坪 | - | - | 募集終了 | 検討リスト |
![]() | 10階 | 303.92坪 | - | - | 募集終了 | 検討リスト |
![]() | 11階 | 303.92坪 | - | - | 募集終了 | 検討リスト |
![]() | 12階 | 303.92坪 | - | - | 募集終了 | 検討リスト |
![]() | 13階 | 321.39坪 | - | - | 募集終了 | 検討リスト |
![]() | 13階 | 303.91坪 | - | - | 募集終了 | 検討リスト |
![]() | 14階 | 303.92坪 | - | - | 募集終了 | 検討リスト |
![]() | 14階 | 151.95坪 | - | - | 募集終了 | 検討リスト |
![]() | 14階 | 151.95坪 | - | - | 募集終了 | 検討リスト |
![]() | 15階 | 151.96坪 | - | - | 募集終了 | 検討リスト |
![]() | 15階 | 163.35坪 | - | - | 募集終了 | 検討リスト |
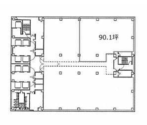
![]() | 15階 | 90.13坪 | - | - | 募集終了 | 検討リスト |
![]() | 16階 | 303.92坪 | - | - | 募集終了 | 検討リスト |
![]() | 16階 | 151.95坪 | - | - | 募集終了 | 検討リスト |
![]() | 17階 | 151.95坪 | - | - | 募集終了 | 検討リスト |
![]() | 17階 | 151.96坪 | - | - | 募集終了 | 検討リスト |
![]() | 18階 | 303.92坪 | - | - | 募集終了 | 検討リスト |
![]() | 18階 | 151.96坪 | - | - | 募集終了 | 検討リスト |
![]() | 18階 | 151.96坪 | - | - | 募集終了 | 検討リスト |
![]() | 19階 | 303.92坪 | - | - | 募集終了 | 検討リスト |
![]() | 20階 | 321.39坪 | - | - | 募集終了 | 検討リスト |
![]() | 21階 | 321.39坪 | - | - | 募集終了 | 検討リスト |
![]() | 22階 | 321.39坪 | - | - | 募集終了 | 検討リスト |
![]() | 23階 | 303.92坪 | - | - | 募集終了 | 検討リスト |
![]() | 23階 | 17.47坪 | - | - | 募集終了 | 検討リスト |
![]() | 23階 | 151.96坪 | - | - | 募集終了 | 検討リスト |
![]() | 23階 | 151.96坪 | - | - | 募集終了 | 検討リスト |
![]() | 24階 | 321.39坪 | - | - | 募集終了 | 検討リスト |
![]() | 24階 | 17.47坪 | - | - | 募集終了 | 検討リスト |
![]() | 24階 | 151.96坪 | - | - | 募集終了 | 検討リスト |
![]() | 24階 | 169.43坪 | - | - | 募集終了 | 検討リスト |
![]() | 24階 | 151.96坪 | - | - | 募集終了 | 検討リスト |
![]() | 25階 | 313.43坪 | - | - | 募集終了 | 検討リスト |
![]() | 25階 | 266.90坪 | - | - | 募集終了 | 検討リスト |
![]() | 26階 | 126.54坪 | - | - | 募集終了 | 検討リスト |
![]() | 26階 | 264.77坪 | - | - | 募集終了 | 検討リスト |
近くの物件紹介
品川区のエリア
近くの駅
| 取扱態様 | 仲介 |
|---|---|
| 取扱会社 | 株式会社アドマイアー 東京都中央区日本橋3-2-3ユニバース第1ビル2F TEL. 03-5204-1031 宅地建物取引業免許 東京都知事(3)第94663号 マンション管理業免許 国土交通大臣(2)第034224号 賃貸住宅管理業免許 国土交通大臣(01)第005938号 |










































