赤坂ガーデンシティ(港区、赤坂、青山一丁目、永田町) の賃貸オフィス情報

- 所在地
- 東京都港区赤坂4-15-1
- 最寄り駅
- 青山一丁目駅徒歩7分、永田町駅徒歩7分、赤坂見附駅徒歩7分
- 竣工
- 2006年
- 規模
- 地上19階・地下2階
- 構造
- S造(鉄骨造)
- 耐震基準
- 新耐震基準適合・制震構造
- セキュリティ
- 機械警備・有人管理(24時間体制)
- エントランス
- 平日開放
- エレベーター総数
- 13基(常用12基 (低層用6基、高層用6基) ・非常用エレベーター1基)
- 駐車場設備
- 有(機械式102台 平面式17台 身障者用1台)
- 設備
- 非常用発電機、 24時間(要ICカード)、 トイレ男女別
赤坂ガーデンシティ の物件特徴・おすすめポイント
■天井高2,800mmとワイドスパンが生む開放的な執務空間
■48時間稼働の非常用発電機を備え災害時も事業継続が可能
■館内に飲食店やコンビニが揃い外出せずとも完結する利便性
■非接触ICカードと24時間有人管理による万全の警備体制
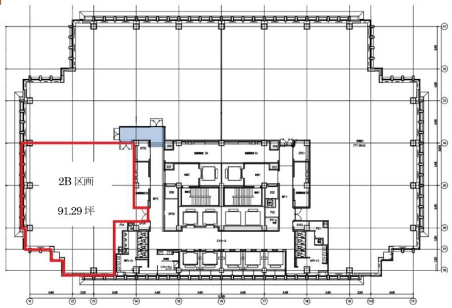
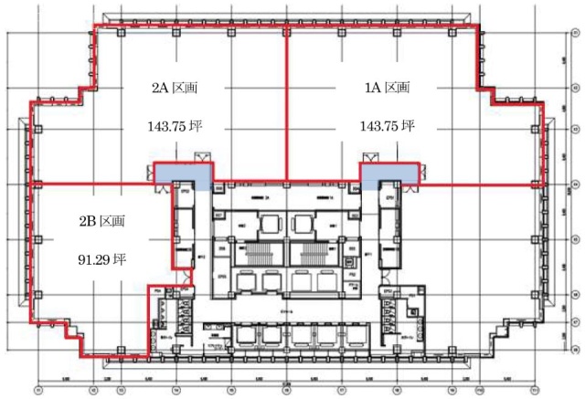
赤坂ガーデンシティ の募集区画 (総募集面積 91.29坪)
※月額費用、坪単価 ともに共益費込・税別の価格です
建物に関するよくある質問と回答
A. メインの最寄駅は東京メトロ銀座線・半蔵門線および都営大江戸線の青山一丁目駅です。駅の4番出口を出て青山通りを赤坂方面へ進み、赤坂警察署の手前を右折して直進する分かりやすいルートで、徒歩約7分の距離にあります。
Q2. 赤坂ガーデンシティの耐震性能・構造はどうなっていますか?
A. 2006年竣工の鉄骨造、一部鉄骨鉄筋コンクリート造で、新耐震基準に適合しています。構造には制震デバイスを採用した制震構造を導入しており、N値50以上の強固な地盤と相まって、高い耐震安全性と信頼性を備えています。
Q3. 赤坂ガーデンシティの室内スペック(天井高・床仕様・空調など)について教えてください。
A. 本物件の基準階天井高は2,800mmと高く、100mmのOAフロアを敷設しています。空調は中央方式ですが、フロアを30ゾーンに分けたきめ細かなVAV制御が可能であり、Low-Eガラスによる遮熱効果と合わせて快適な室内環境を維持します。
Q4. 赤坂ガーデンシティに非常用発電機はありますか?
A. 当ビルには、共用部だけでなく専有部にも電源供給が可能な非常用発電機が備わっています。災害による停電時には、最大で約48時間の連続運転が可能な設計となっており、高いレベルでの事業継続計画(BCP)に対応しています。
Q5. 赤坂ガーデンシティ内にコンビニや飲食店はありますか?
A. 敷地内の地下1階および地下2階に、セブン-イレブンやイタリアンレストランなどの店舗が充実しています。また、デンタルクリニックも併設されており、建物内でランチや日常の買い物を完結させることが可能です。
Q6. 赤坂ガーデンシティのセキュリティ体制はどうなっていますか?
A. 機械警備に加え、防災センターによる24時間の有人監視体制を敷いています。非接触型ICカードリーダーによる入退館管理を導入しており、エレベーター内や各所に防犯カメラを設置することで、常に高い安全性を確保しています。
Q7. 赤坂ガーデンシティに駐車場はありますか?
A. 合計120台を収容可能な大規模な駐車場を完備しています。機械式102台のほか、平面式17台や身障者用区画も備えており、ハイルーフ車や役員車両の駐車ニーズにも柔軟に対応できるスペックとなっています。
Q8. 赤坂ガーデンシティの通信環境や電気容量はどうなっていますか?
A. 光ケーブルの導入はもちろん、各階の電気容量は60VA/㎡を標準とし、最大で70VA/㎡まで増設可能な予備スペースも確保されています。屋上には通信用アンテナの設置スペースも設けられており、高度なITインフラを必要とする企業にも好適です。
地図
東京都港区赤坂4-15-1 地図をクリックして拡大できます
赤坂ガーデンシティ の外観イメージ
地上19階建、洗練されたガラスカーテンウォールが印象的な外観は、赤坂エリアのランドマークとしての風格を漂わせています。赤坂御用地の緑豊かな借景に調和するよう設計されており、モダンさと落ち着きを兼ね備えた意匠性が、入居企業のブランドイメージを大きく高めます。1階の重厚感あるエントランスホールは広々とした吹き抜け空間となっており、訪れる来客に上質な安心感と清潔感を与えます。周辺のビルと比較しても一際目を引く規模感と、手入れの行き届いた外構デザインが、赤坂の国際ビジネス拠点に相応しいプレゼンスを確立しています。












赤坂ガーデンシティ の周辺イメージ
赤坂警察署や赤坂郵便局が徒歩圏内にあり、官公庁や金融機関が集積するビジネスインフラに恵まれた立地です。ビル内のセブン-イレブンに加え、近隣には「とらや 赤坂店」や「豊川稲荷」などの歴史的施設、多数の高級飲食店が点在し、会食や来客対応にも困りません。赤坂御用地の緑に隣接しているため、都心でありながら四季折々の自然を身近に感じられるリフレッシュ環境も整っています。




赤坂ガーデンシティ のアクセス・ロケーション
■ 駅徒歩分数
・東京メトロ銀座線・半蔵門線、都営大江戸線 「青山一丁目」駅 4番出口より徒歩7分 ・東京メトロ丸ノ内線・銀座線 「赤坂見附」駅 A出口より徒歩7分 ・東京メトロ有楽町線・半蔵門線・南北線 「永田町」駅 7番出口より徒歩7分 ・東京メトロ千代田線 「赤坂」駅 3b出口より徒歩8分
■ 主要エリアへのアクセス
青山一丁目駅から半蔵門線を利用すれば、渋谷駅まで約4分、大手町駅まで約14分でダイレクトにアクセス可能です。また、銀座線を利用することで、新橋駅まで約8分、東京駅(赤坂見附駅経由)まで約10分と、都内の主要ターミナル駅を短時間でカバーできます。計5路線が利用可能なため、交通トラブル時にも代替ルートを確保しやすく、高い機動力を維持できます。
■ エリア特性
赤坂・青山エリアは、各国大使館や一流ホテル、外資系企業が数多く居を構える国際色豊かなビジネス街です。本物件は青山通りから一本入った落ち着いた高台に位置し、赤坂御用地の広大な緑に寄り添う、都内でも屈指のステータスと静穏な環境を併せ持つエリア特性を有しています。
赤坂ガーデンシティ の主な入居テナント
赤坂ガーデンシティ の募集終了区画
| 図面 | 階数 | 坪数 | 月額費用 | 坪単価 | 入居可能日 | |
|---|---|---|---|---|---|---|
![]() | 1階 | 28.56坪 | お問い合わせください | 募集終了 | 検討リスト | |
![]() | 2階 | 235.00坪 | お問い合わせください | 募集終了 | 検討リスト | |
![]() | 3階 | 143.75坪 | お問い合わせください | 募集終了 | 検討リスト | |
![]() | 3階 | 91.29坪 | お問い合わせください | 募集終了 | 検討リスト | |
![]() | 4階 | 143.75坪 | お問い合わせください | 募集終了 | 検討リスト | |
![]() | 4階 | 378.79坪 | お問い合わせください | 募集終了 | 検討リスト | |
![]() | 4階 | 143.75坪 | お問い合わせください | 募集終了 | 検討リスト | |
![]() | 4階 | 91.29坪 | お問い合わせください | 募集終了 | 検討リスト | |
![]() | 6階 | 235.04坪 | お問い合わせください | 募集終了 | 検討リスト | |
![]() | 7階 | 470.08坪 | お問い合わせください | 募集終了 | 検討リスト | |
![]() | 11階 | 470.08坪 | お問い合わせください | 募集終了 | 検討リスト | |
![]() | 12階 | 470.08坪 | お問い合わせください | 募集終了 | 検討リスト | |
![]() | 13階 | 145.00坪 | お問い合わせください | 募集終了 | 検討リスト | |
![]() | 13階 | 470.08坪 | お問い合わせください | 募集終了 | 検討リスト | |
![]() | 13階 | 235.04坪 | お問い合わせください | 募集終了 | 検討リスト | |
![]() | 13階 | 235.04坪 | お問い合わせください | 募集終了 | 検討リスト | |
![]() | 14階 | 470.08坪 | お問い合わせください | 募集終了 | 検討リスト | |
![]() | 15階 | 470.08坪 | お問い合わせください | 募集終了 | 検討リスト | |
![]() | 15階 | 235.04坪 | お問い合わせください | 募集終了 | 検討リスト | |
![]() | 16階 | 470.08坪 | お問い合わせください | 募集終了 | 検討リスト | |
![]() | 16階 | 235.04坪 | お問い合わせください | 募集終了 | 検討リスト | |
![]() | 17階 | 470.08坪 | お問い合わせください | 募集終了 | 検討リスト | |
![]() | 17階 | 235.04坪 | お問い合わせください | 募集終了 | 検討リスト | |
![]() | 18階 | 470.00坪 | お問い合わせください | 募集終了 | 検討リスト | |
![]() | 19階 | 470.00坪 | お問い合わせください | 募集終了 | 検討リスト |
赤坂ガーデンシティ が選ばれる理由
■ 48時間連続稼働の非常用発電機が支える「事業継続の安全性」 災害発生時の停電においても、48時間連続して電源供給が可能な非常用発電機を備えています。これは単なる防災対策を超え、金融やITなど止めることのできないビジネスを持つ企業にとって、社会的信頼を担保するための決定的なアドバンテージとなります。
■ 主要4駅を使いこなす「多角的なアクセスと採用力」 青山一丁目、赤坂見附、永田町、赤坂という4つのハブ駅が徒歩圏内にあることは、従業員の通勤経路を広げ、優秀な人材の獲得において大きな強みとなります。また、都内主要拠点へ10分圏内で移動できる機動力は、営業活動の効率化とスピードアップに直結します。
■ 2,800mmの天井高が実現する「ウェルビーイングな執務環境」 標準的なオフィスを上回る天井高2,800mmの空間は、視覚的な開放感だけでなく、空気循環の良さや心理的なストレス軽減にも寄与します。窓外に広がる赤坂御用地の緑と共に、高品質なワークスペースを提供することで、従業員のエンゲージメント向上と定着率の改善を支援します。
近くの物件紹介
港区のエリア
近くの駅
| 取扱態様 | 仲介 |
|---|---|
| 取扱会社 | 株式会社アドマイアー 東京都中央区日本橋3-2-3ユニバース第1ビル2F TEL. 03-5204-1031 宅地建物取引業免許 東京都知事(3)第94663号 マンション管理業免許 国土交通大臣(2)第034224号 賃貸住宅管理業免許 国土交通大臣(01)第005938号 |







































